$149,900
3795 El Dorado BL
Palm Springs, CA, 92262
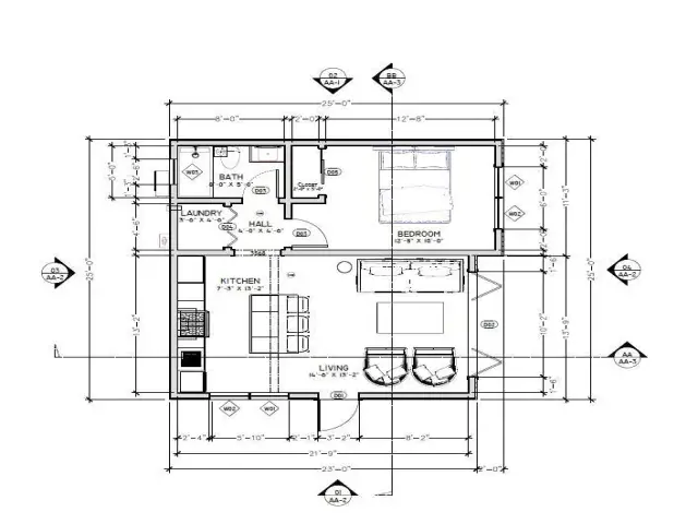
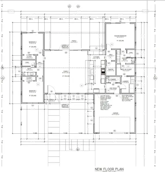
Why settle when you can design your dream home from the ground up? Purchasing a vacant lot gives you the freedom to create a custom living space tailored to your unique vision and lifestyle. Imagine designing every detail–your perfect floor plan, outdoor space, and even those stunning mountain views! This lot offers no HOA fees, and you own the land. With close proximity to the freeway, Palm Springs International Airport, and Downtown Palm Springs, the location is ideal for convenience and access. Take control of your budget, materials, and timing, and build something truly special you’ll love. Don’t wait–start turning your dream into reality today! NOTE:The lot is located a few streets down from where Miralon is being built. Owner has plans to build a 1,800 sqft. home with 3 bedrooms, 2 baths and a ADU with a living room, 1 bedroom and 1 bath. (They will convey with the purchase.) Approved by the city. Stamped 03-31-2023. Buyer to conduct all their due diligence in this matter with the city. Side block walls and chain link fence installed in 2023.
Property Details
Price:
$149,900
MLS #:
219136768DA
Status:
Active
Beds:
0
Baths:
0
Type:
Land
Subdivision:
Desert Highland Gateway
Neighborhood:
331northendpalmsprings
Listed Date:
Oct 10, 2025
Lot Size:
9,148 sqft / 0.21 acres (approx)
Schools
Interior
Exterior
Financial
Get Out There, A Simply Outgoing Approach to Life. James Outland Jr. is one of those rare people who simply has an outgoing approach to life. No matter the activity… from dune buggy riding to skydiving to motorcycling to riding the local Pismo Beach waves… James Outland Jr. approaches life with a “just get out there and do it” kind of attitude. A zest for Life. James’ zest for life is obviously apparent in his many exciting hobbies. In his spare time, he loves riding dune buggies or hi…
More About JamesMortgage Calculator
Map
Current real estate data for Land in Palm Springs as of Feb 13, 2026
71
Land Listed
131
Avg DOM
$693,993
Avg List Price
Community
- Address3795 El Dorado BL Palm Springs CA
- SubdivisionDesert Highland Gateway
- CityPalm Springs
- CountyRiverside
- Zip Code92262
Similar Listings Nearby
Property Summary
- Located in the Desert Highland Gateway subdivision, 3795 El Dorado BL Palm Springs CA is a Land for sale in Palm Springs, CA, 92262. It is listed for $149,900 and features 0 acres. To schedule a showing of MLS#219136768da at 3795 El Dorado BL in Palm Springs, CA, contact your James Outland agent at 8057482262.
Courtesy of Desert Sands Realty. Disclaimer: All data relating to real estate for sale on this page comes from the Broker Reciprocity (BR) of the California Regional Multiple Listing Service. Detailed information about real estate listings held by brokerage firms other than James Outland include the name of the listing broker. Neither the listing company nor James Outland shall be responsible for any typographical errors, misinformation, misprints and shall be held totally harmless. The Broker providing this data believes it to be correct, but advises interested parties to confirm any item before relying on it in a purchase decision. Copyright 2026. California Regional Multiple Listing Service. All rights reserved. 3795 El Dorado BL
Palm Springs, CA











