$529,000
1020 E Palm Canyon DR #101
Palm Springs, CA, 92264
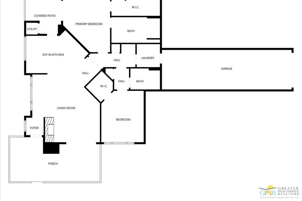
\Modern. Sophisticated. Effortlessly Palm Springs.This International Style residence at Biltmore Colony delivers warm, inviting design with a sleek modern edge. A refined palette, stylish finishes, and no-stairs, single-level living create an easy, elegant lifestyle. Two spacious bedrooms and baths open to a large, ultra-private patioyour own serene outdoor living room. Tucked away at the back of the complex, this rare interior residence is thoughtfully positioned away from all street traffic, offering exceptional peace and privacy. Set within a gated, architecturally significant community inspired by the legendary 1948 Palm Springs Biltmore Hotel, the setting reflects timeless resort elegance.Resort-style amenities include multiple pools and spas, a chic clubhouse, fitness center, and outdoor gathering spaces. Just moments from the Ace Hotel and Koffi and yes, you own the land.This is modern Palm Springs living, perfectly realized.
Property Details
Price:
$529,000
MLS #:
26642731PS
Status:
Active
Beds:
2
Baths:
2
Type:
Condo
Subtype:
Condominium
Subdivision:
Biltmore Colony
Neighborhood:
334southendpalmsprings
Listed Date:
Jan 24, 2026
Finished Sq Ft:
1,257
Total Sq Ft:
1,257
Year Built:
2006
Schools
Interior
Appliances
DW, GD, MW, RF
Bathrooms
2 Full Bathrooms
Flooring
TILE, CARP
Heating
CF
Laundry Features
IN, DINC, WINC
Exterior
Architectural Style
MOD
Construction Materials
STC
Security Features
AG, GC
Financial
HOA Fee
$611
HOA Frequency
MO
Get Out There, A Simply Outgoing Approach to Life. James Outland Jr. is one of those rare people who simply has an outgoing approach to life. No matter the activity… from dune buggy riding to skydiving to motorcycling to riding the local Pismo Beach waves… James Outland Jr. approaches life with a “just get out there and do it” kind of attitude. A zest for Life. James’ zest for life is obviously apparent in his many exciting hobbies. In his spare time, he loves riding dune buggies or hi…
More About JamesMortgage Calculator
Map
Current real estate data for Condo in Palm Springs as of Feb 13, 2026
312
Condo Listed
47
Avg DOM
381
Avg $ / SqFt
$491,105
Avg List Price
Community
- Address1020 E Palm Canyon DR #101 Palm Springs CA
- SubdivisionBiltmore Colony
- CityPalm Springs
- CountyRiverside
- Zip Code92264
Similar Listings Nearby
Property Summary
- Located in the Biltmore Colony subdivision, 1020 E Palm Canyon DR #101 Palm Springs CA is a Condo for sale in Palm Springs, CA, 92264. It is listed for $529,000 and features 2 beds, 2 baths, and has approximately 1,257 square feet of living space, and was originally constructed in 2006. The current price per square foot is $421. The average price per square foot for Condo listings in Palm Springs is $381. The average listing price for Condo in Palm Springs is $491,105. To schedule a showing of MLS#26642731ps at 1020 E Palm Canyon DR #101 in Palm Springs, CA, contact your James Outland agent at 8057482262.
Courtesy of Keller Williams Luxury Homes. Disclaimer: All data relating to real estate for sale on this page comes from the Broker Reciprocity (BR) of the California Regional Multiple Listing Service. Detailed information about real estate listings held by brokerage firms other than James Outland include the name of the listing broker. Neither the listing company nor James Outland shall be responsible for any typographical errors, misinformation, misprints and shall be held totally harmless. The Broker providing this data believes it to be correct, but advises interested parties to confirm any item before relying on it in a purchase decision. Copyright 2026. California Regional Multiple Listing Service. All rights reserved. 1020 E Palm Canyon DR #101
Palm Springs, CA

















































