$2,299,000
618 Forest AV
Pacific Grove, CA, 93950
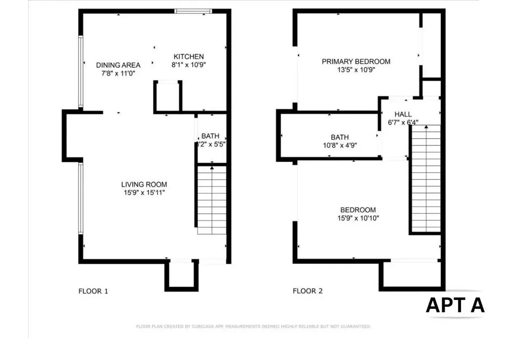
Rare offering in prime Pacific Grove within the highly regarded Pacific Grove Unified School District.* Fully occupied fourplex with $12,280 in monthly gross income and strong rental fundamentals. Ideal for an owner-occupant to live in one unit and rent three, or hold as a pure income asset. All units are refreshed with in-unit washer-dryer combos and kitchen appliances, and most kitchens and baths are renovated. On-site parking includes four covered carports. Clear value-add: approx. 788 sq ft ADU plan already City-approved and Water Credits purchased. Walkable to shops, dining, parks, beach, and transit. Please do not disturb occupants.
Property Details
Price:
$2,299,000
MLS #:
ML82022645
Status:
Active
Beds:
0
Baths:
0
Type:
Single Family
Subtype:
Quadruplex
Neighborhood:
699notdefined
Listed Date:
Sep 24, 2025
Finished Sq Ft:
3,737
Total Sq Ft:
3,737
Lot Size:
5,200 sqft / 0.12 acres (approx)
Year Built:
1972
Schools
School District:
Other
Elementary School:
Other
Middle School:
Pacific Grove
High School:
Pacific Grove
Interior
Cooling
NO
Heating
FA
Exterior
Accessibility Features
PK
Parking Spots
2
Parking Total
2
Roof
CMP
Financial
Get Out There, A Simply Outgoing Approach to Life. James Outland Jr. is one of those rare people who simply has an outgoing approach to life. No matter the activity… from dune buggy riding to skydiving to motorcycling to riding the local Pismo Beach waves… James Outland Jr. approaches life with a “just get out there and do it” kind of attitude. A zest for Life. James’ zest for life is obviously apparent in his many exciting hobbies. In his spare time, he loves riding dune buggies or hi…
More About JamesMortgage Calculator
Map
Current real estate data for Single Family in Pacific Grove as of Apr 12, 2026
45
Single Family Listed
90
Avg DOM
1,185
Avg $ / SqFt
$2,006,489
Avg List Price
Community
- Address618 Forest AV Pacific Grove CA
- CityPacific Grove
- CountyMonterey
- Zip Code93950
Similar Listings Nearby
Property Summary
- 618 Forest AV Pacific Grove CA is a Single Family for sale in Pacific Grove, CA, 93950. It is listed for $2,299,000 and features 0 beds, 0 baths, and has approximately 3,737 square feet of living space, and was originally constructed in 1972. The current price per square foot is $615. The average price per square foot for Single Family listings in Pacific Grove is $1,185. The average listing price for Single Family in Pacific Grove is $2,006,489. To schedule a showing of MLS#ml82022645 at 618 Forest AV in Pacific Grove, CA, contact your James Outland agent at 8057482262.
Courtesy of Compass. Disclaimer: All data relating to real estate for sale on this page comes from the Broker Reciprocity (BR) of the California Regional Multiple Listing Service. Detailed information about real estate listings held by brokerage firms other than James Outland include the name of the listing broker. Neither the listing company nor James Outland shall be responsible for any typographical errors, misinformation, misprints and shall be held totally harmless. The Broker providing this data believes it to be correct, but advises interested parties to confirm any item before relying on it in a purchase decision. Copyright 2026. California Regional Multiple Listing Service. All rights reserved. 618 Forest AV
Pacific Grove, CA
















































































