$1,899,000
5040 Island View ST
Oxnard, CA, 93035
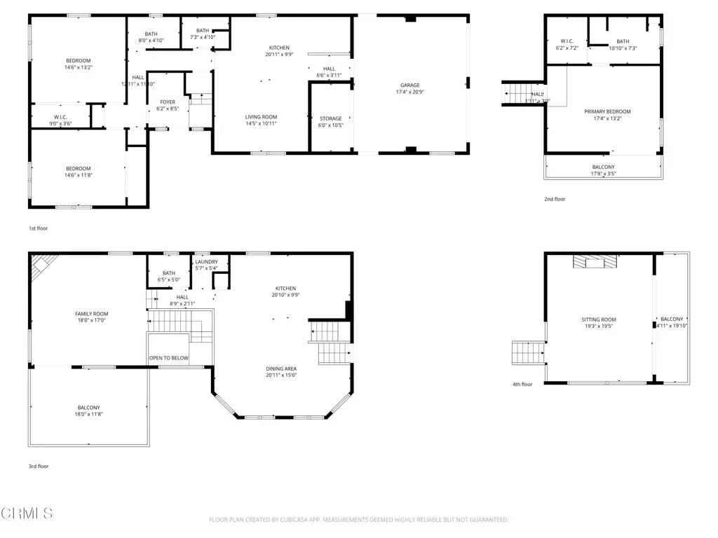
Welcome to Mandalay Shores, a beautifully remodeled coastal home with ocean views just steps from the sand. Designed for the ultimate Oxnard beach lifestyle, the home offers multiple decks for relaxing or entertaining while enjoying the spectacular sunsets that make this community so special.The first level is designed for flexible living and features two bedrooms, an updated bathroom, and a secondary kitchenette with living space — ideal for guests, multi-generational living, entertaining, or even a private movie room.Upstairs, the primary suite offers a private balcony, walk-in closet, and a beautifully remodeled Carrara marble bathroom. The family room features a gas fireplace, built-in storage, and a deck with ocean views, creating the perfect space for sunset gatherings or quiet mornings by the sea.The chef’s kitchen showcases all-new appliances, Carrara marble countertops, a center island, and thoughtful design that opens to the living room, family room, and oversized dining area, creating seamless indoor-outdoor flow for everyday living and entertaining.Recent upgrades include new flooring throughout, recessed lighting, ceiling fans, tankless water heater, mini-split HVAC system, upgraded electrical panel, and a new roof.Outside, the landscaped front and side yards provide space for outdoor dining, entertaining, or adding a spa, while the two-car garage offers convenience and additional storage.Located near Channel Islands Harbor, the home provides easy access to boating, kayaking, paddleboarding, golf, shopping, and local dining. Here, coastal charm, modern comfort, and Ventura County’s natural beauty come together to create a true beach retreat.
Property Details
Price:
$1,899,000
MLS #:
V1-35169
Status:
Active
Beds:
3
Baths:
4
Type:
Single Family
Subtype:
Single Family Residence
Subdivision:
Oxnard Shores 01 – 127701
Neighborhood:
vc32oxnardporthuenemebeaches
Listed Date:
Mar 14, 2026
Finished Sq Ft:
2,492
Lot Size:
3,920 sqft / 0.09 acres (approx)
Year Built:
1985
Schools
Interior
Appliances
DW, FZ, MW, RF, GR, GWH
Bathrooms
2 Full Bathrooms, 1 Half Bathroom, 1 One Quarter Bathroom
Flooring
LAM, STON, WOOD
Interior Features
LRBA, OFP, HCEL
Laundry Features
IR, IN
Levels
C
Main Level Bathrooms
1
Main Level Bedrooms
2
Exterior
Attached Garage YN
1
Common Walls
NCW
Community Features
CRB, GOLF, WATE, BIKI
Construction Materials
STC
Fencing
WD
Garage Spaces
2
Parking Spots
2
Parking Total
2
Patio And Porch Features
CON, DK
Roof
CMP
Security Features
SS, SD, COD
Spa Features
NO
View
MT, OC, WA
Financial
Get Out There, A Simply Outgoing Approach to Life. James Outland Jr. is one of those rare people who simply has an outgoing approach to life. No matter the activity… from dune buggy riding to skydiving to motorcycling to riding the local Pismo Beach waves… James Outland Jr. approaches life with a “just get out there and do it” kind of attitude. A zest for Life. James’ zest for life is obviously apparent in his many exciting hobbies. In his spare time, he loves riding dune buggies or hi…
More About JamesMortgage Calculator
Map
Current real estate data for Single Family in Oxnard as of Apr 11, 2026
242
Single Family Listed
69
Avg DOM
458
Avg $ / SqFt
$1,026,927
Avg List Price
Community
- Address5040 Island View ST Oxnard CA
- SubdivisionOxnard Shores 01 – 127701
- CityOxnard
- CountyVentura
- Zip Code93035
Similar Listings Nearby
Property Summary
- Located in the Oxnard Shores 01 – 127701 subdivision, 5040 Island View ST Oxnard CA is a Single Family for sale in Oxnard, CA, 93035. It is listed for $1,899,000 and features 3 beds, 4 baths, and has approximately 2,492 square feet of living space, and was originally constructed in 1985. The current price per square foot is $762. The average price per square foot for Single Family listings in Oxnard is $458. The average listing price for Single Family in Oxnard is $1,026,927. To schedule a showing of MLS#v1-35169 at 5040 Island View ST in Oxnard, CA, contact your James Outland agent at 8057482262.
Courtesy of RE/MAX Gold Coast-Beach Office. Disclaimer: All data relating to real estate for sale on this page comes from the Broker Reciprocity (BR) of the California Regional Multiple Listing Service. Detailed information about real estate listings held by brokerage firms other than James Outland include the name of the listing broker. Neither the listing company nor James Outland shall be responsible for any typographical errors, misinformation, misprints and shall be held totally harmless. The Broker providing this data believes it to be correct, but advises interested parties to confirm any item before relying on it in a purchase decision. Copyright 2026. California Regional Multiple Listing Service. All rights reserved. 5040 Island View ST
Oxnard, CA




















































