$1,599,000
994 N Cleveland ST
Orange, CA, 92867
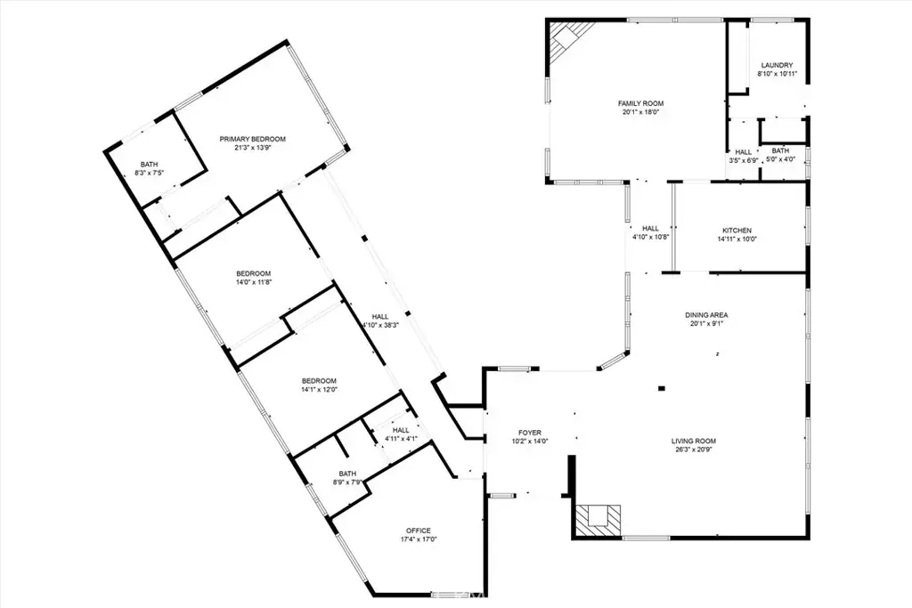
Welcome to 994 N Cleveland Street, an architect-designed, custom-built single-story ranch residence where timeless design meets comfort and sophistication. Originally crafted in 1960 by a distinguished local architect, this 3-bedroom, 2.5-bathroom estate offers approximately 2,916 square feet of living space on a rare, oversized 17,064 square foot end-of-cul-de-sac lot—one of the most sought-after settings in Orange. The home’s thoughtful layout balances elegance and livability. A formal living room with fireplace and a refined dining room set the stage for gatherings, while the spacious family room also with a fireplace and updated kitchen provide a welcoming hub for everyday life. A large dedicated office allows flexibility as a potential fourth bedroom. Designed to embrace Southern California’s indoor-outdoor lifestyle, the residence partially wraps around a private backyard retreat, complete with a sparkling pool, mature fruit trees, and lush greenery—ideal for hosting or simply unwinding in tranquility. Additional highlights include a detached rear-facing two-car garage, an expansive driveway with RV/guest parking, and generous grounds offering space for gardening, play, or future expansion. The property has a large utility/Laundry room. The Neighborhood Situated in one of Orange’s most desirable enclaves, this property enjoys both privacy and convenience. Just moments away lies the charm of Old Towne Orange, renowned for its historic plaza, antique shops, and award-winning dining. The home is also close to Chapman University, top-rated schools, and cultural destinations like the Hilbert Museum of California Art. For leisure, nearby Peters Canyon Regional Park and Santiago Oaks Regional Park offer miles of trails, while Disneyland Resort, Angel Stadium, and Honda Center provide world-class entertainment within minutes. Easy freeway access ensures a seamless connection to the beaches of Newport, Huntington, and Laguna, as well as the greater Southern California region.
Property Details
Price:
$1,599,000
MLS #:
OC26005547
Status:
Active
Beds:
3
Baths:
3
Type:
Single Family
Subtype:
Single Family Residence
Neighborhood:
otooldtowneorange
Listed Date:
Jan 10, 2026
Finished Sq Ft:
2,916
Lot Size:
17,064 sqft / 0.39 acres (approx)
Year Built:
1960
Schools
School District:
Orange Unified
Interior
Appliances
DW, GD, MW, WP, WLR, ES, BIR, ER, GWH, SCO, VEF, WS
Bathrooms
2 Three Quarter Bathrooms, 1 Half Bathroom
Cooling
CA
Flooring
TILE, VINY, WOOD
Heating
FA, GAS, CF, FIR
Laundry Features
GAS, IR, IN, WH
Exterior
Community Features
SDW, CRB
Parking Spots
3
Financial
Get Out There, A Simply Outgoing Approach to Life. James Outland Jr. is one of those rare people who simply has an outgoing approach to life. No matter the activity… from dune buggy riding to skydiving to motorcycling to riding the local Pismo Beach waves… James Outland Jr. approaches life with a “just get out there and do it” kind of attitude. A zest for Life. James’ zest for life is obviously apparent in his many exciting hobbies. In his spare time, he loves riding dune buggies or hi…
More About JamesMortgage Calculator
Map
Current real estate data for Single Family in Orange as of Feb 13, 2026
210
Single Family Listed
49
Avg DOM
393
Avg $ / SqFt
$845,351
Avg List Price
Community
- Address994 N Cleveland ST Orange CA
- CityOrange
- CountyOrange
- Zip Code92867
Similar Listings Nearby
Property Summary
- 994 N Cleveland ST Orange CA is a Single Family for sale in Orange, CA, 92867. It is listed for $1,599,000 and features 3 beds, 3 baths, and has approximately 2,916 square feet of living space, and was originally constructed in 1960. The current price per square foot is $548. The average price per square foot for Single Family listings in Orange is $393. The average listing price for Single Family in Orange is $845,351. To schedule a showing of MLS#oc26005547 at 994 N Cleveland ST in Orange, CA, contact your James Outland agent at 8057482262.
Courtesy of Realty Discount Corporation. Disclaimer: All data relating to real estate for sale on this page comes from the Broker Reciprocity (BR) of the California Regional Multiple Listing Service. Detailed information about real estate listings held by brokerage firms other than James Outland include the name of the listing broker. Neither the listing company nor James Outland shall be responsible for any typographical errors, misinformation, misprints and shall be held totally harmless. The Broker providing this data believes it to be correct, but advises interested parties to confirm any item before relying on it in a purchase decision. Copyright 2026. California Regional Multiple Listing Service. All rights reserved. 994 N Cleveland ST
Orange, CA























































