$599,999
8724 Macarthur BL
Oakland, CA, 94605
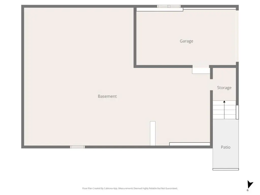
Welcome to 8724 MacArthur Blvd a beautifully reimagined Oakland gem! This stunning home has been meticulously remodeled from top to bottom with no expense spared, delivering modern style, comfort, and true move-in-ready living. Step inside to an open, airy layout with luxury vinyl plank flooring and a show-stopping brand-new kitchen featuring all-new appliances, a pot filler over the range, and abundant white cabinetry for stylish storageperfect for cooking and entertaining. A dedicated washer & dryer area adds everyday convenience. The fully remodeled bathroom showcases premium finishes and a thoughtful, easy-to-use design. The primary bedroom features a spacious walk-in closet, offering excellent storage and organization. Enjoy year-round comfort with a brand-new HVAC system and A/C, plus major upgrades including new insulation, roof, and windows for energy efficiency and peace of mind. Outside, enjoy fresh landscaping, a new stamped concrete driveway, and a new front fence and gate for added curb appeal and privacy. The low-maintenance backyard offers peaceful upper-level views. The finished garage includes new lighting and epoxy floors. The unfinished basement is a blank canvasperfect for extra living space or a potential J-ADU. Book your Visit today before it’s gone!
Property Details
Price:
$599,999
MLS #:
ML82031952
Status:
Active
Beds:
2
Baths:
1
Type:
Single Family
Subtype:
Single Family Residence
Neighborhood:
699notdefined
Listed Date:
Jan 22, 2026
Finished Sq Ft:
903
Lot Size:
5,200 sqft / 0.12 acres (approx)
Year Built:
1923
Schools
School District:
Other
Elementary School:
Howard
Middle School:
Other
Interior
Appliances
RF, GO
Bathrooms
1 Full Bathroom
Cooling
CA
Flooring
WOOD
Laundry Features
DINC, WINC
Exterior
Parking Spots
1
Roof
SHN
Financial
Get Out There, A Simply Outgoing Approach to Life. James Outland Jr. is one of those rare people who simply has an outgoing approach to life. No matter the activity… from dune buggy riding to skydiving to motorcycling to riding the local Pismo Beach waves… James Outland Jr. approaches life with a “just get out there and do it” kind of attitude. A zest for Life. James’ zest for life is obviously apparent in his many exciting hobbies. In his spare time, he loves riding dune buggies or hi…
More About JamesMortgage Calculator
Map
Current real estate data for Single Family in Oakland as of Feb 13, 2026
335
Single Family Listed
76
Avg DOM
469
Avg $ / SqFt
$884,716
Avg List Price
Community
- Address8724 Macarthur BL Oakland CA
- CityOakland
- CountyAlameda
- Zip Code94605
Similar Listings Nearby
Property Summary
- 8724 Macarthur BL Oakland CA is a Single Family for sale in Oakland, CA, 94605. It is listed for $599,999 and features 2 beds, 1 baths, and has approximately 903 square feet of living space, and was originally constructed in 1923. The current price per square foot is $664. The average price per square foot for Single Family listings in Oakland is $469. The average listing price for Single Family in Oakland is $884,716. To schedule a showing of MLS#ml82031952 at 8724 Macarthur BL in Oakland, CA, contact your James Outland agent at 8057482262.
Courtesy of Kollab Real Estate. Disclaimer: All data relating to real estate for sale on this page comes from the Broker Reciprocity (BR) of the California Regional Multiple Listing Service. Detailed information about real estate listings held by brokerage firms other than James Outland include the name of the listing broker. Neither the listing company nor James Outland shall be responsible for any typographical errors, misinformation, misprints and shall be held totally harmless. The Broker providing this data believes it to be correct, but advises interested parties to confirm any item before relying on it in a purchase decision. Copyright 2026. California Regional Multiple Listing Service. All rights reserved. 8724 Macarthur BL
Oakland, CA










































