$599,000
13 W Dana ST
Nipomo, CA, 93444
Here’s a great opportunity to own almost one-half acre zoned commercial retail in Old Town Nipomo, located in the East Tefft corridor development district. If you’re looking to buy in the path of progress, this parcel deserves a close look.
You’ll appreciate the flexibility here:
• Hold as a land bank in a growing community
• Move toward entitlements and sell
• Or build it out to its highest and best use for future rental income
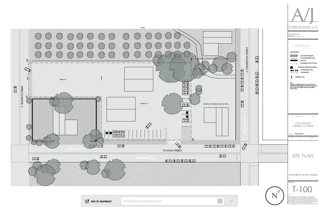
Preliminary conversations with the county suggest there may be potential for at least ten residential units with a conditional use permit along with commercial space and possible building heights up to forty-five feet. All information in this listing must be verified with San Luis Obispo County by the buyer or buyer’s agent.
All utilities are available at the street which making development user-friendly. The L-shaped parcel wraps around the home on the corner, and that home is not part of the sale. The setting is tranquil yet convenient, positioned between West Dana Street and South Burton Street across from La Cazuela’s restaurant.
Nipomo continues to attract residents and investors for its small-town charm, gentle climate and central location. Enjoy easy access to Highway 101, local dining, golf and wineries, and a welcoming community with steady growth. It’s a place where families put down roots and long-term investment makes sense.
Why wait? Start your next investment chapter today.
Conceptual rendering ONLY included in the photos provided to illustrate potential mixed-use development allowed under current zoning. Buyer to verify all information, permits and development options with SLO county planning department and do their own due diligence prior to close of escrow.
You’ll appreciate the flexibility here:
• Hold as a land bank in a growing community
• Move toward entitlements and sell
• Or build it out to its highest and best use for future rental income
Preliminary conversations with the county suggest there may be potential for at least ten residential units with a conditional use permit along with commercial space and possible building heights up to forty-five feet. All information in this listing must be verified with San Luis Obispo County by the buyer or buyer’s agent.
All utilities are available at the street which making development user-friendly. The L-shaped parcel wraps around the home on the corner, and that home is not part of the sale. The setting is tranquil yet convenient, positioned between West Dana Street and South Burton Street across from La Cazuela’s restaurant.
Nipomo continues to attract residents and investors for its small-town charm, gentle climate and central location. Enjoy easy access to Highway 101, local dining, golf and wineries, and a welcoming community with steady growth. It’s a place where families put down roots and long-term investment makes sense.
Why wait? Start your next investment chapter today.
Conceptual rendering ONLY included in the photos provided to illustrate potential mixed-use development allowed under current zoning. Buyer to verify all information, permits and development options with SLO county planning department and do their own due diligence prior to close of escrow.
Property Details
Price:
$599,000
MLS #:
PI25262152
Status:
Active
Beds:
0
Baths:
0
Type:
Land
Subdivision:
Nipomo340
Neighborhood:
npmonipomo
Listed Date:
Dec 18, 2025
Lot Size:
20,000 sqft / 0.46 acres (approx)
Schools
Interior
Exterior
Community Features
MTN, BIKI
Financial
Get Out There, A Simply Outgoing Approach to Life. James Outland Jr. is one of those rare people who simply has an outgoing approach to life. No matter the activity… from dune buggy riding to skydiving to motorcycling to riding the local Pismo Beach waves… James Outland Jr. approaches life with a “just get out there and do it” kind of attitude. A zest for Life. James’ zest for life is obviously apparent in his many exciting hobbies. In his spare time, he loves riding dune buggies or hi…
More About JamesMortgage Calculator
Map
Community
- Address13 W Dana ST Nipomo CA
- SubdivisionNipomo(340)
- CityNipomo
- CountySan Luis Obispo
- Zip Code93444
Subdivisions in Nipomo
Similar Listings Nearby
Property Summary
- Located in the Nipomo(340) subdivision, 13 W Dana ST Nipomo CA is a Land for sale in Nipomo, CA, 93444. It is listed for $599,000 and features 0 acres. To schedule a showing of MLS#pi25262152 at 13 W Dana ST in Nipomo, CA, contact your James Outland agent at 8057482262.
Courtesy of RE/MAX Success. Disclaimer: All data relating to real estate for sale on this page comes from the Broker Reciprocity (BR) of the California Regional Multiple Listing Service. Detailed information about real estate listings held by brokerage firms other than James Outland include the name of the listing broker. Neither the listing company nor James Outland shall be responsible for any typographical errors, misinformation, misprints and shall be held totally harmless. The Broker providing this data believes it to be correct, but advises interested parties to confirm any item before relying on it in a purchase decision. Copyright 2026. California Regional Multiple Listing Service. All rights reserved. 13 W Dana ST
Nipomo, CA














