$12,904
2280 Newport BL #203
Newport Beach, CA, 92663
Enjoy 2 Months Free Rent on a 13-Month Lease for an average Monthly Rent of $12,904.
Peninsula Village stands as a true testament to elevated bayfront living, offering 27 luxury villas in the heart of Newport Beach Harbor. Each residence captures breathtaking views of Newport Harbor, the Pacific Ocean, and Catalina Island, paired with sophisticated design and exceptional amenities that define coastal luxury.
Residents enjoy unparalleled proximity to waterside dining, chic boutiques, and modern office spaces—placing the best of Newport Beach just steps away.
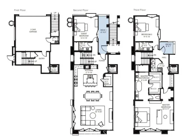
Spanning approximately 3,200 sqft across three levels, this villa features three bedrooms and three bathrooms within light-filled interiors designed to balance elegance and comfort. Highlights include an open floor plan, a chef’s kitchen with Wolf, SubZero, and ASKO appliances, PoggenPohl cabinetry and two decks. A private elevator connects the residence to its enclosed two-car garage, ensuring convenience and privacy at every turn.
Peninsula Village further elevates daily living with exclusive amenities including: Private Duffy boat with a chauffeur, Upscale clubhouse, State of the Art fitness center, 24-hour security, Concierge Staff & Services, Yacht slips accommodating vessels up to 75 feet.
At Peninsula Village, world-class amenities, refined interiors, and iconic harbor views combine to create a lifestyle where every day feels like a getaway.
Peninsula Village stands as a true testament to elevated bayfront living, offering 27 luxury villas in the heart of Newport Beach Harbor. Each residence captures breathtaking views of Newport Harbor, the Pacific Ocean, and Catalina Island, paired with sophisticated design and exceptional amenities that define coastal luxury.
Residents enjoy unparalleled proximity to waterside dining, chic boutiques, and modern office spaces—placing the best of Newport Beach just steps away.
Spanning approximately 3,200 sqft across three levels, this villa features three bedrooms and three bathrooms within light-filled interiors designed to balance elegance and comfort. Highlights include an open floor plan, a chef’s kitchen with Wolf, SubZero, and ASKO appliances, PoggenPohl cabinetry and two decks. A private elevator connects the residence to its enclosed two-car garage, ensuring convenience and privacy at every turn.
Peninsula Village further elevates daily living with exclusive amenities including: Private Duffy boat with a chauffeur, Upscale clubhouse, State of the Art fitness center, 24-hour security, Concierge Staff & Services, Yacht slips accommodating vessels up to 75 feet.
At Peninsula Village, world-class amenities, refined interiors, and iconic harbor views combine to create a lifestyle where every day feels like a getaway.
Property Details
Price:
$12,904
MLS #:
NP25237060
Status:
Active
Beds:
3
Baths:
3
Type:
Single Family
Subtype:
Townhouse
Neighborhood:
n8westnewportlido
Listed Date:
Oct 10, 2025
Finished Sq Ft:
3,539
Year Built:
2017
Schools
School District:
Newport Mesa Unified
Elementary School:
Newport
Middle School:
Horace Ensign
High School:
Newport Harbor
Interior
Appliances
DW, FZ, GD, MW, RF, GO, GS, HOD, TW
Bathrooms
3 Full Bathrooms
Cooling
CA
Interior Features
ST, DATA, SUND, UFRN, OFP, PTRY, EV
Laundry Features
IR, IN, UL
Levels
C
Main Level Bathrooms
4
Main Level Bedrooms
3
Exterior
Accessibility Features
ELV
Attached Garage YN
1
Common Walls
NOA, NOB, _1CW
Community Features
SDW, SL, URB, CRB
Garage Spaces
2
Parking Spots
2
Parking Total
2
Patio And Porch Features
DK
Security Features
_24HR
Spa Features
NO
View
CI, HA, WA
Waterfront Features
OCN, OSF, OS, NGW, BAY, MAR
Financial
Get Out There, A Simply Outgoing Approach to Life. James Outland Jr. is one of those rare people who simply has an outgoing approach to life. No matter the activity… from dune buggy riding to skydiving to motorcycling to riding the local Pismo Beach waves… James Outland Jr. approaches life with a “just get out there and do it” kind of attitude. A zest for Life. James’ zest for life is obviously apparent in his many exciting hobbies. In his spare time, he loves riding dune buggies or hi…
More About JamesMortgage Calculator
Map
Current real estate data for Single Family in Newport Beach as of Apr 05, 2026
433
Single Family Listed
90
Avg DOM
1,171
Avg $ / SqFt
$3,766,533
Avg List Price
Community
- Address2280 Newport BL #203 Newport Beach CA
- SubdivisionOther (OTHR)
- CityNewport Beach
- CountyOrange
- Zip Code92663
Similar Listings Nearby
Property Summary
- Located in the Other (OTHR) subdivision, 2280 Newport BL #203 Newport Beach CA is a Single Family for sale in Newport Beach, CA, 92663. It is listed for $12,904 and features 3 beds, 3 baths, and has approximately 3,539 square feet of living space, and was originally constructed in 2017. The current price per square foot is $4. The average price per square foot for Single Family listings in Newport Beach is $1,171. The average listing price for Single Family in Newport Beach is $3,766,533. To schedule a showing of MLS#np25237060 at 2280 Newport BL #203 in Newport Beach, CA, contact your James Outland agent at 8057482262.
Courtesy of Coldwell Banker Realty. Disclaimer: All data relating to real estate for sale on this page comes from the Broker Reciprocity (BR) of the California Regional Multiple Listing Service. Detailed information about real estate listings held by brokerage firms other than James Outland include the name of the listing broker. Neither the listing company nor James Outland shall be responsible for any typographical errors, misinformation, misprints and shall be held totally harmless. The Broker providing this data believes it to be correct, but advises interested parties to confirm any item before relying on it in a purchase decision. Copyright 2026. California Regional Multiple Listing Service. All rights reserved. 2280 Newport BL #203
Newport Beach, CA
















