$3,949,000
1245 W Balboa BL
Newport Beach, CA, 92661
Ocean View Beach Cottage with Approved Plans for a Luxury Home on Balboa Peninsula
Welcome to your dream property, just one row from the ocean with stunning views from the roof deck! This unique opportunity offers a charming beach cottage and a detached efficiency studio, perfect for immediate use or rental income. The property is located off a spacious 20-foot alley on a generous 31-foot wide by 102-foot-long lot, providing ample space and privacy.
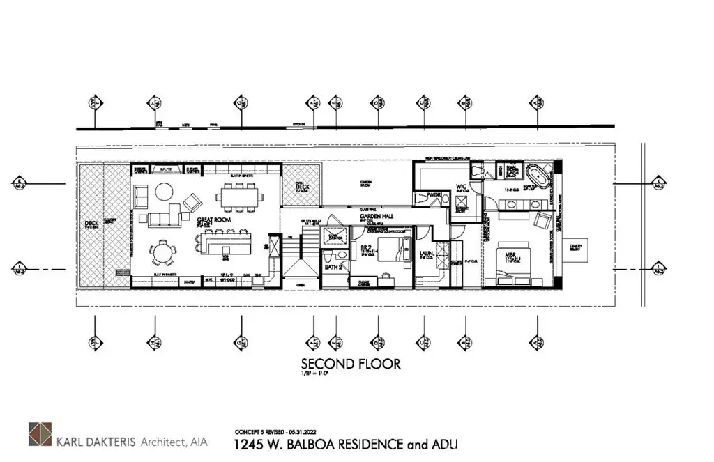
The beach cottage was completely remodeled in 2020, featuring new windows and a new roof, ensuring a comfortable and modern living experience. But the real gem of this property lies in its future potential. The owners have fully approved construction drawings from the City of Newport Beach, ready for a brand-new, 5 bedroom, three-story single-family dwelling.
Imagine living in a luxurious new home designed with every modern convenience in mind. The new home design includes five spacious bedrooms, each with its own full bath, and two additional powder rooms for guests. The first floor Family/Game room with bedroom, full bathroom, laundry and kitchenette is designed (per current design code) to easily be converted to an ADU (after future City approval). It offers its own entry and patio, perfect for extended family or rental income if preferred. The home also features a stunning three-story glass elevator, making every level easily accessible.
With a total of 3477sq. ft. in the main house including 533 sq. ft. in the Family/Game room area, there is plenty of room for everyone. The new construction will provide four off-street parking spaces, including an attached 2-car garage and a 2-car carport, ensuring ample parking for residents and guests. The second level boasts two decks, one with breathtaking ocean views, while the third level features an expansive 852 sq. ft. roof deck. This incredible outdoor space includes a powder room, appliances, BBQ, fire pit, and is designed for a hot tub, making it the perfect spot for entertaining or relaxing while enjoying the ocean views.
The Peninsula is a scenic three-mile stretch with the harbor on one side and sandy beaches on the other. The area is primarily residential with some commercial areas, offering a mix of waterfront restaurants, local surf shops, and some of the best nightlife in Newport Beach.
The permits are ready, and the property is set to move forward with construction.
Welcome to your dream property, just one row from the ocean with stunning views from the roof deck! This unique opportunity offers a charming beach cottage and a detached efficiency studio, perfect for immediate use or rental income. The property is located off a spacious 20-foot alley on a generous 31-foot wide by 102-foot-long lot, providing ample space and privacy.
The beach cottage was completely remodeled in 2020, featuring new windows and a new roof, ensuring a comfortable and modern living experience. But the real gem of this property lies in its future potential. The owners have fully approved construction drawings from the City of Newport Beach, ready for a brand-new, 5 bedroom, three-story single-family dwelling.
Imagine living in a luxurious new home designed with every modern convenience in mind. The new home design includes five spacious bedrooms, each with its own full bath, and two additional powder rooms for guests. The first floor Family/Game room with bedroom, full bathroom, laundry and kitchenette is designed (per current design code) to easily be converted to an ADU (after future City approval). It offers its own entry and patio, perfect for extended family or rental income if preferred. The home also features a stunning three-story glass elevator, making every level easily accessible.
With a total of 3477sq. ft. in the main house including 533 sq. ft. in the Family/Game room area, there is plenty of room for everyone. The new construction will provide four off-street parking spaces, including an attached 2-car garage and a 2-car carport, ensuring ample parking for residents and guests. The second level boasts two decks, one with breathtaking ocean views, while the third level features an expansive 852 sq. ft. roof deck. This incredible outdoor space includes a powder room, appliances, BBQ, fire pit, and is designed for a hot tub, making it the perfect spot for entertaining or relaxing while enjoying the ocean views.
The Peninsula is a scenic three-mile stretch with the harbor on one side and sandy beaches on the other. The area is primarily residential with some commercial areas, offering a mix of waterfront restaurants, local surf shops, and some of the best nightlife in Newport Beach.
The permits are ready, and the property is set to move forward with construction.
Property Details
Price:
$3,949,000
MLS #:
NP25186509
Status:
Active
Beds:
2
Baths:
1
Type:
Single Family
Subtype:
Single Family Residence
Neighborhood:
npbalboapeninsula
Listed Date:
Aug 18, 2025
Finished Sq Ft:
432
Lot Size:
3,184 sqft / 0.07 acres (approx)
Year Built:
1924
Schools
School District:
Newport Mesa Unified
Interior
Appliances
RF, GR, GWH, HOD, VEF
Bathrooms
1 Full Bathroom
Cooling
NO
Heating
BB
Laundry Features
OUT
Levels
A
Main Level Bathrooms
2
Main Level Bedrooms
2
Exterior
Accessibility Features
NO
Common Walls
NCW
Community Features
SDW, STM, SL, CRB, PSV, PARK, FISH, WATE, HIKI, BIKI
Parking Spots
1
Parking Total
1
Patio And Porch Features
POF
View
NO
Financial
Get Out There, A Simply Outgoing Approach to Life. James Outland Jr. is one of those rare people who simply has an outgoing approach to life. No matter the activity… from dune buggy riding to skydiving to motorcycling to riding the local Pismo Beach waves… James Outland Jr. approaches life with a “just get out there and do it” kind of attitude. A zest for Life. James’ zest for life is obviously apparent in his many exciting hobbies. In his spare time, he loves riding dune buggies or hi…
More About JamesMortgage Calculator
Map
Current real estate data for Single Family in Newport Beach as of Apr 06, 2026
433
Single Family Listed
91
Avg DOM
1,171
Avg $ / SqFt
$3,766,533
Avg List Price
Community
- Address1245 W Balboa BL Newport Beach CA
- SubdivisionOther (OTHR)
- CityNewport Beach
- CountyOrange
- Zip Code92661
Similar Listings Nearby
Property Summary
- Located in the Other (OTHR) subdivision, 1245 W Balboa BL Newport Beach CA is a Single Family for sale in Newport Beach, CA, 92661. It is listed for $3,949,000 and features 2 beds, 1 baths, and has approximately 432 square feet of living space, and was originally constructed in 1924. The current price per square foot is $9,141. The average price per square foot for Single Family listings in Newport Beach is $1,171. The average listing price for Single Family in Newport Beach is $3,766,533. To schedule a showing of MLS#np25186509 at 1245 W Balboa BL in Newport Beach, CA, contact your James Outland agent at 8057482262.
Courtesy of Pacific OC Properties. Disclaimer: All data relating to real estate for sale on this page comes from the Broker Reciprocity (BR) of the California Regional Multiple Listing Service. Detailed information about real estate listings held by brokerage firms other than James Outland include the name of the listing broker. Neither the listing company nor James Outland shall be responsible for any typographical errors, misinformation, misprints and shall be held totally harmless. The Broker providing this data believes it to be correct, but advises interested parties to confirm any item before relying on it in a purchase decision. Copyright 2026. California Regional Multiple Listing Service. All rights reserved. 1245 W Balboa BL
Newport Beach, CA































