$499,996
18346 Vista de Montanas
Murrieta, CA, 92562
The client has just received approved plans for the septic tank from the County of Riverside.
Welcome to the extraordinary opportunity of a lifetime — your multimillion-dollar dream home
project awaits! Nestled in the breathtaking, magnificent equestrian countryside of La Cresta,
this remarkable 12.55-acre parcel of vacant land boasts spectacular mountain and valley views
that will inspire you every day. With approved architectural plans already in place, you can
build your piece of paradise without the hassle and financial strain of
preliminary preparations!
Conveniently located just minutes from the I-15, you will find yourself surrounded by brand new
shopping centers, major retailers, state-of-the-art healthcare facilities, and an array of
entertainment options. Experience the thrill of nearby water parks, serene lakes, exhilarating
water sports, and even skydiving adventures, all contributing to a vibrant lifestyle!
The groundwork for your dream home has already been laid, with rough grading completed and
essential utilities, including electrical and water lines on the property. Imagine a
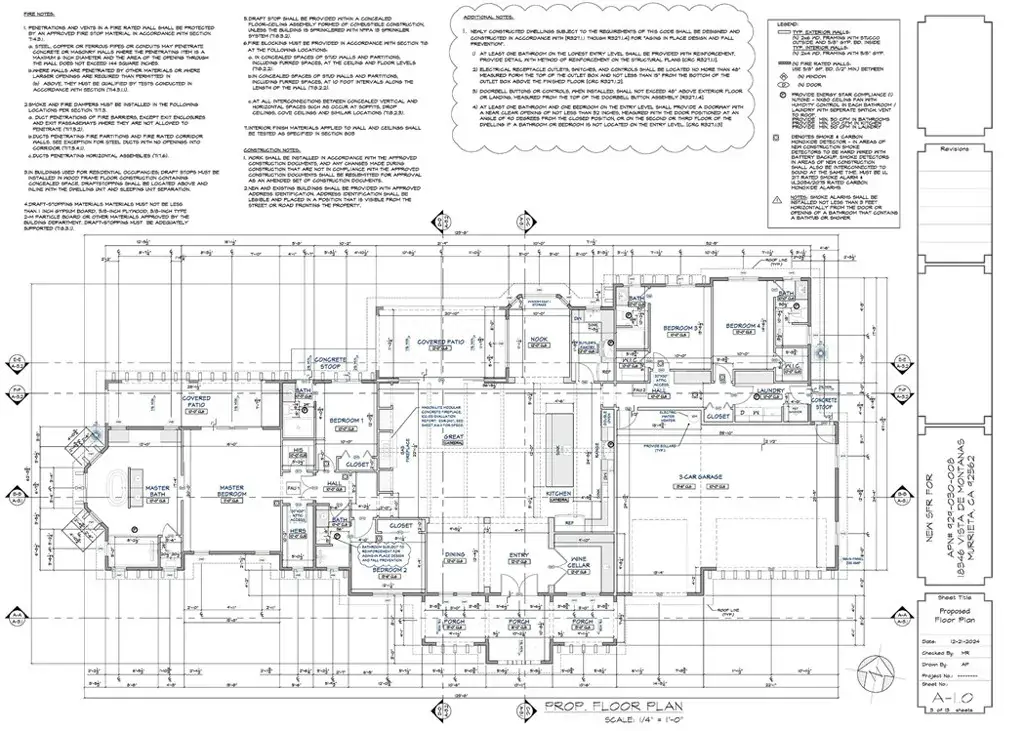
stunning abode featuring a 5-bedroom, 5-bathroom open floor plan, complete with private
retreats outside each bedroom. The proposed home plans encompass a generous 3,540 square
feet of living space, complemented by a 467 square foot covered patio and a charming 293
square foot porch. Indulge your passion for wine with the dedicated wine cellar, where you can
curate a collection from the fruits of your land or select from the exquisite varieties crafted in
nearby Temecula wine country.
Designed with culinary enthusiasts in mind, the main kitchen beckons master chefs, while an
additional butler’s kitchen caters to all your entertaining needs. The expansive 961 square foot
A 3-car garage features a designated space for a small RV and ample room for a workshop
or hobby setup — a dream come true for any enthusiast!
The property offers gently sloping areas with endless possibilities for further development,
including a barn, workshop, or even a second unit. Additionally, the seller has secured
preliminary approval to subdivide the land into two distinct parcels, allowing construction of two entirely separate homes, each with its own additional unit. This subdivision
can be pursued while you focus on building your primary residence.
Reach out to the agent for a detailed set of plans, reports, or any
questions you may have.
Welcome to the extraordinary opportunity of a lifetime — your multimillion-dollar dream home
project awaits! Nestled in the breathtaking, magnificent equestrian countryside of La Cresta,
this remarkable 12.55-acre parcel of vacant land boasts spectacular mountain and valley views
that will inspire you every day. With approved architectural plans already in place, you can
build your piece of paradise without the hassle and financial strain of
preliminary preparations!
Conveniently located just minutes from the I-15, you will find yourself surrounded by brand new
shopping centers, major retailers, state-of-the-art healthcare facilities, and an array of
entertainment options. Experience the thrill of nearby water parks, serene lakes, exhilarating
water sports, and even skydiving adventures, all contributing to a vibrant lifestyle!
The groundwork for your dream home has already been laid, with rough grading completed and
essential utilities, including electrical and water lines on the property. Imagine a
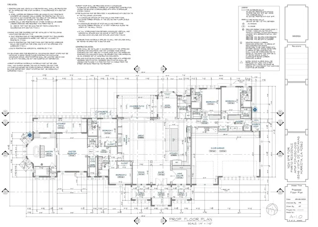
stunning abode featuring a 5-bedroom, 5-bathroom open floor plan, complete with private
retreats outside each bedroom. The proposed home plans encompass a generous 3,540 square
feet of living space, complemented by a 467 square foot covered patio and a charming 293
square foot porch. Indulge your passion for wine with the dedicated wine cellar, where you can
curate a collection from the fruits of your land or select from the exquisite varieties crafted in
nearby Temecula wine country.
Designed with culinary enthusiasts in mind, the main kitchen beckons master chefs, while an
additional butler’s kitchen caters to all your entertaining needs. The expansive 961 square foot
A 3-car garage features a designated space for a small RV and ample room for a workshop
or hobby setup — a dream come true for any enthusiast!
The property offers gently sloping areas with endless possibilities for further development,
including a barn, workshop, or even a second unit. Additionally, the seller has secured
preliminary approval to subdivide the land into two distinct parcels, allowing construction of two entirely separate homes, each with its own additional unit. This subdivision
can be pursued while you focus on building your primary residence.
Reach out to the agent for a detailed set of plans, reports, or any
questions you may have.
Property Details
Price:
$499,996
MLS #:
IV25098223
Status:
Active
Beds:
0
Baths:
0
Type:
Land
Neighborhood:
srcarsouthwestriversidecounty
Listed Date:
May 2, 2025
Lot Size:
546,678 sqft / 12.55 acres (approx)
Schools
Interior
Exterior
Community Features
RS, HRS, MTN, WATE, HIKI, BIKI
Fencing
NO
View
CN, HI, MT, PA, VA
Financial
HOA Fee
$2,200
HOA Fee Frequency
ANU
Get Out There, A Simply Outgoing Approach to Life. James Outland Jr. is one of those rare people who simply has an outgoing approach to life. No matter the activity… from dune buggy riding to skydiving to motorcycling to riding the local Pismo Beach waves… James Outland Jr. approaches life with a “just get out there and do it” kind of attitude. A zest for Life. James’ zest for life is obviously apparent in his many exciting hobbies. In his spare time, he loves riding dune buggies or hi…
More About JamesMortgage Calculator
Map
Community
- Address18346 Vista de Montanas Murrieta CA
- CityMurrieta
- CountyRiverside
- Zip Code92562
Similar Listings Nearby
Property Summary
- 18346 Vista de Montanas Murrieta CA is a Land for sale in Murrieta, CA, 92562. It is listed for $499,996 and features 13 acres. To schedule a showing of MLS#iv25098223 at 18346 Vista de Montanas in Murrieta, CA, contact your James Outland agent at 8057482262.
Courtesy of SINGH REALTY & MORTGAGE. Disclaimer: All data relating to real estate for sale on this page comes from the Broker Reciprocity (BR) of the California Regional Multiple Listing Service. Detailed information about real estate listings held by brokerage firms other than James Outland include the name of the listing broker. Neither the listing company nor James Outland shall be responsible for any typographical errors, misinformation, misprints and shall be held totally harmless. The Broker providing this data believes it to be correct, but advises interested parties to confirm any item before relying on it in a purchase decision. Copyright 2026. California Regional Multiple Listing Service. All rights reserved. 18346 Vista de Montanas
Murrieta, CA








































