$2,250,000
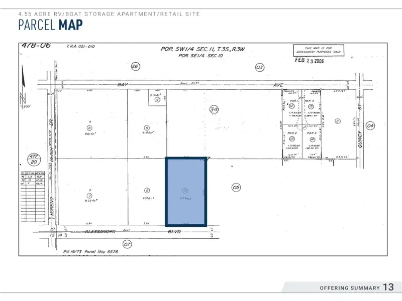
28196 Alessandro BL
Moreno Valley, CA, 92555
– 4.55 Acres Ideal for Mini-Storage, Apartments or Retail
– Possible to Re-Zone to Higher Density Residential Than Current R3 Zoning
– Within 5 Miles of Lake Perris a State Recreational Lake
– Close to the New Freeway Interchange on Moreno Beach Drive That was Completed in 2024
– City of Moreno Valley Job Creation Exceeding 30,000 Over the Past 10 Years
– Nearby World Logistics Center (WLC), a 40.6 Million Square Foot Project That Will Provide a $2 Billion Annual Economic Benefit to the City
– An Additional 20,000 New Jobs Coming From the Recently Approved WLC Project That Is Scheduled to Break Ground in 2025
– Close Proximity to the Riverside University Health System Medical Center, a Hospital That Employs 6,000 Workers and Has an Economic Impact of $1.6 Billion
– Nearby the New Kaiser Medical Center Project, an Expansion Plan That Will Add 1,125,000 Square Feet of Medical Services and Create 4,000 New Jobs in the City
-All Utilities Available and Nearby
– Possible to Re-Zone to Higher Density Residential Than Current R3 Zoning
– Within 5 Miles of Lake Perris a State Recreational Lake
– Close to the New Freeway Interchange on Moreno Beach Drive That was Completed in 2024
– City of Moreno Valley Job Creation Exceeding 30,000 Over the Past 10 Years
– Nearby World Logistics Center (WLC), a 40.6 Million Square Foot Project That Will Provide a $2 Billion Annual Economic Benefit to the City
– An Additional 20,000 New Jobs Coming From the Recently Approved WLC Project That Is Scheduled to Break Ground in 2025
– Close Proximity to the Riverside University Health System Medical Center, a Hospital That Employs 6,000 Workers and Has an Economic Impact of $1.6 Billion
– Nearby the New Kaiser Medical Center Project, an Expansion Plan That Will Add 1,125,000 Square Feet of Medical Services and Create 4,000 New Jobs in the City
-All Utilities Available and Nearby
Property Details
Price:
$2,250,000
MLS #:
IV25143906
Status:
Active
Beds:
0
Baths:
0
Type:
Land
Neighborhood:
259morenovalley
Listed Date:
Jun 26, 2025
Lot Size:
198,198 sqft / 4.55 acres (approx)
Schools
Interior
Exterior
Community Features
VLY
View
NO
Financial
Get Out There, A Simply Outgoing Approach to Life. James Outland Jr. is one of those rare people who simply has an outgoing approach to life. No matter the activity… from dune buggy riding to skydiving to motorcycling to riding the local Pismo Beach waves… James Outland Jr. approaches life with a “just get out there and do it” kind of attitude. A zest for Life. James’ zest for life is obviously apparent in his many exciting hobbies. In his spare time, he loves riding dune buggies or hi…
More About JamesMortgage Calculator
Map
Current real estate data for Land in Moreno Valley as of Apr 10, 2026
47
Land Listed
297
Avg DOM
$1,491,591
Avg List Price
Community
- Address28196 Alessandro BL Moreno Valley CA
- CityMoreno Valley
- CountyRiverside
- Zip Code92555
Similar Listings Nearby
Property Summary
- 28196 Alessandro BL Moreno Valley CA is a Land for sale in Moreno Valley, CA, 92555. It is listed for $2,250,000 and features 5 acres. To schedule a showing of MLS#iv25143906 at 28196 Alessandro BL in Moreno Valley, CA, contact your James Outland agent at 8057482262.
Courtesy of DIVERSIFIED REALTY INC.. Disclaimer: All data relating to real estate for sale on this page comes from the Broker Reciprocity (BR) of the California Regional Multiple Listing Service. Detailed information about real estate listings held by brokerage firms other than James Outland include the name of the listing broker. Neither the listing company nor James Outland shall be responsible for any typographical errors, misinformation, misprints and shall be held totally harmless. The Broker providing this data believes it to be correct, but advises interested parties to confirm any item before relying on it in a purchase decision. Copyright 2026. California Regional Multiple Listing Service. All rights reserved. 28196 Alessandro BL
Moreno Valley, CA










