$2,900,000
20704 Eagle pass DR
Malibu, CA, 90265
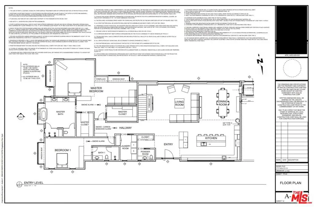
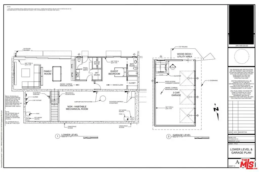
Rare 1.26-acre Las Flores 1993 burn lot with previously approved 5,600 sq ft RTI plans now in expedited reapproval under Palisade rebuild regulations and prior permitting. The south-facing site captures unobstructed canyon and ocean views. Plans feature 5 beds, 4 baths, an infinity pool, sauna, and 3-car garage. Situated on a private cul-de-sac just five minutes from PCH, shops, and restaurants an exceptional opportunity to build a Malibu dream home.
Property Details
Price:
$2,900,000
MLS #:
25530747
Status:
Active
Beds:
0
Baths:
0
Type:
Land
Subdivision:
Las Flores Mesa
Neighborhood:
c33malibu
Listed Date:
Jan 3, 2026
Lot Size:
54,981 sqft / 1.26 acres (approx)
Schools
Interior
Exterior
Financial
HOA Fee
$500
Get Out There, A Simply Outgoing Approach to Life. James Outland Jr. is one of those rare people who simply has an outgoing approach to life. No matter the activity… from dune buggy riding to skydiving to motorcycling to riding the local Pismo Beach waves… James Outland Jr. approaches life with a “just get out there and do it” kind of attitude. A zest for Life. James’ zest for life is obviously apparent in his many exciting hobbies. In his spare time, he loves riding dune buggies or hi…
More About JamesMortgage Calculator
Map
Community
- Address20704 Eagle pass DR Malibu CA
- SubdivisionLas Flores Mesa
- CityMalibu
- CountyLos Angeles
- Zip Code90265
Similar Listings Nearby
Property Summary
- Located in the Las Flores Mesa subdivision, 20704 Eagle pass DR Malibu CA is a Land for sale in Malibu, CA, 90265. It is listed for $2,900,000 and features 1 acres. To schedule a showing of MLS#25530747 at 20704 Eagle pass DR in Malibu, CA, contact your James Outland agent at 8057482262.
Courtesy of Compass. Disclaimer: All data relating to real estate for sale on this page comes from the Broker Reciprocity (BR) of the California Regional Multiple Listing Service. Detailed information about real estate listings held by brokerage firms other than James Outland include the name of the listing broker. Neither the listing company nor James Outland shall be responsible for any typographical errors, misinformation, misprints and shall be held totally harmless. The Broker providing this data believes it to be correct, but advises interested parties to confirm any item before relying on it in a purchase decision. Copyright 2026. California Regional Multiple Listing Service. All rights reserved. 20704 Eagle pass DR
Malibu, CA










