$1,198,000
500 Molino ST #214
Los Angeles, CA, 90013
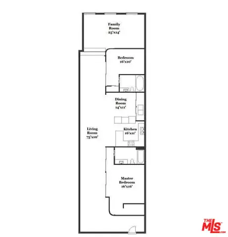
Welcome to the Molino St. Lofts, a 1920s warehouse reimagined for modern life in the heart of Downtown LA’s vibrant Arts District. Nestled within the converted industrial space, this impeccably designed Live/Work loft combines the raw charm of a NYC-style loft with contemporary luxury, boasting a fusion of artistic flair and modern amenities. Designed for both living and working, this loft provides ample space for creativity and productivity, with designated areas for lounging, dining, and working from home. Upon entering, you’re greeted by the original hardwood floors that exude character and warmth, leading you into an expansive living area adorned with stunning brick walls, providing a captivating backdrop for showcasing artwork and creating a dynamic atmosphere. The kitchen and two baths have been thoughtfully remodeled and expanded by the owner. The kitchen is a culinary delight, featuring sleek cabinetry, premium appliances, and ample counter space, perfect for entertaining guests or whipping up gourmet meals. This loft offers a versatile layout, with two separate bedrooms delineated by modern glass sliding doors for privacy. The master suite has a huge skylight that floods the space with natural light and boasts a spacious walk-in closet, providing ample storage for your wardrobe essentials. Both bathrooms have been elegantly appointed, offering a spa-like retreat with modern fixtures. Additional features include a new HVAC system, recessed lighting, in unit washer & dryer, and 1 rooftop parking space is included. Residents of this exclusive building enjoy access to a range of amenities, including a BBQ station, gym, and dual rooftop terraces featuring panoramic views of the Los Angeles skyline. Living here places you at the epicenter of the Arts District’s cultural scene, surrounded by culinary landmarks like Bestia and Bavel, as well as creative hubs like Hauser & Wirth and ROW DTLA. This space transcends the traditional loft, it is a sophisticated architectural landmark that functions perfectly as both a high-end residence and a professional creative space. Experience the best of urban living in one of the largest designed lofts in all of DTLA.
Property Details
Price:
$1,198,000
MLS #:
26642725
Status:
Active
Beds:
2
Baths:
2
Type:
Condo
Subtype:
Condominium
Neighborhood:
c23metropolitan
Listed Date:
Jan 24, 2026
Finished Sq Ft:
2,420
Total Sq Ft:
2,420
Lot Size:
83,084 sqft / 1.91 acres (approx)
Year Built:
1923
Schools
Interior
Appliances
DW, GD, MW, RF
Bathrooms
2 Full Bathrooms
Cooling
CA
Flooring
WOOD
Heating
CF
Laundry Features
DINC, WINC
Levels
A
Exterior
Attached Garage YN
1
Common Walls
_1CW
Parking Spots
1
Parking Total
1
Security Features
SD, COD, CRD, FSDS, FS, GC
View
NO
Financial
HOA Fee
$819
HOA Fee Frequency
MO
Get Out There, A Simply Outgoing Approach to Life. James Outland Jr. is one of those rare people who simply has an outgoing approach to life. No matter the activity… from dune buggy riding to skydiving to motorcycling to riding the local Pismo Beach waves… James Outland Jr. approaches life with a “just get out there and do it” kind of attitude. A zest for Life. James’ zest for life is obviously apparent in his many exciting hobbies. In his spare time, he loves riding dune buggies or hi…
More About JamesMortgage Calculator
Map
Current real estate data for Condo in Los Angeles as of Apr 08, 2026
1,274
Condo Listed
80
Avg DOM
940
Avg $ / SqFt
$1,090,705
Avg List Price
Community
- Address500 Molino ST #214 Los Angeles CA
- CityLos Angeles
- CountyLos Angeles
- Zip Code90013
Similar Listings Nearby
Property Summary
- 500 Molino ST #214 Los Angeles CA is a Condo for sale in Los Angeles, CA, 90013. It is listed for $1,198,000 and features 2 beds, 2 baths, and has approximately 2,420 square feet of living space, and was originally constructed in 1923. The current price per square foot is $495. The average price per square foot for Condo listings in Los Angeles is $940. The average listing price for Condo in Los Angeles is $1,090,705. To schedule a showing of MLS#26642725 at 500 Molino ST #214 in Los Angeles, CA, contact your James Outland agent at 8057482262.
Courtesy of Compass. Disclaimer: All data relating to real estate for sale on this page comes from the Broker Reciprocity (BR) of the California Regional Multiple Listing Service. Detailed information about real estate listings held by brokerage firms other than James Outland include the name of the listing broker. Neither the listing company nor James Outland shall be responsible for any typographical errors, misinformation, misprints and shall be held totally harmless. The Broker providing this data believes it to be correct, but advises interested parties to confirm any item before relying on it in a purchase decision. Copyright 2026. California Regional Multiple Listing Service. All rights reserved. 500 Molino ST #214
Los Angeles, CA


























