$1,280,000
3854 Arlington AV
Los Angeles, CA, 90008
Elegant and Spacious Leimert Park Residence
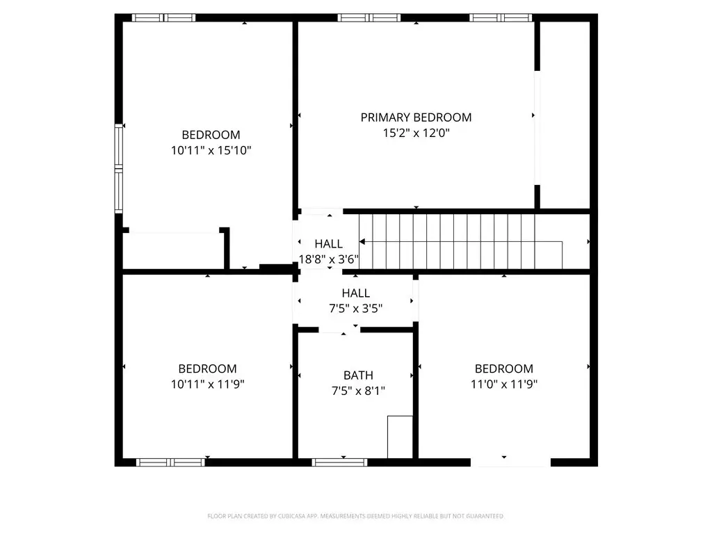
Welcome to a rare opportunity in the heart of Leimert Park, a beautifully refreshed home offering remarkable space, character, and potential. This impressive residence features 8 generously sized bedrooms, 4 bathrooms, and a dedicated office (which could serve as a 9th bedroom), encompassing over 3,332 sq ft of living space on a substantial 8,060 sq ft lot.
The thoughtfully remodeled kitchen, complete with stainless steel appliances, adds a modern touch while honoring the property’s original charm. A formal dining room, spacious living and family rooms, a large laundry room, and a private office create a flexible and functional floorplan, ideal for today’s lifestyle. This super-sized home serves as a peaceful retreat in the bustling city of Los Angeles, offering both comfort and versatility.
Recent updates include new carpet and freshly painted bedrooms, giving the home a bright and welcoming feel. The bathrooms retain their classic finishes, presenting an excellent opportunity for future customization and value-added improvements.
Set behind a fenced and gated lot, the property offers ample parking to accommodate multiple vehicles—a rare and valuable feature in this desirable neighborhood. Zoned LAR1, the home also provides potential for creative use or future expansion (buyer to verify).
Perfect for large families, multigenerational living, or savvy investors seeking exceptional space and flexibility, this home truly adapts to your needs.
Located near shopping, dining, parks, schools, the LA Coliseum, USC, and major commuter routes, this residence combines generous living space with an enviable Los Angeles location.
Don’t miss this outstanding opportunity to personalize and enhance a spacious Leimert Park residence to your unique taste.
Welcome to a rare opportunity in the heart of Leimert Park, a beautifully refreshed home offering remarkable space, character, and potential. This impressive residence features 8 generously sized bedrooms, 4 bathrooms, and a dedicated office (which could serve as a 9th bedroom), encompassing over 3,332 sq ft of living space on a substantial 8,060 sq ft lot.
The thoughtfully remodeled kitchen, complete with stainless steel appliances, adds a modern touch while honoring the property’s original charm. A formal dining room, spacious living and family rooms, a large laundry room, and a private office create a flexible and functional floorplan, ideal for today’s lifestyle. This super-sized home serves as a peaceful retreat in the bustling city of Los Angeles, offering both comfort and versatility.
Recent updates include new carpet and freshly painted bedrooms, giving the home a bright and welcoming feel. The bathrooms retain their classic finishes, presenting an excellent opportunity for future customization and value-added improvements.
Set behind a fenced and gated lot, the property offers ample parking to accommodate multiple vehicles—a rare and valuable feature in this desirable neighborhood. Zoned LAR1, the home also provides potential for creative use or future expansion (buyer to verify).
Perfect for large families, multigenerational living, or savvy investors seeking exceptional space and flexibility, this home truly adapts to your needs.
Located near shopping, dining, parks, schools, the LA Coliseum, USC, and major commuter routes, this residence combines generous living space with an enviable Los Angeles location.
Don’t miss this outstanding opportunity to personalize and enhance a spacious Leimert Park residence to your unique taste.
Property Details
Price:
$1,280,000
MLS #:
TR25093805
Status:
Active
Beds:
8
Baths:
4
Type:
Single Family
Subtype:
Single Family Residence
Neighborhood:
phhtparkhillsheights
Listed Date:
Jan 29, 2026
Finished Sq Ft:
3,332
Lot Size:
8,063 sqft / 0.19 acres (approx)
Year Built:
1922
Schools
School District:
Los Angeles Unified
Interior
Bathrooms
4 Full Bathrooms
Cooling
NO
Laundry Features
IR, IN, DINC, WINC
Exterior
Architectural Style
BNG
Community Features
SDW, URB
Construction Materials
STC, DWAL
Financial
Get Out There, A Simply Outgoing Approach to Life. James Outland Jr. is one of those rare people who simply has an outgoing approach to life. No matter the activity… from dune buggy riding to skydiving to motorcycling to riding the local Pismo Beach waves… James Outland Jr. approaches life with a “just get out there and do it” kind of attitude. A zest for Life. James’ zest for life is obviously apparent in his many exciting hobbies. In his spare time, he loves riding dune buggies or hi…
More About JamesMortgage Calculator
Map
Current real estate data for Single Family in Los Angeles as of Feb 13, 2026
6,281
Single Family Listed
69
Avg DOM
520
Avg $ / SqFt
$1,491,043
Avg List Price
Community
- Address3854 Arlington AV Los Angeles CA
- CityLos Angeles
- CountyLos Angeles
- Zip Code90008
Similar Listings Nearby
Property Summary
- 3854 Arlington AV Los Angeles CA is a Single Family for sale in Los Angeles, CA, 90008. It is listed for $1,280,000 and features 8 beds, 4 baths, and has approximately 3,332 square feet of living space, and was originally constructed in 1922. The current price per square foot is $384. The average price per square foot for Single Family listings in Los Angeles is $520. The average listing price for Single Family in Los Angeles is $1,491,043. To schedule a showing of MLS#tr25093805 at 3854 Arlington AV in Los Angeles, CA, contact your James Outland agent at 8057482262.
Courtesy of Alice Cernea. Disclaimer: All data relating to real estate for sale on this page comes from the Broker Reciprocity (BR) of the California Regional Multiple Listing Service. Detailed information about real estate listings held by brokerage firms other than James Outland include the name of the listing broker. Neither the listing company nor James Outland shall be responsible for any typographical errors, misinformation, misprints and shall be held totally harmless. The Broker providing this data believes it to be correct, but advises interested parties to confirm any item before relying on it in a purchase decision. Copyright 2026. California Regional Multiple Listing Service. All rights reserved. 3854 Arlington AV
Los Angeles, CA

























































