$149,000
3110 N Eva TE
Los Angeles, CA, 90031
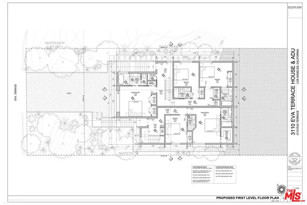
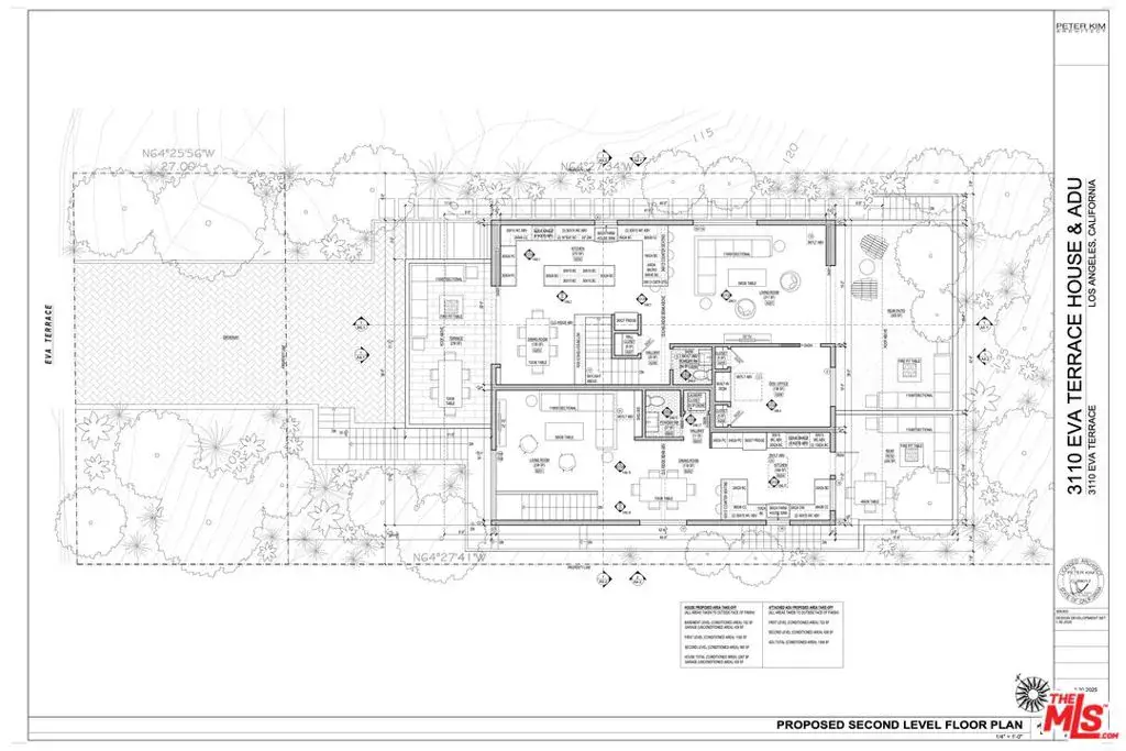
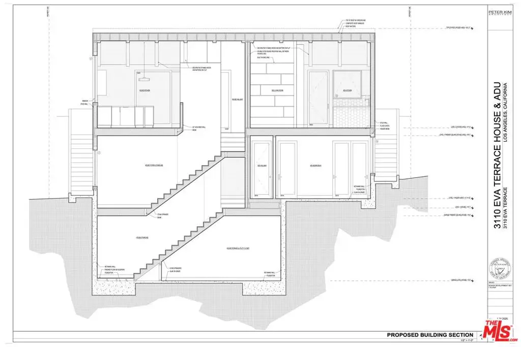
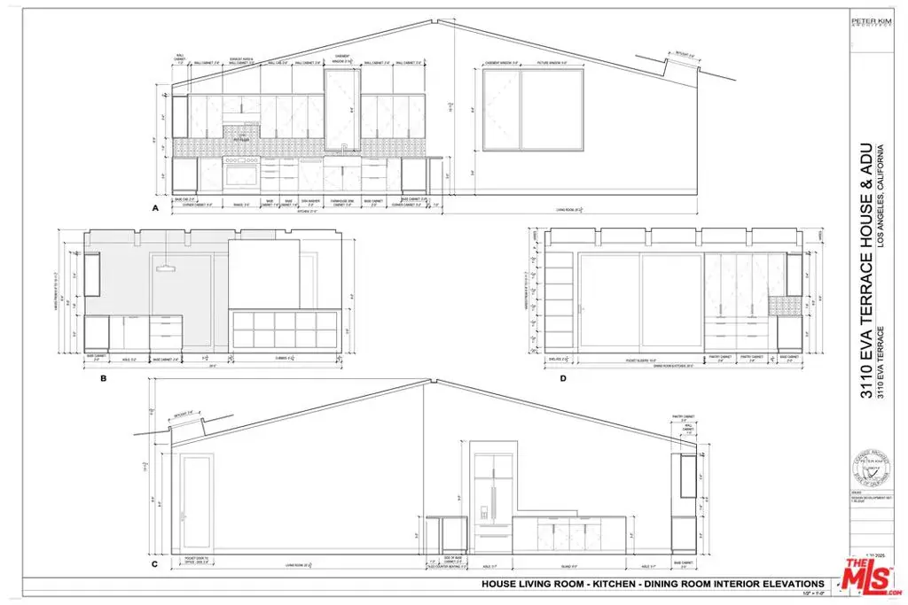
APN 5209-003-009– Discover an incredible opportunity to build in the heart of Lincoln Heights! This upslope vacant lot is appx 8,773 SF, zoned R1and offers gorgeous city & DTLA views along with a rare sense of privacy perched at a quiet cul-de-sac. The seller has thoughtfully designed plans for a stunning 3BR+den/office, 3.5BA home spanning appx 2,267 SF, complete with a 2-car garage. Additionally, the plans include an attached ADU featuring 2BR/2.5BA appx 1,358 SF of living space with a rear patio– perfect for rental income or multi-generational living. Plans are NOT in plan check and to be sold as-is. Centrally located in a prime location near shops, restaurants and just a short drive to DTLA. Don’t miss this fantastic investment or development opportunity in one of LA’s most vibrant neighborhoods! Neighboring lot with plans also for sale (MLS# 25496739).
Property Details
Price:
$149,000
MLS #:
25621413
Status:
Active
Beds:
0
Baths:
0
Type:
Land
Neighborhood:
677lincolnhts
Listed Date:
Dec 1, 2025
Lot Size:
8,773 sqft / 0.20 acres (approx)
Schools
Interior
Exterior
View
CI, HI
Financial
Get Out There, A Simply Outgoing Approach to Life. James Outland Jr. is one of those rare people who simply has an outgoing approach to life. No matter the activity… from dune buggy riding to skydiving to motorcycling to riding the local Pismo Beach waves… James Outland Jr. approaches life with a “just get out there and do it” kind of attitude. A zest for Life. James’ zest for life is obviously apparent in his many exciting hobbies. In his spare time, he loves riding dune buggies or hi…
More About JamesMortgage Calculator
Map
Current real estate data for Land in Los Angeles as of Apr 09, 2026
466
Land Listed
154
Avg DOM
$1,578,076
Avg List Price
Community
- Address3110 N Eva TE Los Angeles CA
- CityLos Angeles
- CountyLos Angeles
- Zip Code90031
Similar Listings Nearby
Property Summary
- 3110 N Eva TE Los Angeles CA is a Land for sale in Los Angeles, CA, 90031. It is listed for $149,000 and features 0 acres. To schedule a showing of MLS#25621413 at 3110 N Eva TE in Los Angeles, CA, contact your James Outland agent at 8057482262.
Courtesy of Keller Williams Beverly Hills. Disclaimer: All data relating to real estate for sale on this page comes from the Broker Reciprocity (BR) of the California Regional Multiple Listing Service. Detailed information about real estate listings held by brokerage firms other than James Outland include the name of the listing broker. Neither the listing company nor James Outland shall be responsible for any typographical errors, misinformation, misprints and shall be held totally harmless. The Broker providing this data believes it to be correct, but advises interested parties to confirm any item before relying on it in a purchase decision. Copyright 2026. California Regional Multiple Listing Service. All rights reserved. 3110 N Eva TE
Los Angeles, CA















































