$4,950
257 S Avenue 54 #1/4
Los Angeles, CA, 90042
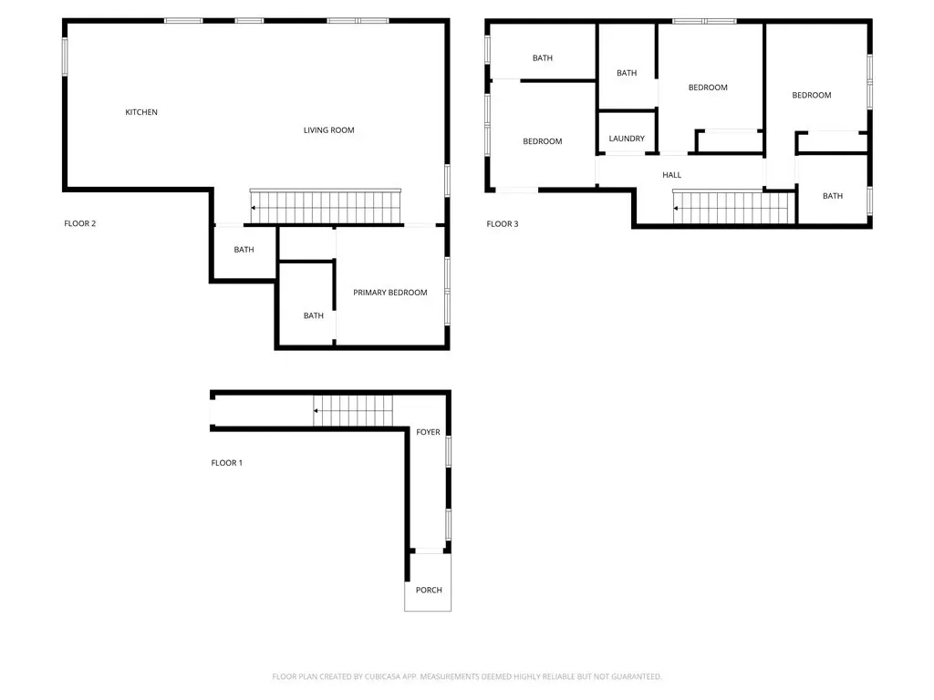
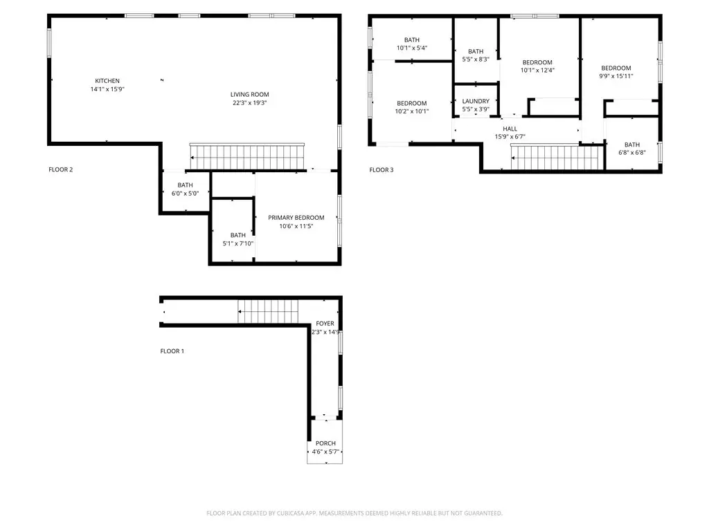
Brand New Luxury Townhome in the heart of Highland Park! Welcome to 257 1/4 Avenue 54 a stunning tri-level residence offering 4 bedrooms and 4.5 bathrooms with spacious, light-filled interiors and high-end finishes throughout. Upon entry you’ll head straight into the main living level where you’ll find an expansive great room designed for modern living. The open-concept layout seamlessly connects the living and dining areas to a beautifully appointed wraparound kitchen featuring custom white oak cabinetry, quartz countertops, stainless steel appliances, and a large center island perfect for entertaining. This level also includes a convenient powder room and a private 1-bedroom, 1-bathroom en-suite ideal for guests, a home office, or flexible living space. The upper level offers three generously sized bedrooms, each with its own en-suite bathroom for ultimate privacy and comfort, along with a dedicated laundry area with side-by-side washer and dryer. Throughout the home, enjoy wide-plank white oak flooring, designer tile finishes, custom iron railings, recessed lighting, and abundant natural light. Additional features include central heating and A/C, solar panels for huge savings on energy bills, EV charger readiness, one dedicated garage parking space, and secure entry. Ideally situated in one of Northeast LA’s most sought-after neighborhoods, you’re just moments from York Boulevard and Figueroa Street’s vibrant dining and retail scene, including Highland Park Bowl, Civil Coffee, Café de Leche, and Hippo. With close proximity to the Metro Gold Line, commuting to Downtown LA or Pasadena is effortless. A rare opportunity to own a thoughtfully designed, move-in-ready home in a prime Highland Park location.
Property Details
Price:
$4,950
MLS #:
OC26066556
Status:
Active
Beds:
4
Baths:
5
Type:
Single Family
Subtype:
Townhouse
Neighborhood:
632highlandpark
Listed Date:
Mar 27, 2026
Finished Sq Ft:
2,005
Lot Size:
8,692 sqft / 0.20 acres (approx)
Year Built:
2025
Schools
School District:
Los Angeles Unified
Interior
Appliances
DW, GD, MW, RF, ES, EO, HOD, VEF
Bathrooms
4 Full Bathrooms, 1 Half Bathroom
Cooling
CA
Flooring
LAM, WOOD
Heating
CF
Interior Features
QTZC
Laundry Features
ELC, GE, IC, DINC, WINC
Levels
C, S
Exterior
Attached Garage YN
1
Common Walls
_1CW
Community Features
SDW, SL
Construction Materials
DWAL
Fencing
WD, WI, PRV, NEW
Garage Spaces
2
New Construction YN
1
Parking Spots
2
Parking Total
2
Roof
CMP
Security Features
GC
Spa Features
NO
View
MT, NE
Financial
Get Out There, A Simply Outgoing Approach to Life. James Outland Jr. is one of those rare people who simply has an outgoing approach to life. No matter the activity… from dune buggy riding to skydiving to motorcycling to riding the local Pismo Beach waves… James Outland Jr. approaches life with a “just get out there and do it” kind of attitude. A zest for Life. James’ zest for life is obviously apparent in his many exciting hobbies. In his spare time, he loves riding dune buggies or hi…
More About JamesMortgage Calculator
Map
Current real estate data for Single Family in Los Angeles as of Apr 06, 2026
7,323
Single Family Listed
88
Avg DOM
515
Avg $ / SqFt
$1,552,385
Avg List Price
Community
- Address257 S Avenue 54 #1/4 Los Angeles CA
- CityLos Angeles
- CountyLos Angeles
- Zip Code90042
Similar Listings Nearby
Property Summary
- 257 S Avenue 54 #1/4 Los Angeles CA is a Single Family for sale in Los Angeles, CA, 90042. It is listed for $4,950 and features 4 beds, 5 baths, and has approximately 2,005 square feet of living space, and was originally constructed in 2025. The current price per square foot is $2. The average price per square foot for Single Family listings in Los Angeles is $515. The average listing price for Single Family in Los Angeles is $1,552,385. To schedule a showing of MLS#oc26066556 at 257 S Avenue 54 #1/4 in Los Angeles, CA, contact your James Outland agent at 8057482262.
Courtesy of Four Brothers Real Estate, Inc.. Disclaimer: All data relating to real estate for sale on this page comes from the Broker Reciprocity (BR) of the California Regional Multiple Listing Service. Detailed information about real estate listings held by brokerage firms other than James Outland include the name of the listing broker. Neither the listing company nor James Outland shall be responsible for any typographical errors, misinformation, misprints and shall be held totally harmless. The Broker providing this data believes it to be correct, but advises interested parties to confirm any item before relying on it in a purchase decision. Copyright 2026. California Regional Multiple Listing Service. All rights reserved. 257 S Avenue 54 #1/4
Los Angeles, CA





















