$6,495,000
1015 Venice BL
Los Angeles, CA, 90015
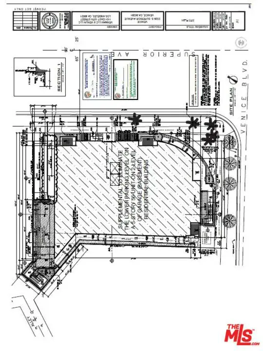
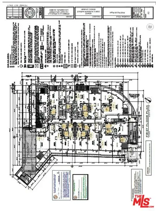
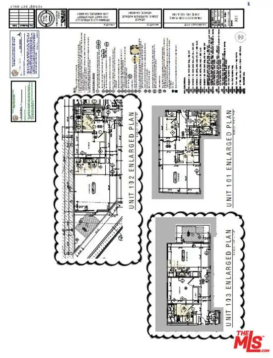
PERMITS HAVE BEEN ISSUED AND PAID FOR, allowing a developer to begin construction on Day One. The project is engineered for no redesign cycles, no tenant relocations a true shovel-ready development. Approved plans call for a contemporary five-story, 56-unit multi family community elevated above one level of subterranean parking. Unit Mix Includes: *15 Singles 389-422 SF*1 ELI Single 417 SF*33 One-Bedrooms 541-664 SF*5 LI One-Bedrooms 526-549 SF*1 One-Bedroom + Den 549 SF*1 LI One-Bedroom + Den 549 SF The offering is priced at an attractive $529 per land SF and $123,125 per buildable unit, which includes approximately $450,000 IN PAID ARCHITECTURAL, STRUCTURAL AND MEP PLANS AND CITY PERMIT COSTS. With 50 market-rate units and six affordable set-asides, this is a rare chance to step directly into a high-value Westside development without entitlement uncertainty.
Property Details
Price:
$6,495,000
MLS #:
25623853
Status:
Active
Beds:
0
Baths:
0
Type:
Land
Neighborhood:
c11venice
Listed Date:
Dec 9, 2025
Lot Size:
13,061 sqft / 0.30 acres (approx)
Schools
Interior
Exterior
Financial
Get Out There, A Simply Outgoing Approach to Life. James Outland Jr. is one of those rare people who simply has an outgoing approach to life. No matter the activity… from dune buggy riding to skydiving to motorcycling to riding the local Pismo Beach waves… James Outland Jr. approaches life with a “just get out there and do it” kind of attitude. A zest for Life. James’ zest for life is obviously apparent in his many exciting hobbies. In his spare time, he loves riding dune buggies or hi…
More About JamesMortgage Calculator
Map
Current real estate data for Land in Los Angeles as of Feb 12, 2026
392
Land Listed
118
Avg DOM
$1,469,674
Avg List Price
Community
- Address1015 Venice BL Los Angeles CA
- CityLos Angeles
- CountyLos Angeles
- Zip Code90015
Similar Listings Nearby
Property Summary
- 1015 Venice BL Los Angeles CA is a Land for sale in Los Angeles, CA, 90015. It is listed for $6,495,000 and features 0 acres. To schedule a showing of MLS#25623853 at 1015 Venice BL in Los Angeles, CA, contact your James Outland agent at 8057482262.
Courtesy of Miller & Desatnik Realty Co.. Disclaimer: All data relating to real estate for sale on this page comes from the Broker Reciprocity (BR) of the California Regional Multiple Listing Service. Detailed information about real estate listings held by brokerage firms other than James Outland include the name of the listing broker. Neither the listing company nor James Outland shall be responsible for any typographical errors, misinformation, misprints and shall be held totally harmless. The Broker providing this data believes it to be correct, but advises interested parties to confirm any item before relying on it in a purchase decision. Copyright 2026. California Regional Multiple Listing Service. All rights reserved. 1015 Venice BL
Los Angeles, CA














