$5,498,000
706 University AV
Los Altos, CA, 94022
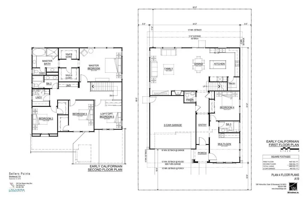
Located on one of the most sought-after streets in Los Altos, this property is walkable to downtown, offering the perfect blend of charm, convenience, and long-term potential with Los Altos Schools. This residence offers approx. 1,944 square feet of living space on a generous 14,178 square foot lot. Home went through a permitted remodel with 3 bedrooms, all new bathrooms, kitchen, floors, paint, HVAC, tankless water heater… Other lot options are shown in the photos. Finished remodel, with flexibility for buyers who may want to: Move in and make it their forever home, live in the property during the entitlement process for a future custom build, explore SB9 potential, including duplex or two-home configurations (subject to city approvals). Photos include a current photo of the front exterior, example of one large home on the large property (photo and layout), SB9 opportunities with layouts and renderings. Here is the SB9 information guide link from the City of Los Altos: https://www.losaltosca.gov/DocumentCenter/View/797/SB9-Information-Handout-PDF?bidId= Reach out for more information.
Property Details
Price:
$5,498,000
MLS #:
ML82017019
Status:
Pending
Beds:
3
Baths:
3
Type:
Single Family
Subtype:
Single Family Residence
Neighborhood:
699notdefined
Listed Date:
Jan 27, 2026
Finished Sq Ft:
1,944
Lot Size:
14,178 sqft / 0.33 acres (approx)
Year Built:
1951
Schools
School District:
Other
Interior
Appliances
DW, FZ, GD, MW, RF, ES, EO, VEF
Bathrooms
3 Full Bathrooms
Cooling
CA
Heating
CF
Exterior
Parking Spots
1
Roof
CMP
Financial
Get Out There, A Simply Outgoing Approach to Life. James Outland Jr. is one of those rare people who simply has an outgoing approach to life. No matter the activity… from dune buggy riding to skydiving to motorcycling to riding the local Pismo Beach waves… James Outland Jr. approaches life with a “just get out there and do it” kind of attitude. A zest for Life. James’ zest for life is obviously apparent in his many exciting hobbies. In his spare time, he loves riding dune buggies or hi…
More About JamesMortgage Calculator
Map
Current real estate data for Single Family in Los Altos as of Feb 13, 2026
36
Single Family Listed
24
Avg DOM
1,839
Avg $ / SqFt
$4,914,020
Avg List Price
Community
- Address706 University AV Los Altos CA
- CityLos Altos
- CountySanta Clara
- Zip Code94022
Similar Listings Nearby
Property Summary
- 706 University AV Los Altos CA is a Single Family for sale in Los Altos, CA, 94022. It is listed for $5,498,000 and features 3 beds, 3 baths, and has approximately 1,944 square feet of living space, and was originally constructed in 1951. The current price per square foot is $2,828. The average price per square foot for Single Family listings in Los Altos is $1,839. The average listing price for Single Family in Los Altos is $4,914,020. To schedule a showing of MLS#ml82017019 at 706 University AV in Los Altos, CA, contact your James Outland agent at 8057482262.
Courtesy of Intero Real Estate Services. Disclaimer: All data relating to real estate for sale on this page comes from the Broker Reciprocity (BR) of the California Regional Multiple Listing Service. Detailed information about real estate listings held by brokerage firms other than James Outland include the name of the listing broker. Neither the listing company nor James Outland shall be responsible for any typographical errors, misinformation, misprints and shall be held totally harmless. The Broker providing this data believes it to be correct, but advises interested parties to confirm any item before relying on it in a purchase decision. Copyright 2026. California Regional Multiple Listing Service. All rights reserved. 706 University AV
Los Altos, CA





























