$938,800
800 E Ocean BL #1505
Long Beach, CA, 90802
Penthouse-Level Oceanfront Living at the Iconic Villa Riviera
Ownership includes the distinctive designation of a landmark on the National Registration of Historic Places.
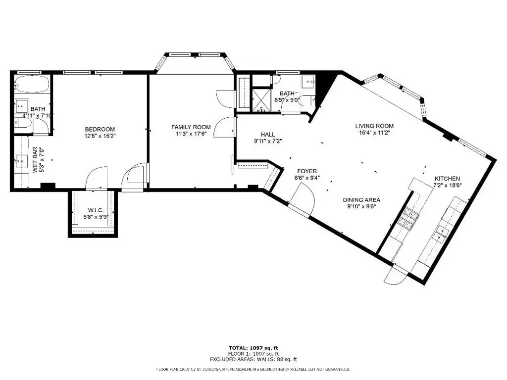
Perched high above the coastline, this exquisite 2-bedroom, 2-bath residence offers sweeping, unobstructed ocean views from every room and nearly 12-foot ceilings that elevate both light and scale. Originally two units thoughtfully combined, the floor plan provides exceptional flexibility—currently configured as a one-bedroom plus den, with the ability to re-separate the space into two private living areas or improve the two bedroom scenario. Sellers would consider selling separately – call for pricing.
The primary suite features Brazilian mahogany flooring, refined lighting, and a serene coastal ambiance. A secondary suite—previously used as an efficiency—includes a built-in breakfast bar, kitchenette, walk-in closet, Bathroom with charming Deco tile work, pedestal sink & Sloane commode, making it ideal for flexible lifestyle, extended living, or potential income (buyer to verify).
Set within the legendary Villa Riviera, a celebrated French Chateau-esq Neo-Gothic landmark known for its copper roof, gargoyles, and award-winning preservation, residents enjoy a lifestyle few buildings can replicate. HOA dues include all utilities—gas, electricity, heat, hot water, cable TV, and internet—providing meaningful monthly value.
Owners benefit from significant Mills Act property tax savings, transferred to the buyer at closing.
Community amenities include a grand ballroom with catering kitchen, ocean-view sundeck, BBQ areas, community guest suite, hidden garden with fountain and serenity. Parking on site is separately managed by the HOA.
A rare opportunity to own a true destination residence where historic elegance meets elevated coastal living.
Ownership includes the distinctive designation of a landmark on the National Registration of Historic Places.
Perched high above the coastline, this exquisite 2-bedroom, 2-bath residence offers sweeping, unobstructed ocean views from every room and nearly 12-foot ceilings that elevate both light and scale. Originally two units thoughtfully combined, the floor plan provides exceptional flexibility—currently configured as a one-bedroom plus den, with the ability to re-separate the space into two private living areas or improve the two bedroom scenario. Sellers would consider selling separately – call for pricing.
The primary suite features Brazilian mahogany flooring, refined lighting, and a serene coastal ambiance. A secondary suite—previously used as an efficiency—includes a built-in breakfast bar, kitchenette, walk-in closet, Bathroom with charming Deco tile work, pedestal sink & Sloane commode, making it ideal for flexible lifestyle, extended living, or potential income (buyer to verify).
Set within the legendary Villa Riviera, a celebrated French Chateau-esq Neo-Gothic landmark known for its copper roof, gargoyles, and award-winning preservation, residents enjoy a lifestyle few buildings can replicate. HOA dues include all utilities—gas, electricity, heat, hot water, cable TV, and internet—providing meaningful monthly value.
Owners benefit from significant Mills Act property tax savings, transferred to the buyer at closing.
Community amenities include a grand ballroom with catering kitchen, ocean-view sundeck, BBQ areas, community guest suite, hidden garden with fountain and serenity. Parking on site is separately managed by the HOA.
A rare opportunity to own a true destination residence where historic elegance meets elevated coastal living.
Property Details
Price:
$938,800
MLS #:
PW25278779
Status:
Active
Beds:
2
Baths:
2
Type:
Condo
Subtype:
Condominium
Subdivision:
Villa Riviera VLR
Neighborhood:
4downtownareaalamitosbeach
Listed Date:
Dec 20, 2025
Finished Sq Ft:
1,091
Lot Size:
51,693 sqft / 1.19 acres (approx)
Year Built:
1928
Schools
School District:
Long Beach Unified
Interior
Bathrooms
2 Full Bathrooms
Cooling
NO
Heating
CF
Laundry Features
NO
Levels
A
Main Level Bathrooms
2
Main Level Bedrooms
2
Exterior
Common Walls
_2CW
Community Features
SDW, STM, SL, URB
View
CA, OC, PA, WA
Window Features
FMW
Financial
HOA Fee
$1,337
HOA Fee Frequency
MO
Get Out There, A Simply Outgoing Approach to Life. James Outland Jr. is one of those rare people who simply has an outgoing approach to life. No matter the activity… from dune buggy riding to skydiving to motorcycling to riding the local Pismo Beach waves… James Outland Jr. approaches life with a “just get out there and do it” kind of attitude. A zest for Life. James’ zest for life is obviously apparent in his many exciting hobbies. In his spare time, he loves riding dune buggies or hi…
More About JamesMortgage Calculator
Map
Current real estate data for Condo in Long Beach as of Apr 09, 2026
315
Condo Listed
57
Avg DOM
613
Avg $ / SqFt
$597,110
Avg List Price
Community
- Address800 E Ocean BL #1505 Long Beach CA
- SubdivisionVilla Riviera (VLR)
- CityLong Beach
- CountyLos Angeles
- Zip Code90802
Similar Listings Nearby
Property Summary
- Located in the Villa Riviera (VLR) subdivision, 800 E Ocean BL #1505 Long Beach CA is a Condo for sale in Long Beach, CA, 90802. It is listed for $938,800 and features 2 beds, 2 baths, and has approximately 1,091 square feet of living space, and was originally constructed in 1928. The current price per square foot is $860. The average price per square foot for Condo listings in Long Beach is $613. The average listing price for Condo in Long Beach is $597,110. To schedule a showing of MLS#pw25278779 at 800 E Ocean BL #1505 in Long Beach, CA, contact your James Outland agent at 8057482262.
Courtesy of Reel Properties. Disclaimer: All data relating to real estate for sale on this page comes from the Broker Reciprocity (BR) of the California Regional Multiple Listing Service. Detailed information about real estate listings held by brokerage firms other than James Outland include the name of the listing broker. Neither the listing company nor James Outland shall be responsible for any typographical errors, misinformation, misprints and shall be held totally harmless. The Broker providing this data believes it to be correct, but advises interested parties to confirm any item before relying on it in a purchase decision. Copyright 2026. California Regional Multiple Listing Service. All rights reserved. 800 E Ocean BL #1505
Long Beach, CA
























































