$1,050,000
3635 Woodruff
Long Beach, CA, 90808
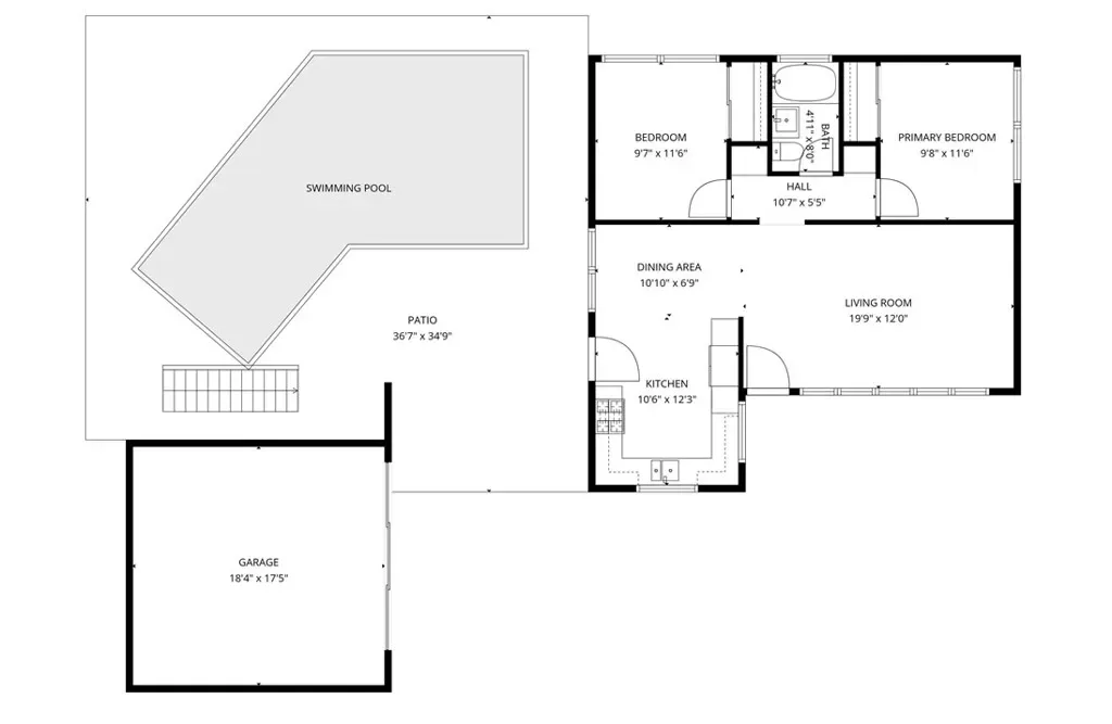
**BACK TO MARKET*** MID-CENTURY DESIGN + ADU | POOL & OUTDOOR LIVING | DESIRABLE LONG BEACH NEIGHBORHOOD This home offers approximately 1,377 square feet of interior living space on a 5,583-square-foot lot, thoughtfully oriented to embrace Southern California’s indoor–outdoor lifestyle. Front house is a 2 bed, 1 bath 857 sf, the ADU is a 1 bed 1 bath with 525 sf. Two patio areas, a swimming pool, and a fire pit create inviting spaces for everyday living and relaxed gatherings, while the home’s layout allows interior spaces to open naturally toward the outdoor setting. A rear ADU situated above the garage adds valuable flexibility for extended living arrangements, a private guest space, or supplemental rental income. Centrally positioned within Long Beach, the property enjoys close proximity to parks, dining, and local attractions, along with convenient access to the 405, 710, 605, and 22 freeways. California State University Long Beach and several major healthcare centers are just minutes away.
Property Details
Price:
$1,050,000
MLS #:
DW25281477
Status:
Active
Beds:
3
Baths:
2
Type:
Single Family
Subtype:
Single Family Residence
Neighborhood:
33lakewoodplazarancho
Listed Date:
Apr 11, 2026
Finished Sq Ft:
1,377
Lot Size:
5,583 sqft / 0.13 acres (approx)
Year Built:
1949
Schools
School District:
Long Beach Unified
Interior
Bathrooms
2 Full Bathrooms
Cooling
WW
Heating
FF
Laundry Features
IN
Levels
U
Main Level Bathrooms
1
Main Level Bedrooms
2
Exterior
Common Walls
NCW
Community Features
SL, CRB
Garage Spaces
2
Parking Spots
2
Parking Total
2
View
NO
Financial
Get Out There, A Simply Outgoing Approach to Life. James Outland Jr. is one of those rare people who simply has an outgoing approach to life. No matter the activity… from dune buggy riding to skydiving to motorcycling to riding the local Pismo Beach waves… James Outland Jr. approaches life with a “just get out there and do it” kind of attitude. A zest for Life. James’ zest for life is obviously apparent in his many exciting hobbies. In his spare time, he loves riding dune buggies or hi…
More About JamesMortgage Calculator
Map
Current real estate data for Single Family in Long Beach as of Apr 12, 2026
848
Single Family Listed
60
Avg DOM
433
Avg $ / SqFt
$1,041,462
Avg List Price
Community
- Address3635 Woodruff Long Beach CA
- CityLong Beach
- CountyLos Angeles
- Zip Code90808
Similar Listings Nearby
Property Summary
- 3635 Woodruff Long Beach CA is a Single Family for sale in Long Beach, CA, 90808. It is listed for $1,050,000 and features 3 beds, 2 baths, and has approximately 1,377 square feet of living space, and was originally constructed in 1949. The current price per square foot is $763. The average price per square foot for Single Family listings in Long Beach is $433. The average listing price for Single Family in Long Beach is $1,041,462. To schedule a showing of MLS#dw25281477 at 3635 Woodruff in Long Beach, CA, contact your James Outland agent at 8057482262.
Courtesy of Equity Union. Disclaimer: All data relating to real estate for sale on this page comes from the Broker Reciprocity (BR) of the California Regional Multiple Listing Service. Detailed information about real estate listings held by brokerage firms other than James Outland include the name of the listing broker. Neither the listing company nor James Outland shall be responsible for any typographical errors, misinformation, misprints and shall be held totally harmless. The Broker providing this data believes it to be correct, but advises interested parties to confirm any item before relying on it in a purchase decision. Copyright 2026. California Regional Multiple Listing Service. All rights reserved. 3635 Woodruff
Long Beach, CA





























































