$228,000
13490 Highway 8 Business 8
Lakeside, CA, 92040
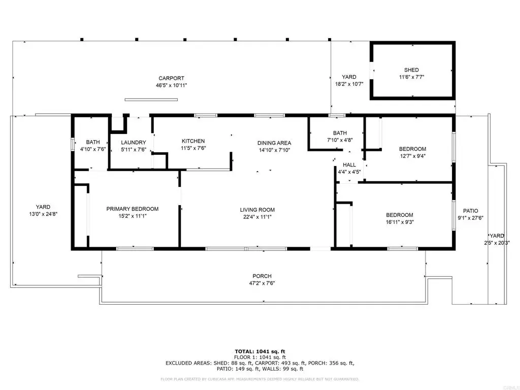
FREE 1ST MONTH OF SPACE RENT WITH ACCEPTABLE OFFER. Turnkey, remodeled home with mountain views! Welcome to 13490 Highway 8 Business #8 in Lakeside. This bright, open 3-bedroom, 2-bath home features vaulted ceilings, recessed lighting, and brand-new vinyl flooring throughout. The updated kitchen offers modern cabinetry, new appliances, and ample counter space, while both bathrooms have been stylishly remodeled for a fresh, contemporary feel. The split floor plan provides privacy, with the primary suite featuring its own en-suite bath. Additional highlights include a large laundry room, central A/C and heat, dual-pane windows, and a newer roof. Step outside to enjoy the oversized porch with scenic mountain views, a freshly mulched yard, and a storage shed. Located in a welcoming, family and pet-friendly community with a pool and clubhouse, this home offers the perfect blend of comfort, privacy, and convenience—just minutes from shopping, dining, schools, and freeway access.
Property Details
Price:
$228,000
MLS #:
PTP2600051
Status:
Active
Beds:
3
Baths:
2
Type:
Single Family
Neighborhood:
92040lakeside
Listed Date:
Jan 21, 2026
Finished Sq Ft:
1,120
Lot Size:
176,854 sqft / 4.06 acres (approx)
Year Built:
1992
Schools
School District:
Grossmont Union
Interior
Bathrooms
2 Full Bathrooms
Cooling
CA
Laundry Features
IN
Exterior
Community Features
SDW
Parking Spots
2
Financial
Lease Land Amount
$1,575
Lease Land Frequency
MO
Get Out There, A Simply Outgoing Approach to Life. James Outland Jr. is one of those rare people who simply has an outgoing approach to life. No matter the activity… from dune buggy riding to skydiving to motorcycling to riding the local Pismo Beach waves… James Outland Jr. approaches life with a “just get out there and do it” kind of attitude. A zest for Life. James’ zest for life is obviously apparent in his many exciting hobbies. In his spare time, he loves riding dune buggies or hi…
More About JamesMortgage Calculator
Map
Current real estate data for Single Family in Lakeside as of Feb 14, 2026
65
Single Family Listed
74
Avg DOM
394
Avg $ / SqFt
$658,285
Avg List Price
Community
- Address13490 Highway 8 Business 8 Lakeside CA
- CityLakeside
- CountySan Diego
- Zip Code92040
Similar Listings Nearby
Property Summary
- 13490 Highway 8 Business 8 Lakeside CA is a Single Family for sale in Lakeside, CA, 92040. It is listed for $228,000 and features 3 beds, 2 baths, and has approximately 1,120 square feet of living space, and was originally constructed in 1992. The current price per square foot is $204. The average price per square foot for Single Family listings in Lakeside is $394. The average listing price for Single Family in Lakeside is $658,285. To schedule a showing of MLS#ptp2600051 at 13490 Highway 8 Business 8 in Lakeside, CA, contact your James Outland agent at 8057482262.
Courtesy of eXp Realty of California, Inc.. Disclaimer: All data relating to real estate for sale on this page comes from the Broker Reciprocity (BR) of the California Regional Multiple Listing Service. Detailed information about real estate listings held by brokerage firms other than James Outland include the name of the listing broker. Neither the listing company nor James Outland shall be responsible for any typographical errors, misinformation, misprints and shall be held totally harmless. The Broker providing this data believes it to be correct, but advises interested parties to confirm any item before relying on it in a purchase decision. Copyright 2026. California Regional Multiple Listing Service. All rights reserved. 13490 Highway 8 Business 8
Lakeside, CA
































