$1,899,000
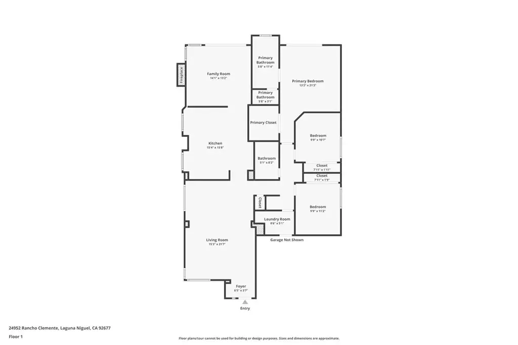
24952 Rancho Clemente
Laguna Niguel, CA, 92677
Welcome to this RARELY AVAILABLE, SINGLE-STORY SANCTUARY exquisitely remodeled and nestled in the highly sought-after Rancho Niguel neighborhood. Ideally situated in a QUIET AND PRIVATE PREMIER CUL-DE-SAC LOCATION, and within the highly rated Capistrano Unified School District. This COMPLETELY TURN-KEY, MOVE IN READY boasts uncompromising quality and flawless execution in every corner. A tastefully reimagined home, it offers 3 spacious bedrooms and 2 bathrooms, blending modern design and luxury with everyday comfort. The exterior makes a striking first impression with its clean, modern-line architectural style, featuring new paint, energy-efficient double-pane windows throughout, and a 10-foot sliding glass door for fresh air. Inside, the home has been transformed into an open-concept living space with SOARING HIGH VAULTED CEILINGS, where the living room, dining area, and kitchen flow seamlessly together. Warm modern finishes are throughout, including new flooring, interior doors, baseboards, paint, and updated light fixtures, along with the comfort of central air conditioning. Plumbing is Copper and AquaPex. The stunning kitchen is a true centerpiece, offering a glittering designer backsplash, new cabinetry, elegant quartz countertops, and a magnificent 8’x 5′ center island with additional seating, complemented by top-of-the-line stainless steel appliances. The primary bedroom is privately positioned at the rear of the home, providing a peaceful retreat with serene backyard views AND A SPA-INSPIRED PRIMARY BATH FEATURING A LUXURIOUS RAINFOREST SHOWER. Step outside into a private backyard, with new glass fencing ideal for entertaining, relaxing, or enjoying indoor-outdoor living. There is a contemporary garage door, new side gates, and an inside, spacious, finished garage. Beyond the interiors, the home sits on a lovely lot of about 5,500 square feet, giving you ample outdoor space to enjoy California’s mild coastal climate and peaceful neighborhood ambiance. The exclusive Rancho Niguel community offers an extravagant line-up of amenities for residents to enjoy, including two pools, an adult spa, a tot lot, volleyball, basketball, and tennis courts, a barbecue area, and a private resort-style clubhouse. Located in a community known for its scenic beauty, excellent schools, and proximity to parks, trails, and the beach, this IMPECCABLE Laguna Niguel home feels like a serene retreat. It’s Perfect Orange County living at its best! Come and see for yourself!!
Property Details
Price:
$1,899,000
MLS #:
RS26025328
Status:
Active
Beds:
3
Baths:
2
Type:
Single Family
Subtype:
Single Family Residence
Neighborhood:
lnlaklakearea
Listed Date:
Feb 25, 2026
Finished Sq Ft:
1,787
Lot Size:
5,500 sqft / 0.13 acres (approx)
Year Built:
1986
Schools
School District:
Capistrano Unified
Elementary School:
Marian Bergeson
Middle School:
Aliso Viejo
High School:
Aliso Niguel
Interior
Appliances
DW, GD, GR, EO, FSR, _6BS, GWH, WHC
Bathrooms
2 Full Bathrooms
Cooling
CA
Flooring
LAM, WOOD
Heating
FA, CF
Interior Features
AF, CF, CRWN, RECL, OFP, PTRY, CC, HCEL, QTZC
Laundry Features
GE, IR, IN, WH
Levels
A
Main Level Bathrooms
2
Main Level Bedrooms
3
Exterior
Attached Garage YN
1
Common Walls
NCW
Community Features
SDW, STM, SL, URB, CRB
Fencing
BW, GL
Garage Spaces
2
Parking Spots
2
Parking Total
2
Roof
SPT, TLE
Spa Features
AS, IG, COM
View
HI, NE
Window Features
DPW
Financial
HOA Fee
$79
HOA Fee 2
$85
HOA Fee 2 Frequency
MO
HOA Fee Frequency
MO
Get Out There, A Simply Outgoing Approach to Life. James Outland Jr. is one of those rare people who simply has an outgoing approach to life. No matter the activity… from dune buggy riding to skydiving to motorcycling to riding the local Pismo Beach waves… James Outland Jr. approaches life with a “just get out there and do it” kind of attitude. A zest for Life. James’ zest for life is obviously apparent in his many exciting hobbies. In his spare time, he loves riding dune buggies or hi…
More About JamesMortgage Calculator
Map
Current real estate data for Single Family in Laguna Niguel as of Apr 06, 2026
150
Single Family Listed
63
Avg DOM
476
Avg $ / SqFt
$1,544,232
Avg List Price
Community
- Address24952 Rancho Clemente Laguna Niguel CA
- CityLaguna Niguel
- CountyOrange
- Zip Code92677
Similar Listings Nearby
Property Summary
- 24952 Rancho Clemente Laguna Niguel CA is a Single Family for sale in Laguna Niguel, CA, 92677. It is listed for $1,899,000 and features 3 beds, 2 baths, and has approximately 1,787 square feet of living space, and was originally constructed in 1986. The current price per square foot is $1,063. The average price per square foot for Single Family listings in Laguna Niguel is $476. The average listing price for Single Family in Laguna Niguel is $1,544,232. To schedule a showing of MLS#rs26025328 at 24952 Rancho Clemente in Laguna Niguel, CA, contact your James Outland agent at 8057482262.
Courtesy of C-21 Astro. Disclaimer: All data relating to real estate for sale on this page comes from the Broker Reciprocity (BR) of the California Regional Multiple Listing Service. Detailed information about real estate listings held by brokerage firms other than James Outland include the name of the listing broker. Neither the listing company nor James Outland shall be responsible for any typographical errors, misinformation, misprints and shall be held totally harmless. The Broker providing this data believes it to be correct, but advises interested parties to confirm any item before relying on it in a purchase decision. Copyright 2026. California Regional Multiple Listing Service. All rights reserved. 24952 Rancho Clemente
Laguna Niguel, CA







































































