$6,000,000
1955 San Remo
Laguna Beach, CA, 92651
New construction, single-story residence with full ocean views, located in the renowned Temple Hills area of Laguna Beach, just minutes from Top of the World hiking trails, tennis courts, and a short drive to downtown Laguna Beach.
This exceptional home offers the best of both worlds—panoramic ocean views paired with serene green mountain surroundings. A rare opportunity in Laguna Beach, the property features a spacious driveway with parking for up to five vehicles and two separate driveway exits, an uncommon and highly desirable feature.
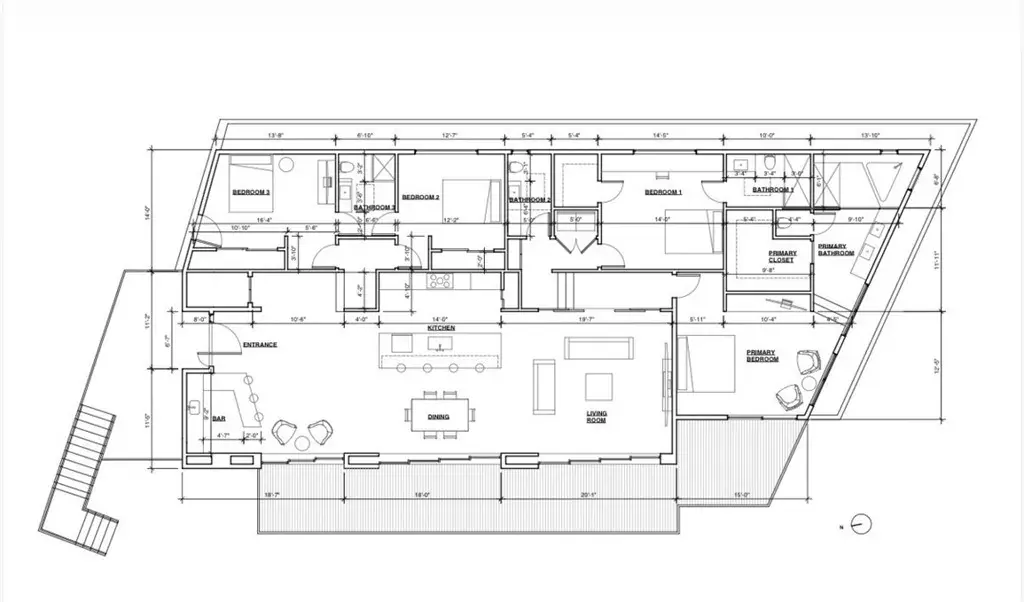
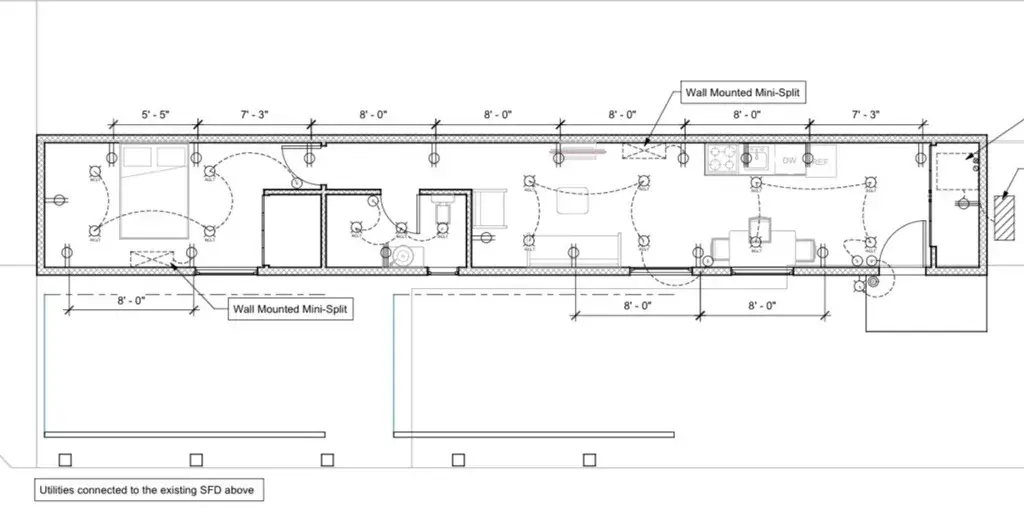
The home has been completely rebuilt, with everything brand new, and only two small original walls retained. The total new square footage is approximately 3,235 square feet, which includes a ~550 square foot ADU with a separate entrance, ideal for guests, extended family, or additional income.
rendering show roof deck but there is no roof deck
Currently under construction, the residence will be delivered fully finished, giving the buyer time to customize interior colors and select finishes prior to completion.
The interior is professionally designed by renowned designer Adam Sokol and features top-of-the-line finishes throughout, including premium Thermador appliances.
A rare blend of new construction quality, flexibility, ocean views, and prime Laguna Beach location.
main house is 4 bed 4 bath plus adu one bad one bath ,more pictures of construction are available everything is new from sewer line to plumbing,electricaland ….
buyer needs to do their own investigation regarding everything
This exceptional home offers the best of both worlds—panoramic ocean views paired with serene green mountain surroundings. A rare opportunity in Laguna Beach, the property features a spacious driveway with parking for up to five vehicles and two separate driveway exits, an uncommon and highly desirable feature.
The home has been completely rebuilt, with everything brand new, and only two small original walls retained. The total new square footage is approximately 3,235 square feet, which includes a ~550 square foot ADU with a separate entrance, ideal for guests, extended family, or additional income.
rendering show roof deck but there is no roof deck
Currently under construction, the residence will be delivered fully finished, giving the buyer time to customize interior colors and select finishes prior to completion.
The interior is professionally designed by renowned designer Adam Sokol and features top-of-the-line finishes throughout, including premium Thermador appliances.
A rare blend of new construction quality, flexibility, ocean views, and prime Laguna Beach location.
main house is 4 bed 4 bath plus adu one bad one bath ,more pictures of construction are available everything is new from sewer line to plumbing,electricaland ….
buyer needs to do their own investigation regarding everything
Property Details
Price:
$6,000,000
MLS #:
SR26034925
Status:
Active
Beds:
5
Baths:
5
Type:
Single Family
Subtype:
Single Family Residence
Subdivision:
North Laguna NL
Neighborhood:
nlnorthlaguna
Listed Date:
Feb 16, 2026
Finished Sq Ft:
3,235
Lot Size:
6,958 sqft / 0.16 acres (approx)
Year Built:
2026
Schools
School District:
Laguna Beach Unified
Interior
Appliances
DW, FZ, GD, IM, MW, RF, ESA, GER, FSR, DO, HEWH, ESWH, HOD
Bathrooms
4 Full Bathrooms, 1 Half Bathroom
Cooling
CA
Laundry Features
ICL
Levels
A
Main Level Bathrooms
4
Main Level Bedrooms
4
Exterior
Common Walls
NCW
Community Features
PARK, HIKI, BIKI, DGP
New Construction YN
1
View
CN, CA, CI, CO, OC
Financial
Get Out There, A Simply Outgoing Approach to Life. James Outland Jr. is one of those rare people who simply has an outgoing approach to life. No matter the activity… from dune buggy riding to skydiving to motorcycling to riding the local Pismo Beach waves… James Outland Jr. approaches life with a “just get out there and do it” kind of attitude. A zest for Life. James’ zest for life is obviously apparent in his many exciting hobbies. In his spare time, he loves riding dune buggies or hi…
More About JamesMortgage Calculator
Map
Current real estate data for Single Family in Laguna Beach as of Apr 06, 2026
468
Single Family Listed
107
Avg DOM
892
Avg $ / SqFt
$2,819,292
Avg List Price
Community
- Address1955 San Remo Laguna Beach CA
- SubdivisionNorth Laguna (NL)
- CityLaguna Beach
- CountyOrange
- Zip Code92651
Similar Listings Nearby
Property Summary
- Located in the North Laguna (NL) subdivision, 1955 San Remo Laguna Beach CA is a Single Family for sale in Laguna Beach, CA, 92651. It is listed for $6,000,000 and features 5 beds, 5 baths, and has approximately 3,235 square feet of living space, and was originally constructed in 2026. The current price per square foot is $1,855. The average price per square foot for Single Family listings in Laguna Beach is $892. The average listing price for Single Family in Laguna Beach is $2,819,292. To schedule a showing of MLS#sr26034925 at 1955 San Remo in Laguna Beach, CA, contact your James Outland agent at 8057482262.
Courtesy of Luxuryhouses. Disclaimer: All data relating to real estate for sale on this page comes from the Broker Reciprocity (BR) of the California Regional Multiple Listing Service. Detailed information about real estate listings held by brokerage firms other than James Outland include the name of the listing broker. Neither the listing company nor James Outland shall be responsible for any typographical errors, misinformation, misprints and shall be held totally harmless. The Broker providing this data believes it to be correct, but advises interested parties to confirm any item before relying on it in a purchase decision. Copyright 2026. California Regional Multiple Listing Service. All rights reserved. 1955 San Remo
Laguna Beach, CA















































