$2,875,000
48650 Vista Estrella
La Quinta, CA, 92253
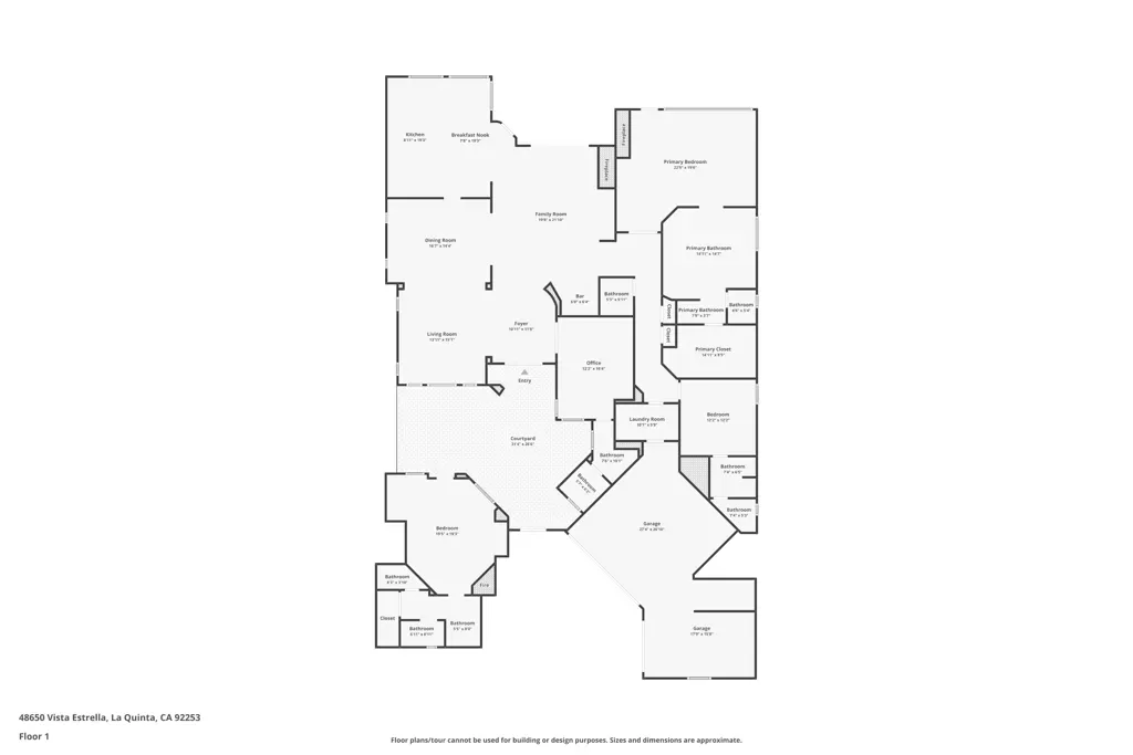
Simply Stunning! There is no better way to describe this masterfully remodeled estate in the prestigious Rancho La Quinta Country Club. Positioned on an expansive, elevated 13,000 sq. ft. lot, this 3,556 sq. ft. residence offers commanding views of the serene lake and the lush fairways of the Jerry Pate course.Renovated from the from the front gate to the back of the lot, the home exudes bespoke luxury. A uniform design palette of creamy whites, rich textures, and perfect proportions creates a seamless transition between the interior and the exterior. Inside, natural wood-look luxury plank flooring leads you to a chef’s kitchen featuring soft-close cabinetry, quartz countertops, and a striking backsplash that soars to the ceiling. The adjacent great room, anchored by a custom bar with herringbone detailing and gold hardware, features a massive new slider that invites the outdoors in.The grounds have been reimagined for the ultimate entertainer, featuring a putting green, a firepit, and multiple social zones including an outdoor fireplace and a romantic sunset viewing area. The primary suite offers a professionally designed closet, while the handsome double-door office provides a built-in workspace and a hidden Murphy bed. Guests will enjoy total privacy in the detached casita, complete with its own fireplace and kitchenette. Professionally furnished and turnkey-ready, this is desert living at its finest.Interior HighlightsGourmet Kitchen: New quartz surfaces, designer cabinetry, and high-end finishes.Great Room: Features a custom floor-to-ceiling herringbone bar and seamless slider-door access to the patio.Versatile Spaces: Executive office with custom built-ins and Murphy bed; primary suite with a designer walk-in closet.Guest Casita: A private, free-standing retreat with a kitchenette and fireplace.Outdoor OasisElevated lake and fairway views framed by the Chocolate Mountains.Newly expanded social spaces including a BBQ bar, firepit, and putting green.Refined landscaping and hardscaping mirror the home’s interior sophistication.Available professionally furnished (outside of escrow), this estate is ready for its next chapter. Join us for an Exclusive Viewing: Sunday, Feb 1st, 12-3pm.
Property Details
Price:
$2,875,000
MLS #:
219142391DA
Status:
Active
Beds:
4
Baths:
5
Type:
Single Family
Subtype:
Single Family Residence
Subdivision:
Rancho La Quinta CC
Neighborhood:
313laquintasouthofhwy111
Listed Date:
Jan 30, 2026
Finished Sq Ft:
3,556
Lot Size:
13,068 sqft / 0.30 acres (approx)
Year Built:
2001
Schools
Interior
Appliances
FZ, RF, GO, GS, GWH, HOD
Bathrooms
1 Full Bathroom, 3 Three Quarter Bathrooms, 1 One Quarter Bathroom
Cooling
CA, ELC, HP
Flooring
TILE, LAM, CARP
Heating
ELC, FA
Interior Features
WB, RECL, HCEL
Laundry Features
IR
Levels
A
Exterior
Attached Garage YN
1
Community Features
GOLF
Construction Materials
PLS
Exterior Features
BQ
Fencing
MASN
Garage Spaces
3
Parking Spots
5
Parking Total
5
Patio And Porch Features
CON, EN
Roof
CLY
Security Features
_24HR, GC
Spa Features
HT, IG, PVT
View
GC, LA
Window Features
SHT
Financial
HOA Fee
$1,198
HOA Fee 2
$159
HOA Fee 2 Frequency
MO
HOA Fee Frequency
MO
Get Out There, A Simply Outgoing Approach to Life. James Outland Jr. is one of those rare people who simply has an outgoing approach to life. No matter the activity… from dune buggy riding to skydiving to motorcycling to riding the local Pismo Beach waves… James Outland Jr. approaches life with a “just get out there and do it” kind of attitude. A zest for Life. James’ zest for life is obviously apparent in his many exciting hobbies. In his spare time, he loves riding dune buggies or hi…
More About JamesMortgage Calculator
Map
Current real estate data for Single Family in La Quinta as of Apr 06, 2026
721
Single Family Listed
218
Avg DOM
264
Avg $ / SqFt
$1,256,144
Avg List Price
Community
- Address48650 Vista Estrella La Quinta CA
- SubdivisionRancho La Quinta CC
- CityLa Quinta
- CountyRiverside
- Zip Code92253
Similar Listings Nearby
Property Summary
- Located in the Rancho La Quinta CC subdivision, 48650 Vista Estrella La Quinta CA is a Single Family for sale in La Quinta, CA, 92253. It is listed for $2,875,000 and features 4 beds, 5 baths, and has approximately 3,556 square feet of living space, and was originally constructed in 2001. The current price per square foot is $808. The average price per square foot for Single Family listings in La Quinta is $264. The average listing price for Single Family in La Quinta is $1,256,144. To schedule a showing of MLS#219142391da at 48650 Vista Estrella in La Quinta, CA, contact your James Outland agent at 8057482262.
Courtesy of Berkshire Hathaway HomeServices California Properties. Disclaimer: All data relating to real estate for sale on this page comes from the Broker Reciprocity (BR) of the California Regional Multiple Listing Service. Detailed information about real estate listings held by brokerage firms other than James Outland include the name of the listing broker. Neither the listing company nor James Outland shall be responsible for any typographical errors, misinformation, misprints and shall be held totally harmless. The Broker providing this data believes it to be correct, but advises interested parties to confirm any item before relying on it in a purchase decision. Copyright 2026. California Regional Multiple Listing Service. All rights reserved. 48650 Vista Estrella
La Quinta, CA















































































