$899,000
50175 Vista Montana RD
La Quinta, CA, 92253
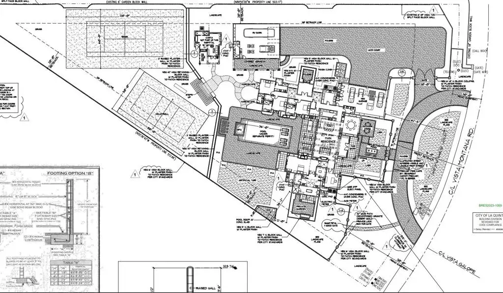
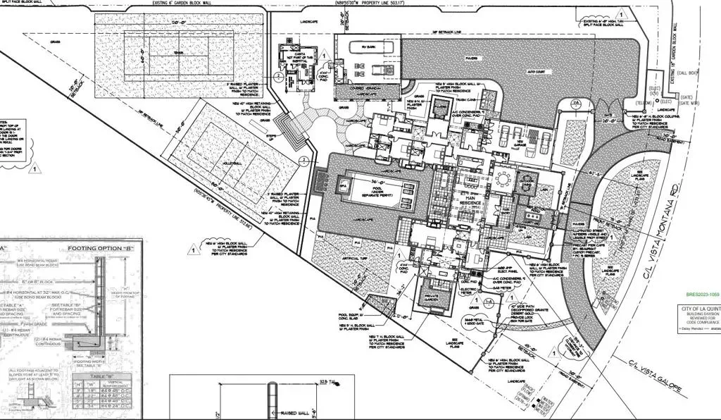
Build your dream home in one of the Coachella Valley’s most exclusive equestrian communities. This spacious custom estate lot comes with fully approved architectural plans, saving you valuable time and effort. Nestled within a secured community, this property offers the perfect blend of luxury and privacy. Just minutes from Old Town La Quinta, Iconic Empire Polo Grounds that is home to Coachella and Stagecoach Music Festivals.********Fully Approved********Main Residence 6,086 square feetFour Car Garage 1,438Covered Patio & Outdoor Living 1,361 square feetRV Garage & Verandah 2,306 square feetTennis & Volleyball CourtPool & SpaPlans prepared by South West Concepts Inc.
Property Details
Price:
$899,000
MLS #:
219136475DA
Status:
Active
Beds:
0
Baths:
0
Type:
Land
Subdivision:
La Quinta Polo Est
Neighborhood:
313laquintasouthofhwy111
Listed Date:
Dec 15, 2025
Lot Size:
89,733 sqft / 2.06 acres (approx)
Schools
Interior
Exterior
Financial
HOA Fee
$420
Get Out There, A Simply Outgoing Approach to Life. James Outland Jr. is one of those rare people who simply has an outgoing approach to life. No matter the activity… from dune buggy riding to skydiving to motorcycling to riding the local Pismo Beach waves… James Outland Jr. approaches life with a “just get out there and do it” kind of attitude. A zest for Life. James’ zest for life is obviously apparent in his many exciting hobbies. In his spare time, he loves riding dune buggies or hi…
More About JamesMortgage Calculator
Map
Community
- Address50175 Vista Montana RD La Quinta CA
- SubdivisionLa Quinta Polo Est
- CityLa Quinta
- CountyRiverside
- Zip Code92253
Similar Listings Nearby
Property Summary
- Located in the La Quinta Polo Est subdivision, 50175 Vista Montana RD La Quinta CA is a Land for sale in La Quinta, CA, 92253. It is listed for $899,000 and features 2 acres. To schedule a showing of MLS#219136475da at 50175 Vista Montana RD in La Quinta, CA, contact your James Outland agent at 8057482262.
Courtesy of Wilson-Meade Commercial Real Estate. Disclaimer: All data relating to real estate for sale on this page comes from the Broker Reciprocity (BR) of the California Regional Multiple Listing Service. Detailed information about real estate listings held by brokerage firms other than James Outland include the name of the listing broker. Neither the listing company nor James Outland shall be responsible for any typographical errors, misinformation, misprints and shall be held totally harmless. The Broker providing this data believes it to be correct, but advises interested parties to confirm any item before relying on it in a purchase decision. Copyright 2026. California Regional Multiple Listing Service. All rights reserved. 50175 Vista Montana RD
La Quinta, CA









