$465,000
948 Picaacho DR
La Habra Heights, CA, 90631
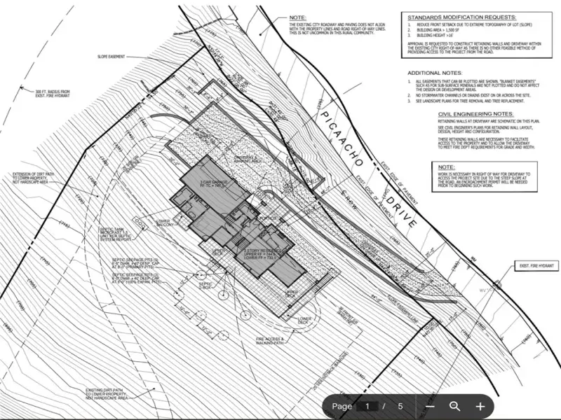
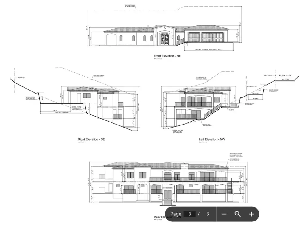
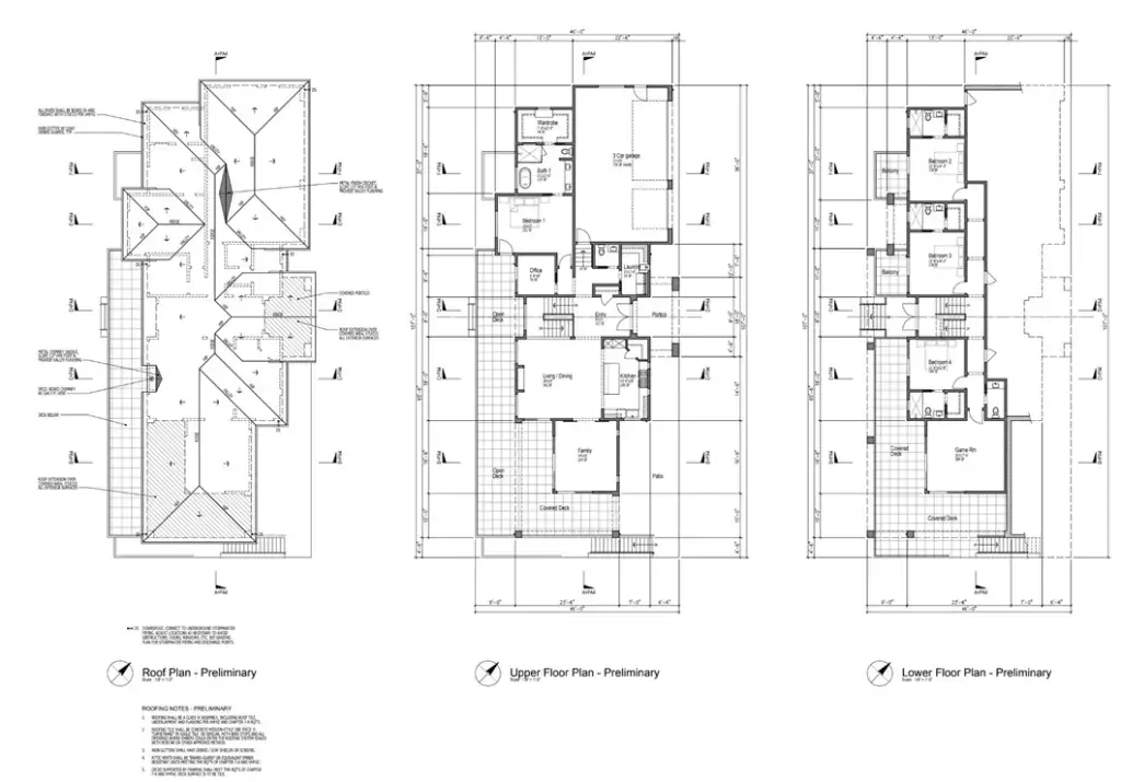
Vacant panoramic view lot with completed architectural plans for a custom luxury residence in the prestigious hills of La Habra Heights. This exceptional approximately 1.6-acre hillside parcel offers breathtaking city-light and ocean views and the opportunity to continue a thoughtfully designed approximately 3,100 square foot two-story home featuring 4 bedrooms, expansive view decks, and an attached 3-car garage, all positioned to maximize privacy and surrounding scenery. Extensive site studies and engineering work have already been completed, including soils investigation and septic feasibility, providing a significant head start for the next owner. The project has progressed through Planning, Engineering, Fire, and Landscape review with the City of La Habra Heights and is pending final civil engineering completion prior to RTI clearance, with approximately $3,500 remaining for grading plan submittal and civil clearance. The property features approximately 218 feet of frontage, approximately 387 feet of depth, and about 180 feet of width across the lower portion of the lot, creating a generous building envelope and flexible design potential. A rare small flat pad at the lower portion of the property offers additional possibilities for a future ADU, guest house, studio, pool area, garden retreat, or outdoor entertaining space, subject to city approval. Surrounded by multi-million-dollar estates and tranquil hillside landscapes, this is a rare opportunity to acquire a premier view lot with meaningful architectural and engineering progress already in place. On exceptionally clear days, Catalina Island may be visible in the distance. All information deemed reliable but not guaranteed. Buyers to independently verify plans, permits, utilities, boundaries, and development requirements.
Property Details
Price:
$465,000
MLS #:
CV26041851
Status:
Active
Beds:
0
Baths:
0
Type:
Land
Neighborhood:
88lahabraheights
Listed Date:
Feb 27, 2026
Lot Size:
72,399 sqft / 1.66 acres (approx)
Schools
Interior
Exterior
Community Features
FHL, MTN, HIKI
Fencing
NO
View
CA, CI, CO, HI, OC, PA
Financial
Get Out There, A Simply Outgoing Approach to Life. James Outland Jr. is one of those rare people who simply has an outgoing approach to life. No matter the activity… from dune buggy riding to skydiving to motorcycling to riding the local Pismo Beach waves… James Outland Jr. approaches life with a “just get out there and do it” kind of attitude. A zest for Life. James’ zest for life is obviously apparent in his many exciting hobbies. In his spare time, he loves riding dune buggies or hi…
More About JamesMortgage Calculator
Map
Current real estate data for Land in La Habra Heights as of Apr 10, 2026
10
Land Listed
311
Avg DOM
$1,020,779
Avg List Price
Community
- Address948 Picaacho DR La Habra Heights CA
- CityLa Habra Heights
- CountyLos Angeles
- Zip Code90631
Similar Listings Nearby
Property Summary
- 948 Picaacho DR La Habra Heights CA is a Land for sale in La Habra Heights, CA, 90631. It is listed for $465,000 and features 2 acres. To schedule a showing of MLS#cv26041851 at 948 Picaacho DR in La Habra Heights, CA, contact your James Outland agent at 8057482262.
Courtesy of Century 21 Masters. Disclaimer: All data relating to real estate for sale on this page comes from the Broker Reciprocity (BR) of the California Regional Multiple Listing Service. Detailed information about real estate listings held by brokerage firms other than James Outland include the name of the listing broker. Neither the listing company nor James Outland shall be responsible for any typographical errors, misinformation, misprints and shall be held totally harmless. The Broker providing this data believes it to be correct, but advises interested parties to confirm any item before relying on it in a purchase decision. Copyright 2026. California Regional Multiple Listing Service. All rights reserved. 948 Picaacho DR
La Habra Heights, CA























