$5,646,500
560 PENINSULA
Irvine, CA, 92602
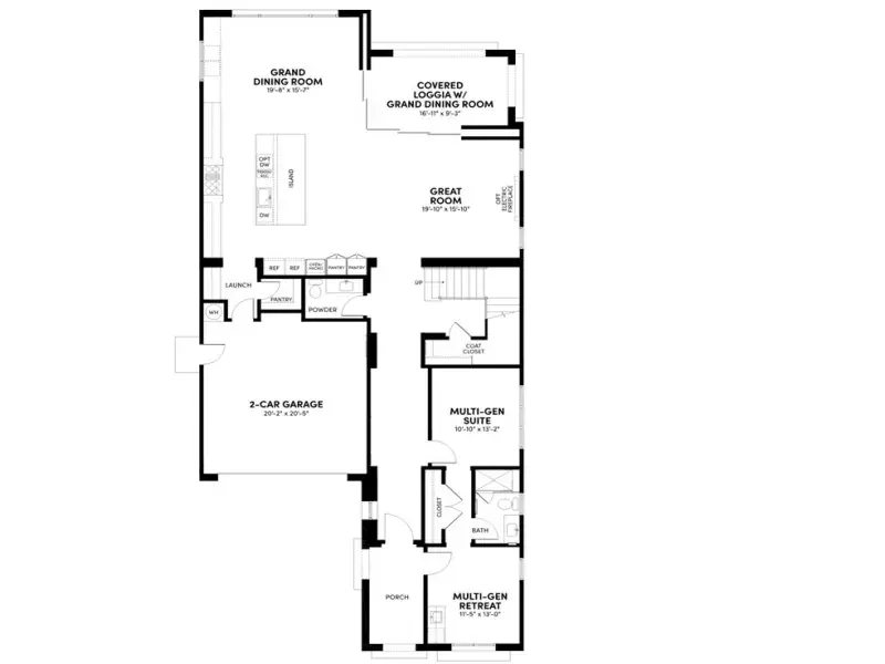
View Homesite a top The Summit in Orchard Hills! New Construction – Make this home yours by having the ability to personally select your designer options. Grand Dining Room and Multi Gen Suite structural options included now. Welcome home to luxury at Vista in Summit at Orchard Hills! Introducing our Brisa floorplan. From the first step into Brisa, you are greeted by 12’ ceilings, inviting you inside. Open concept living offers spacious great room, dining room gourmet chef’s kitchen. Kitchen is complete with Wolf appliance package and walk-in pantry. Step from your great room onto your covered California room. Upstairs your primary bedroom with a tranquil primary bath featuring dual sinks, vanity relaxing soaking tub. Each bedroom features private en suite with walk in closet. Oversized loft is the perfect setting for movie nights, homework stations or home office. Schedule your private tour today!
Property Details
Price:
$5,646,500
MLS #:
OC25267836
Status:
Active
Beds:
4
Baths:
5
Type:
Single Family
Subtype:
Single Family Residence
Neighborhood:
ohorchardhills
Listed Date:
Nov 30, 2025
Finished Sq Ft:
3,971
Lot Size:
6,985 sqft / 0.16 acres (approx)
Year Built:
2026
Schools
School District:
Irvine Unified
Interior
Appliances
DW, MW, ESA, BIR, CO, ESWH, HOD
Bathrooms
4 Full Bathrooms, 1 Half Bathroom
Cooling
CA, ES, HE, WHF
Heating
ES
Laundry Features
IR
Exterior
Community Features
SDW, STM, SL, SUB, CRB, FHL
Parking Spots
2
Financial
HOA Fee
$975
HOA Frequency
MO
Get Out There, A Simply Outgoing Approach to Life. James Outland Jr. is one of those rare people who simply has an outgoing approach to life. No matter the activity… from dune buggy riding to skydiving to motorcycling to riding the local Pismo Beach waves… James Outland Jr. approaches life with a “just get out there and do it” kind of attitude. A zest for Life. James’ zest for life is obviously apparent in his many exciting hobbies. In his spare time, he loves riding dune buggies or hi…
More About JamesMortgage Calculator
Map
Current real estate data for Single Family in Irvine as of Feb 13, 2026
654
Single Family Listed
45
Avg DOM
348
Avg $ / SqFt
$1,000,365
Avg List Price
Community
- Address560 PENINSULA Irvine CA
- SubdivisionOther (OTHR)
- CityIrvine
- CountyOrange
- Zip Code92602
Similar Listings Nearby
Property Summary
- Located in the Other (OTHR) subdivision, 560 PENINSULA Irvine CA is a Single Family for sale in Irvine, CA, 92602. It is listed for $5,646,500 and features 4 beds, 5 baths, and has approximately 3,971 square feet of living space, and was originally constructed in 2026. The current price per square foot is $1,422. The average price per square foot for Single Family listings in Irvine is $348. The average listing price for Single Family in Irvine is $1,000,365. To schedule a showing of MLS#oc25267836 at 560 PENINSULA in Irvine, CA, contact your James Outland agent at 8057482262.
Courtesy of Brookfield Residential Sales Inc.. Disclaimer: All data relating to real estate for sale on this page comes from the Broker Reciprocity (BR) of the California Regional Multiple Listing Service. Detailed information about real estate listings held by brokerage firms other than James Outland include the name of the listing broker. Neither the listing company nor James Outland shall be responsible for any typographical errors, misinformation, misprints and shall be held totally harmless. The Broker providing this data believes it to be correct, but advises interested parties to confirm any item before relying on it in a purchase decision. Copyright 2026. California Regional Multiple Listing Service. All rights reserved. 560 PENINSULA
Irvine, CA






















