$829,900
76950 Iroquois DR
Indian Wells, CA, 92210
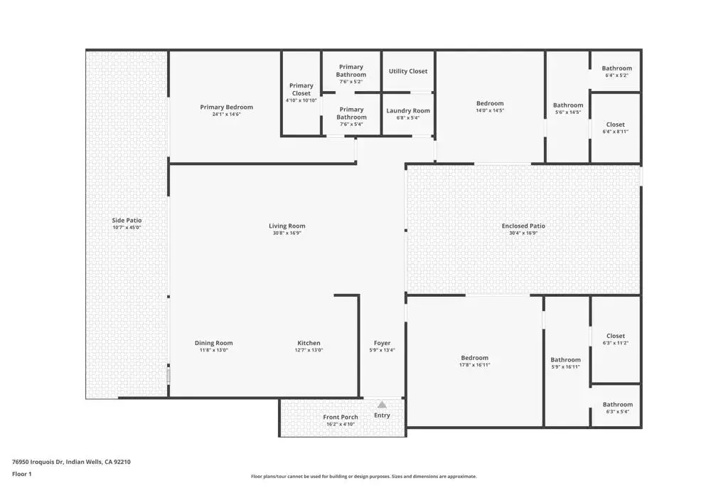
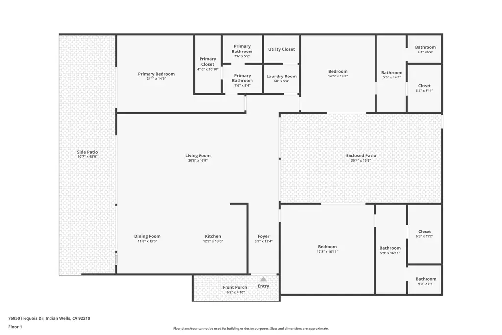
A rare opportunity to own a classic mid-century residence in the highly sought-after Sandpiper at Indian Wells Country Club–a community celebrated for its low density, resort-style ambiance and architectural significance. Designed in 1968 by renowned mid-century modern architect William Krisel, this condominium embodies timeless design paired with thoughtful modern updates.Offering 2,280 square feet of living space on a 3,168 square foot lot, this home features an amazing open floor plan ideal for relaxed desert living and effortless entertaining. The residence includes three king-sized en-suite bedrooms and three baths, providing exceptional comfort and privacy for owners and guests alike.Walls of glass connect the interior to both front and rear outdoor spaces, creating seamless indoor-outdoor flow and capturing serene pool views. A covered atrium brings natural light into the heart of the home, enhancing the airy, architectural feel. The gorgeous kitchen is well-appointed for modern living, complemented by updated baths, a dedicated laundry room, and an attached two-car garage.Ideally located close to the clubhouse, this home also offers access to exceptional lifestyle benefits. Owners qualify for the Indian Wells Resident Benefit Card, providing discounts at the Indian Wells Golf Resort, the BNP Paribas Open, all four Indian Wells luxury resorts, and exclusive resident events. Additionally, optional membership in Indian Wells Country Club unlocks two championship golf courses, fitness and social amenities, a full clubhouse, a steakhouse, and more.This is desert living at its finest–architecturally significant, beautifully updated, and perfectly positioned to enjoy the best of Indian Wells.
Property Details
Price:
$829,900
MLS #:
219140712DA
Status:
Active
Beds:
3
Baths:
3
Type:
Condo
Subtype:
Condominium
Subdivision:
Indian Wells C.C.
Neighborhood:
325indianwells
Listed Date:
Jan 4, 2026
Finished Sq Ft:
2,280
Lot Size:
3,168 sqft / 0.07 acres (approx)
Year Built:
1968
Schools
Interior
Appliances
DW, GD, MW, RF, GR, GWH, HOD
Bathrooms
1 Full Bathroom, 2 Three Quarter Bathrooms
Cooling
CA, ELC
Flooring
TILE, CARP
Heating
FA, GAS, CF
Laundry Features
IR
Exterior
Community Features
GOLF
Construction Materials
STC
Parking Spots
2
Roof
COM, ELS
Security Features
_24HR, GC
Financial
HOA Fee
$635
HOA Frequency
MO
Get Out There, A Simply Outgoing Approach to Life. James Outland Jr. is one of those rare people who simply has an outgoing approach to life. No matter the activity… from dune buggy riding to skydiving to motorcycling to riding the local Pismo Beach waves… James Outland Jr. approaches life with a “just get out there and do it” kind of attitude. A zest for Life. James’ zest for life is obviously apparent in his many exciting hobbies. In his spare time, he loves riding dune buggies or hi…
More About JamesMortgage Calculator
Map
Current real estate data for Condo in Indian Wells as of Feb 13, 2026
37
Condo Listed
42
Avg DOM
533
Avg $ / SqFt
$1,167,122
Avg List Price
Community
- Address76950 Iroquois DR Indian Wells CA
- SubdivisionIndian Wells C.C.
- CityIndian Wells
- CountyRiverside
- Zip Code92210
Similar Listings Nearby
Property Summary
- Located in the Indian Wells C.C. subdivision, 76950 Iroquois DR Indian Wells CA is a Condo for sale in Indian Wells, CA, 92210. It is listed for $829,900 and features 3 beds, 3 baths, and has approximately 2,280 square feet of living space, and was originally constructed in 1968. The current price per square foot is $364. The average price per square foot for Condo listings in Indian Wells is $533. The average listing price for Condo in Indian Wells is $1,167,122. To schedule a showing of MLS#219140712da at 76950 Iroquois DR in Indian Wells, CA, contact your James Outland agent at 8057482262.
Courtesy of Coldwell Banker Realty. Disclaimer: All data relating to real estate for sale on this page comes from the Broker Reciprocity (BR) of the California Regional Multiple Listing Service. Detailed information about real estate listings held by brokerage firms other than James Outland include the name of the listing broker. Neither the listing company nor James Outland shall be responsible for any typographical errors, misinformation, misprints and shall be held totally harmless. The Broker providing this data believes it to be correct, but advises interested parties to confirm any item before relying on it in a purchase decision. Copyright 2026. California Regional Multiple Listing Service. All rights reserved. 76950 Iroquois DR
Indian Wells, CA
















































