$12,500,000
16462 Malden CR
Huntington Beach, CA, 92649
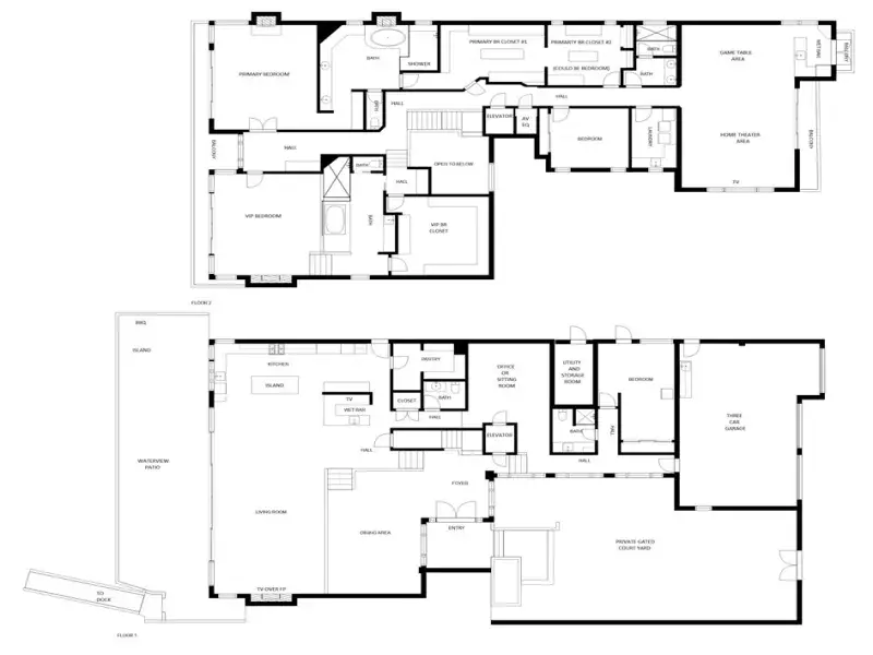
Rarely is it possible to find a Luxury Home of this quality, location, and design. Arguably one of the top 10 homes in the waterfront Huntington Harbour community. Custom Built & Main Channel Waterfront Home with dock for 65+ foot yacht PLUS a second large yacht or Duffy, skiff, and other watercraft. Located on exclusive Gilbert Island in Huntington Harbour… the private gated courtyard is the entry to a luxury waterfront lifestyle offered by this amazing custom home built in 2015. A raised foyer offers immediate water views and transitions to the formal dining area, step down living room, bar, and island kitchen with large walk-in pantry. The waterfront patio offers expansive views of Huntington Harbour with an entertaining array of activity to observe: paddle boarders, kayaks, and boats of various sizes and styles. Also downstairs is an office, powder room, bedroom with full bath (ideal for maid’s quarters), plus oversize 3 car garage & storage/utility room. The primary bedroom upstairs is positively luxurious with views of the harbour, spacious master bath featuring walk-in shower, separate soaking tub, beverage center with microwave, and two walk-in dream closets with built-ins and islands. The VIP bedroom also features views of the harbour and has unique raised & open bath area with walk-in shower, separate tub, and large walk-in closet. Also upstairs is a hall bath & bedroom, walk-in laundry, and large game & home theater room with wet-bar & beverage center. There is an elevator and many other amenities for convenience. It will be offered mostly furnished. This is an emotional property which must be seen to appreciate. Overall, arguably one of the top 10 homes in Huntington Harbour given the enviable mix of view, location, architecture, quality, living area, and wharfage. Oh by the way… there is a “walk-thru” 3D tour, please look for the link in whatever search system you are using to view this listing!
Property Details
Price:
$12,500,000
MLS #:
OC25280267
Status:
Active
Beds:
4
Baths:
5
Type:
Single Family
Subtype:
Single Family Residence
Subdivision:
Gilbert Island HGIL
Neighborhood:
17northwesthuntingtonbeach
Listed Date:
Jan 13, 2026
Finished Sq Ft:
6,731
Lot Size:
7,800 sqft / 0.18 acres (approx)
Year Built:
2015
Schools
School District:
Huntington Beach Union High
Interior
Appliances
DW, FZ, RF, WLR, _6BS, DO
Bathrooms
4 Full Bathrooms, 1 Half Bathroom
Cooling
CA, ZN
Heating
FA, GAS, CF
Laundry Features
IR
Exterior
Architectural Style
CNT, MOD
Community Features
SDW, SL, CRB, CW, FISH, WATE
Construction Materials
STC
Exterior Features
BS, DO
Parking Spots
6
Security Features
SS, SD
Financial
Get Out There, A Simply Outgoing Approach to Life. James Outland Jr. is one of those rare people who simply has an outgoing approach to life. No matter the activity… from dune buggy riding to skydiving to motorcycling to riding the local Pismo Beach waves… James Outland Jr. approaches life with a “just get out there and do it” kind of attitude. A zest for Life. James’ zest for life is obviously apparent in his many exciting hobbies. In his spare time, he loves riding dune buggies or hi…
More About JamesMortgage Calculator
Map
Current real estate data for Single Family in Huntington Beach as of Feb 13, 2026
427
Single Family Listed
61
Avg DOM
390
Avg $ / SqFt
$975,101
Avg List Price
Community
- Address16462 Malden CR Huntington Beach CA
- SubdivisionGilbert Island (HGIL)
- CityHuntington Beach
- CountyOrange
- Zip Code92649
Similar Listings Nearby
Property Summary
- Located in the Gilbert Island (HGIL) subdivision, 16462 Malden CR Huntington Beach CA is a Single Family for sale in Huntington Beach, CA, 92649. It is listed for $12,500,000 and features 4 beds, 5 baths, and has approximately 6,731 square feet of living space, and was originally constructed in 2015. The current price per square foot is $1,857. The average price per square foot for Single Family listings in Huntington Beach is $390. The average listing price for Single Family in Huntington Beach is $975,101. To schedule a showing of MLS#oc25280267 at 16462 Malden CR in Huntington Beach, CA, contact your James Outland agent at 8057482262.
Courtesy of Coldwell Banker-Campbell Rltrs. Disclaimer: All data relating to real estate for sale on this page comes from the Broker Reciprocity (BR) of the California Regional Multiple Listing Service. Detailed information about real estate listings held by brokerage firms other than James Outland include the name of the listing broker. Neither the listing company nor James Outland shall be responsible for any typographical errors, misinformation, misprints and shall be held totally harmless. The Broker providing this data believes it to be correct, but advises interested parties to confirm any item before relying on it in a purchase decision. Copyright 2026. California Regional Multiple Listing Service. All rights reserved. 16462 Malden CR
Huntington Beach, CA





























































