$900,000
7652 Slater AV
Huntington Beach, CA, 92647
Prime Industrial-Zoned Office/Showroom Condominiums – Flexible Investment Opportunity in Huntington Beach
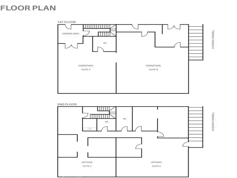
Discover this versatile ±3,462 SF multi-unit property at 7652 Slater Avenue A-D, ideally positioned in the heart of Huntington Beach’s thriving industrial and commercial corridor. Currently configured as four (4) separately parceled office condominiums with a prominent ±550 SF showroom space, this 2-story building offers immediate income potential from office or professional users while unlocking significant future value through its underlying industrial zoning.
Key highlights include:
– Four (4) separate parcels — perfect for owner-user occupancy, multi-tenant leasing, or individual sales for maximum flexibility and exit strategy.
– Six (6) reserved parking spaces for convenient tenant and client access.
– New roof installed in 2024 — recent capital improvement for peace of mind and reduced maintenance.
– Three (3) 400-amp HVAC systems with separate controls — efficient, zoned climate control tailored to individual units.
– Fully sprinklered building for enhanced safety and insurability.
– Strong location in a high-demand area near major thoroughfares, supporting a wide range of professional, service, or light industrial applications.
Zoned for industrial uses (with current office/showroom configuration), this property presents exceptional upside for a savvy buyer. Potential to reimagine the space for light manufacturing, warehouse/distribution, R&D, custom industry, or expanded commercial services—options not typically available under standard office zoning. This rare flexibility in a coastal Orange County market can drive higher long-term returns and broader tenant appeal.
Additional incentive: The seller is offering the first right of refusal to purchase the adjacent attached garages when they become available—ideal for adding storage, vehicle bays, or expanded operational space.
Priced aggressively at $900,000, this asset combines stable cash flow today with substantial redevelopment or repositioning potential tomorrow. Don’t miss this opportunity to secure a strategically located, well-maintained property in one of Southern California’s most desirable coastal markets.
Contact for private showings, financials, or to discuss how this fits your investment or owner-user goals.
Discover this versatile ±3,462 SF multi-unit property at 7652 Slater Avenue A-D, ideally positioned in the heart of Huntington Beach’s thriving industrial and commercial corridor. Currently configured as four (4) separately parceled office condominiums with a prominent ±550 SF showroom space, this 2-story building offers immediate income potential from office or professional users while unlocking significant future value through its underlying industrial zoning.
Key highlights include:
– Four (4) separate parcels — perfect for owner-user occupancy, multi-tenant leasing, or individual sales for maximum flexibility and exit strategy.
– Six (6) reserved parking spaces for convenient tenant and client access.
– New roof installed in 2024 — recent capital improvement for peace of mind and reduced maintenance.
– Three (3) 400-amp HVAC systems with separate controls — efficient, zoned climate control tailored to individual units.
– Fully sprinklered building for enhanced safety and insurability.
– Strong location in a high-demand area near major thoroughfares, supporting a wide range of professional, service, or light industrial applications.
Zoned for industrial uses (with current office/showroom configuration), this property presents exceptional upside for a savvy buyer. Potential to reimagine the space for light manufacturing, warehouse/distribution, R&D, custom industry, or expanded commercial services—options not typically available under standard office zoning. This rare flexibility in a coastal Orange County market can drive higher long-term returns and broader tenant appeal.
Additional incentive: The seller is offering the first right of refusal to purchase the adjacent attached garages when they become available—ideal for adding storage, vehicle bays, or expanded operational space.
Priced aggressively at $900,000, this asset combines stable cash flow today with substantial redevelopment or repositioning potential tomorrow. Don’t miss this opportunity to secure a strategically located, well-maintained property in one of Southern California’s most desirable coastal markets.
Contact for private showings, financials, or to discuss how this fits your investment or owner-user goals.
Property Details
Price:
$900,000
MLS #:
PW26040174
Status:
Active
Beds:
0
Baths:
0
Type:
Commercial
Subtype:
Office
Neighborhood:
17northwesthuntingtonbeach
Listed Date:
Mar 1, 2026
Total Sq Ft:
3,462
Lot Size:
2,213 sqft / 0.05 acres (approx)
Schools
Interior
Laundry Features
NO
Exterior
Financial
Get Out There, A Simply Outgoing Approach to Life. James Outland Jr. is one of those rare people who simply has an outgoing approach to life. No matter the activity… from dune buggy riding to skydiving to motorcycling to riding the local Pismo Beach waves… James Outland Jr. approaches life with a “just get out there and do it” kind of attitude. A zest for Life. James’ zest for life is obviously apparent in his many exciting hobbies. In his spare time, he loves riding dune buggies or hi…
More About JamesMortgage Calculator
Map
Current real estate data for Commercial in Huntington Beach as of Apr 06, 2026
6
Commercial Listed
291
Avg DOM
$3,618,683
Avg List Price
Community
- Address7652 Slater AV Huntington Beach CA
- CityHuntington Beach
- CountyOrange
- Zip Code92647
Similar Listings Nearby
Property Summary
- 7652 Slater AV Huntington Beach CA is a Commercial for sale in Huntington Beach, CA, 92647. It is listed for $900,000 To schedule a showing of MLS#pw26040174 at 7652 Slater AV in Huntington Beach, CA, contact your James Outland agent at 8057482262.
Courtesy of Realty One Group United. Disclaimer: All data relating to real estate for sale on this page comes from the Broker Reciprocity (BR) of the California Regional Multiple Listing Service. Detailed information about real estate listings held by brokerage firms other than James Outland include the name of the listing broker. Neither the listing company nor James Outland shall be responsible for any typographical errors, misinformation, misprints and shall be held totally harmless. The Broker providing this data believes it to be correct, but advises interested parties to confirm any item before relying on it in a purchase decision. Copyright 2026. California Regional Multiple Listing Service. All rights reserved. 7652 Slater AV
Huntington Beach, CA





