Grandfathered beyond current building restrictions, this property stands taller and wider than what is now permitted for new construction, offering uniquely breathtaking ocean views from four of the five units. Wake up to the soothing rhythm of the waves and panoramic ocean views stretching from Malibu to Catalina Island.
Unmatched in its prime location, 1836 The Strand provides the epitome of the Southern California beachfront lifestyle, ideally located between the Pier with its vibrant restaurants, shops, and cafes, and 22nd Street with iconic Martha’s Cafe and the Bottle Inn.
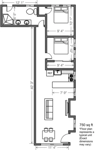
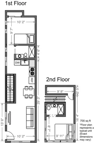
This remarkable income property offers excellent investment potential, offered under $2M per unit—well below Hermosa Strand condo values, and generating a gross scheduled income of $425,196. For context, the neighboring 3,750 sq. ft. home on a 2,410 sq. ft. lot sold for $14.25M, highlighting the exceptional value of this offering.
Options abound… Retain the penthouse as your private beachfront retreat, offer guest accommodations for family and friends, and maximize rental income from the remaining units. This beachfront gem ranks with a high score of 84 on WalkScore.com, and offers easy access to renowned schools, freeways, and numerous local destinations like LAX, Santa Monica and downtown LA.
1836 The Strand is a one-of-a-kind property that rarely graces the market. Its versatility, stunning views, and unmatched location make it an irresistible opportunity for discerning buyers, investors, or those seeking a luxurious family beach compound. For investors looking to expand their Strand portfolio, additional off-market properties may be available as part of a larger acquisition. Inquire for details, and don’t miss this chance to own a piece of the coveted Strand lifestyle.
Property Details
Schools
Interior
Exterior
Financial
Get Out There, A Simply Outgoing Approach to Life. James Outland Jr. is one of those rare people who simply has an outgoing approach to life. No matter the activity… from dune buggy riding to skydiving to motorcycling to riding the local Pismo Beach waves… James Outland Jr. approaches life with a “just get out there and do it” kind of attitude. A zest for Life. James’ zest for life is obviously apparent in his many exciting hobbies. In his spare time, he loves riding dune buggies or hi…
More About JamesMortgage Calculator
Map
Community
- Address1836 The Strand Hermosa Beach CA
- CityHermosa Beach
- CountyLos Angeles
- Zip Code90254
Similar Listings Nearby
Property Summary
- 1836 The Strand Hermosa Beach CA is a Single Family for sale in Hermosa Beach, CA, 90254. It is listed for $8,995,000 and features 11 beds, 7 baths, and has approximately 3,908 square feet of living space, and was originally constructed in 1928. The current price per square foot is $2,302. The average price per square foot for Single Family listings in Hermosa Beach is $864. The average listing price for Single Family in Hermosa Beach is $2,605,594. To schedule a showing of MLS#sb25184508 at 1836 The Strand in Hermosa Beach, CA, contact your James Outland agent at 8057482262.
Courtesy of Strand Hill Properties. Disclaimer: All data relating to real estate for sale on this page comes from the Broker Reciprocity (BR) of the California Regional Multiple Listing Service. Detailed information about real estate listings held by brokerage firms other than James Outland include the name of the listing broker. Neither the listing company nor James Outland shall be responsible for any typographical errors, misinformation, misprints and shall be held totally harmless. The Broker providing this data believes it to be correct, but advises interested parties to confirm any item before relying on it in a purchase decision. Copyright 2026. California Regional Multiple Listing Service. All rights reserved. Grandfathered beyond current building restrictions, this property stands taller and wider than what is now permitted for new construction, offering uniquely breathtaking ocean views from four of the five units. Wake up to the soothing rhythm of the waves and panoramic ocean views stretching from Malibu to Catalina Island.
Unmatched in its prime location, 1836 The Strand provides the epitome of the Southern California beachfront lifestyle, ideally located between the Pier with its vibrant restaurants, shops, and cafes, and 22nd Street with iconic Martha’s Cafe and the Bottle Inn.
This remarkable income property offers excellent investment potential, offered under $2M per unit—well below Hermosa Strand condo values, and generating a gross scheduled income of $425,196. For context, the neighboring 3,750 sq. ft. home on a 2,410 sq. ft. lot sold for $14.25M, highlighting the exceptional value of this offering.
Options abound… Retain the penthouse as your private beachfront retreat, offer guest accommodations for family and friends, and maximize rental income from the remaining units. This beachfront gem ranks with a high score of 84 on WalkScore.com, and offers easy access to renowned schools, freeways, and numerous local destinations like LAX, Santa Monica and downtown LA.
1836 The Strand is a one-of-a-kind property that rarely graces the market. Its versatility, stunning views, and unmatched location make it an irresistible opportunity for discerning buyers, investors, or those seeking a luxurious family beach compound. For investors looking to expand their Strand portfolio, additional off-market properties may be available as part of a larger acquisition. Inquire for details, and don’t miss this chance to own a piece of the coveted Strand lifestyle.
Property Details
Schools
Interior
Exterior
Financial
Get Out There, A Simply Outgoing Approach to Life. James Outland Jr. is one of those rare people who simply has an outgoing approach to life. No matter the activity… from dune buggy riding to skydiving to motorcycling to riding the local Pismo Beach waves… James Outland Jr. approaches life with a “just get out there and do it” kind of attitude. A zest for Life. James’ zest for life is obviously apparent in his many exciting hobbies. In his spare time, he loves riding dune buggies or hi…
More About JamesMortgage Calculator
Map
Community
- Address1836 The Strand Hermosa Beach CA
- CityHermosa Beach
- CountyLos Angeles
- Zip Code90254
Similar Listings Nearby
Property Summary
- 1836 The Strand Hermosa Beach CA is a Single Family for sale in Hermosa Beach, CA, 90254. It is listed for $8,995,000 and features 0 beds, 0 baths, and has approximately 0 square feet of living space, and was originally constructed in 1928. The average price per square foot for Single Family listings in Hermosa Beach is $864. The average listing price for Single Family in Hermosa Beach is $2,605,594. To schedule a showing of MLS#sb25184514 at 1836 The Strand in Hermosa Beach, CA, contact your James Outland agent at 8057482262.













































































