$1,250,000
13048 Hawthorne
Hawthorne, CA, 90250
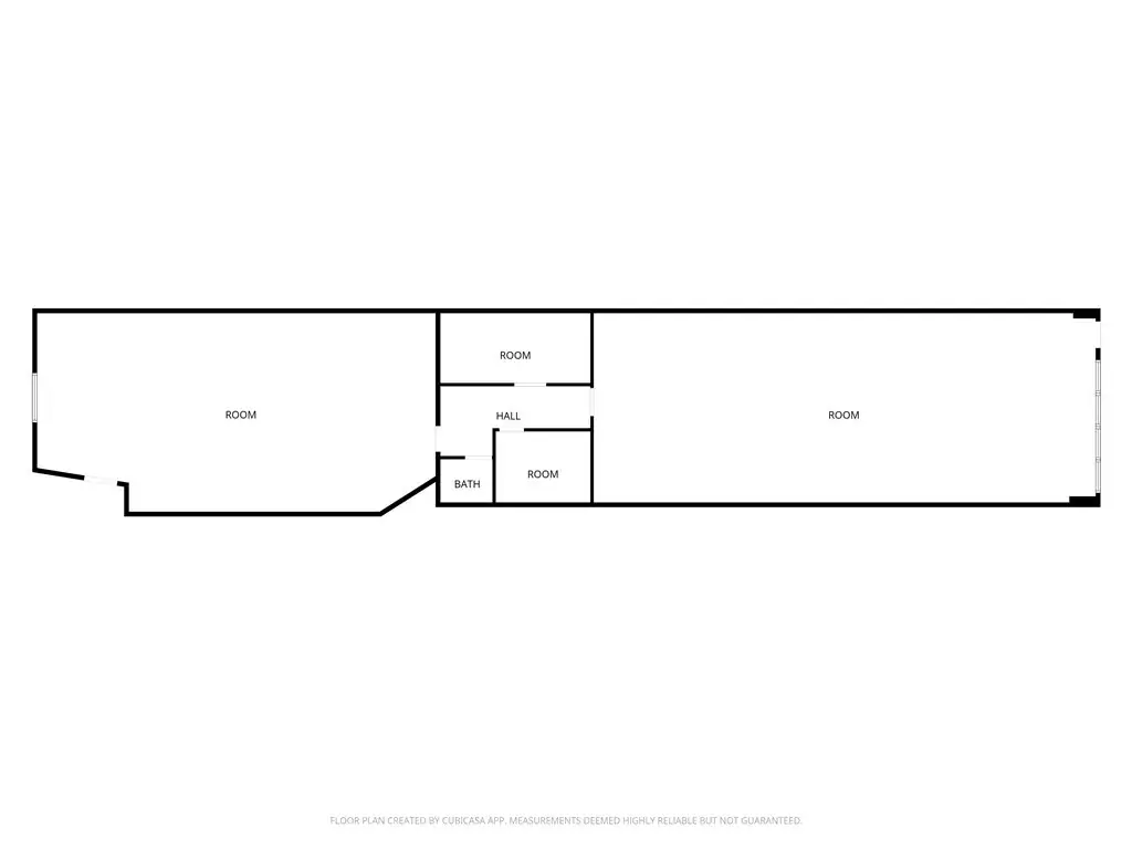
13048–13052 Hawthorne Blvd is a two-unit retail property totaling 5,203 square feet presenting an excellent opportunity for an owner-user, investor, or redevelopment buyer. The property is currently configured as two ±2,500 SF retail suites, with the ability to combine into one ±5,000 SF space to accommodate a single larger user.
Both units are delivered in shell condition, allowing for a fully customized build-out to suit a wide range of retail or commercial uses. Recent capital improvements include a new façade, new storefront glass, and a new roof, providing a strong foundation for future improvements. The property is individually metered for electricity and features alley-access parking, with potential for roll-up doors to enhance functionality.
The site is located along high-traffic Hawthorne Boulevard, benefiting from approximately 36,000 vehicles per day at the nearest intersection and offering excellent visibility and accessibility. The property is zoned C2, allowing for a broad range of retail and commercial uses, and is conveniently positioned near both the I-110 and I-405 freeways.
The surrounding area continues to show strong momentum, highlighted by Octapharma Plasma, a national tenant, leasing the former Dollar Tree directly across the street and currently in the permitting process. 90% SBA financing is available for qualified owner-users, further enhancing the attractiveness of this offering.
Both units are delivered in shell condition, allowing for a fully customized build-out to suit a wide range of retail or commercial uses. Recent capital improvements include a new façade, new storefront glass, and a new roof, providing a strong foundation for future improvements. The property is individually metered for electricity and features alley-access parking, with potential for roll-up doors to enhance functionality.
The site is located along high-traffic Hawthorne Boulevard, benefiting from approximately 36,000 vehicles per day at the nearest intersection and offering excellent visibility and accessibility. The property is zoned C2, allowing for a broad range of retail and commercial uses, and is conveniently positioned near both the I-110 and I-405 freeways.
The surrounding area continues to show strong momentum, highlighted by Octapharma Plasma, a national tenant, leasing the former Dollar Tree directly across the street and currently in the permitting process. 90% SBA financing is available for qualified owner-users, further enhancing the attractiveness of this offering.
Property Details
Price:
$1,250,000
MLS #:
PW26026318
Status:
Active
Beds:
0
Baths:
0
Type:
Commercial
Subtype:
Retail
Neighborhood:
109ramonaburleigh
Listed Date:
Feb 5, 2026
Total Sq Ft:
5,823
Lot Size:
5,823 sqft / 0.13 acres (approx)
Year Built:
1954
Schools
Interior
Laundry Features
NO
Exterior
Financial
Get Out There, A Simply Outgoing Approach to Life. James Outland Jr. is one of those rare people who simply has an outgoing approach to life. No matter the activity… from dune buggy riding to skydiving to motorcycling to riding the local Pismo Beach waves… James Outland Jr. approaches life with a “just get out there and do it” kind of attitude. A zest for Life. James’ zest for life is obviously apparent in his many exciting hobbies. In his spare time, he loves riding dune buggies or hi…
More About JamesMortgage Calculator
Map
Current real estate data for Commercial in Hawthorne as of Feb 13, 2026
12
Commercial Listed
125
Avg DOM
$1,830,833
Avg List Price
Community
- Address13048 Hawthorne Hawthorne CA
- CityHawthorne
- CountyLos Angeles
- Zip Code90250
Similar Listings Nearby
Property Summary
- 13048 Hawthorne Hawthorne CA is a Commercial for sale in Hawthorne, CA, 90250. It is listed for $1,250,000 To schedule a showing of MLS#pw26026318 at 13048 Hawthorne in Hawthorne, CA, contact your James Outland agent at 8057482262.
Courtesy of Lyon Stahl Investment Real Est. Disclaimer: All data relating to real estate for sale on this page comes from the Broker Reciprocity (BR) of the California Regional Multiple Listing Service. Detailed information about real estate listings held by brokerage firms other than James Outland include the name of the listing broker. Neither the listing company nor James Outland shall be responsible for any typographical errors, misinformation, misprints and shall be held totally harmless. The Broker providing this data believes it to be correct, but advises interested parties to confirm any item before relying on it in a purchase decision. Copyright 2026. California Regional Multiple Listing Service. All rights reserved. 13048 Hawthorne
Hawthorne, CA





















