$1,400,000
100 W Ramona AV Lot 13
Grover Beach, CA, 93433
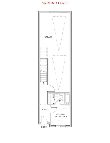
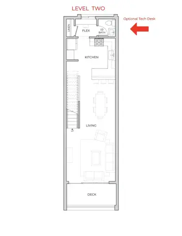
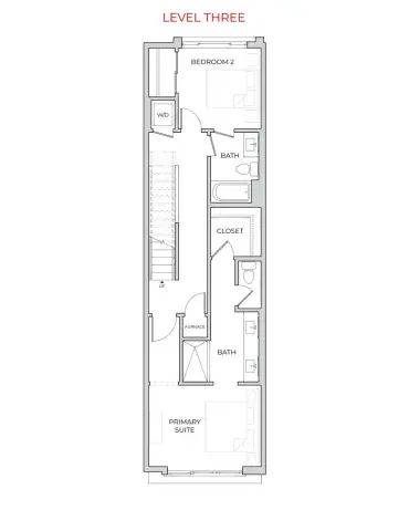
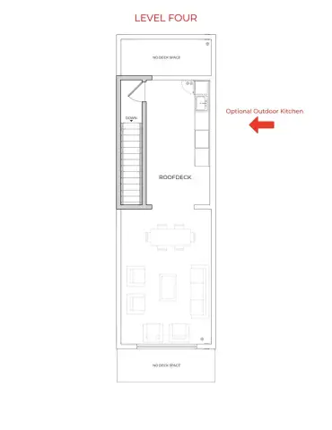
BRAND NEW CONSTRUCTION – Welcome to Lot 13 at Trinity, a limited collection of 23 luxury ocean-view townhomes and condominiums with spacious rooftop decks, located in Grover Beach’s West End, just minutes from the shoreline. This contemporary 3-bedroom, 3.5-bath townhome offers open-concept living with modern and thoughtful finishes throughout. The kitchen features quartz countertops, designer cabinetry, and stainless-steel appliances. Multiple decks provide indoor-outdoor living. The primary bedroom is a tranquil retreat with a large sliding door to let the ocean breeze in and features an en-suite, spa-inspired bath and a spacious closet. The rooftop deck offers ocean and sunset views, with options for an outdoor kitchen and hot tub. Additional highlights include a two-car tandem garage with EV pre-wiring. The home is located near local beaches, cafes, farmers markets, and local wineries. Enjoy all that the Central Coast has to offer—all from your new coastal retreat.
Property Details
Price:
$1,400,000
MLS #:
PI25253107
Status:
Active
Beds:
3
Baths:
4
Type:
Townhouse
Neighborhood:
grvcgroverbeach
Listed Date:
Nov 10, 2025
Finished Sq Ft:
1,967
Year Built:
Schools
School District:
Lucia Mar Unified
Elementary School:
Grover Heights
Middle School:
Judkins
High School:
Arroyo Grande
Interior
Appliances
DW, GD, GO, GR, WHU
Bathrooms
3 Full Bathrooms, 1 Half Bathroom
Cooling
CA
Flooring
SEE, VINY, CARP
Heating
CF
Laundry Features
GE, ICL, UL, WH
Exterior
Architectural Style
CNT, MOD
Community Features
SDW, STM, SL, CRB
Construction Materials
STC, WOD
Parking Spots
2
Roof
CMP
Financial
HOA Fee
$182
HOA Frequency
MO
Get Out There, A Simply Outgoing Approach to Life. James Outland Jr. is one of those rare people who simply has an outgoing approach to life. No matter the activity… from dune buggy riding to skydiving to motorcycling to riding the local Pismo Beach waves… James Outland Jr. approaches life with a “just get out there and do it” kind of attitude. A zest for Life. James’ zest for life is obviously apparent in his many exciting hobbies. In his spare time, he loves riding dune buggies or hi…
More About JamesMortgage Calculator
Map
Current real estate data for Townhouse in Grover Beach as of Dec 03, 2025
2
Townhouse Listed
18
Avg DOM
712
Avg $ / SqFt
$1,400,000
Avg List Price
Community
- Address100 W Ramona AV Lot 13 Grover Beach CA
- SubdivisionOther (OTHR)
- CityGrover Beach
- CountySan Luis Obispo
- Zip Code93433
Subdivisions in Grover Beach
Similar Listings Nearby
Property Summary
- Located in the Other (OTHR) subdivision, 100 W Ramona AV Lot 13 Grover Beach CA is a Townhouse for sale in Grover Beach, CA, 93433. It is listed for $1,400,000 and features 3 beds, 4 baths, and has approximately 1,967 square feet of living space, and was originally constructed in 2026. The current price per square foot is $712. The average price per square foot for Townhouse listings in Grover Beach is $712. The average listing price for Townhouse in Grover Beach is $1,400,000. To schedule a showing of MLS#pi25253107 at 100 W Ramona AV Lot 13 in Grover Beach, CA, contact your James Outland agent at 8057482262.
Courtesy of Coastal Community Builders. Disclaimer: All data relating to real estate for sale on this page comes from the Broker Reciprocity (BR) of the California Regional Multiple Listing Service. Detailed information about real estate listings held by brokerage firms other than James Outland include the name of the listing broker. Neither the listing company nor James Outland shall be responsible for any typographical errors, misinformation, misprints and shall be held totally harmless. The Broker providing this data believes it to be correct, but advises interested parties to confirm any item before relying on it in a purchase decision. Copyright 2025. California Regional Multiple Listing Service. All rights reserved. 100 W Ramona AV Lot 13
Grover Beach, CA

























