$10,000
1109 N Brand BL
Glendale, CA, 91202
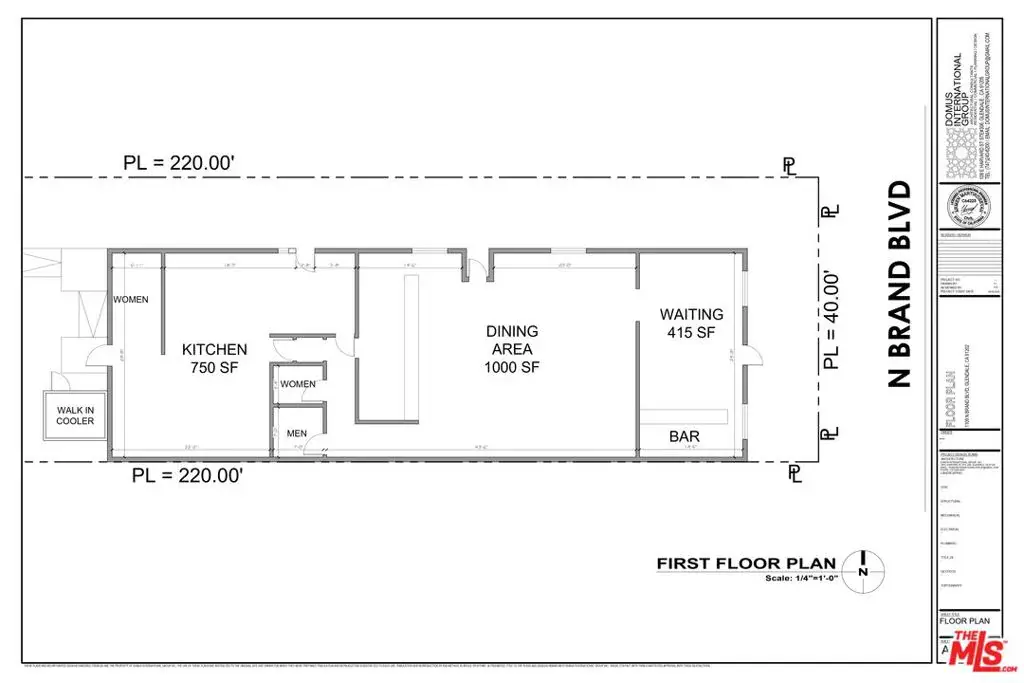
Position your concept within one of Glendale’s most recognizable restaurant addresses; a freestanding, high visibility commercial building steeped in local dining history along prestigious Brand Boulevard. Located moments from The Americana at Brand and the Downtown Brand corridor, the approximately 2,700 square foot space offers exceptional frontage, strong daily traffic counts, and immediate exposure to both daytime office activity and evening destination dining. Originally home to the beloved Gennaro’s Ristorante, an upscale Northern Italian landmark that operated for over three decades beginning in 1984, the property carries a rare legacy within the community. Known for its old-world elegance, formal atmosphere, and live piano evenings, the restaurant earned the prestigious AAA Four-Diamond Award for more than 10 consecutive years and became synonymous with celebratory dining in Glendale. The existing layout is currently built for food and beverage use and includes commercial kitchen infrastructure, bar area, dining room, and rear service access offering an ideal foundation for a restaurant, cafe, wine bar, lounge, or experiential retail concept. Dramatic ceiling detailing, expansive street facing windows, and a prominent storefront presence provide exceptional branding and signage visibility along Brand Boulevard. Surrounded by dense residential neighborhoods, established retailers, hospitality, and continuous pedestrian flow, the location benefits from both built in neighborhood familiarity and regional destination appeal. A rare opportunity to either reintroduce a celebrated dining destination or establish a new flagship concept within a historically significant Glendale address.
Property Details
Price:
$10,000
MLS #:
26653799
Status:
Active
Beds:
0
Baths:
0
Type:
Single Family
Neighborhood:
626glendalenorthwest
Listed Date:
Feb 18, 2026
Total Sq Ft:
2,700
Lot Size:
8,712 sqft / 0.20 acres (approx)
Year Built:
1950
Schools
Interior
Heating
FA
Exterior
Construction Materials
BRK
Financial
Get Out There, A Simply Outgoing Approach to Life. James Outland Jr. is one of those rare people who simply has an outgoing approach to life. No matter the activity… from dune buggy riding to skydiving to motorcycling to riding the local Pismo Beach waves… James Outland Jr. approaches life with a “just get out there and do it” kind of attitude. A zest for Life. James’ zest for life is obviously apparent in his many exciting hobbies. In his spare time, he loves riding dune buggies or hi…
More About JamesMortgage Calculator
Map
Current real estate data for Single Family in Glendale as of Apr 06, 2026
317
Single Family Listed
58
Avg DOM
297
Avg $ / SqFt
$951,489
Avg List Price
Community
- Address1109 N Brand BL Glendale CA
- CityGlendale
- CountyLos Angeles
- Zip Code91202
Similar Listings Nearby
Property Summary
- 1109 N Brand BL Glendale CA is a Single Family for sale in Glendale, CA, 91202. It is listed for $10,000 and features 0 beds, 0 baths, and has approximately 0 square feet of living space, and was originally constructed in 1950. The average price per square foot for Single Family listings in Glendale is $297. The average listing price for Single Family in Glendale is $951,489. To schedule a showing of MLS#26653799 at 1109 N Brand BL in Glendale, CA, contact your James Outland agent at 8057482262.
Courtesy of Tony Bagramyan. Disclaimer: All data relating to real estate for sale on this page comes from the Broker Reciprocity (BR) of the California Regional Multiple Listing Service. Detailed information about real estate listings held by brokerage firms other than James Outland include the name of the listing broker. Neither the listing company nor James Outland shall be responsible for any typographical errors, misinformation, misprints and shall be held totally harmless. The Broker providing this data believes it to be correct, but advises interested parties to confirm any item before relying on it in a purchase decision. Copyright 2026. California Regional Multiple Listing Service. All rights reserved. 1109 N Brand BL
Glendale, CA











