$595,000
1572 W Millbrae Avenue
Fresno, CA, 93711
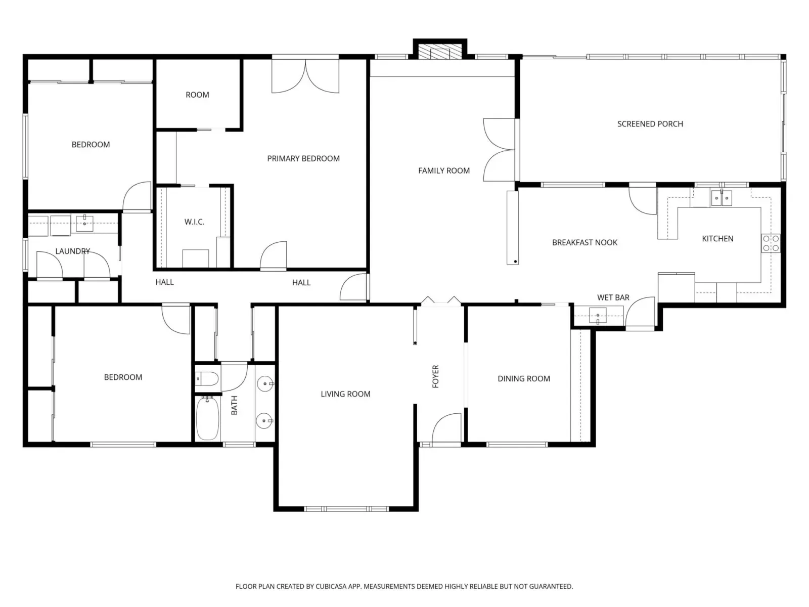
A beautifully maintained single-story Wathen Mansionette. Built in 1979, this traditional-style home offers 2,459 sq ft living area of thoughtfully designed living space on an expansive 14,098 sq ft lot. Inside, you’ll find a spacious living room, formal dining room, and inviting family room, plus an impressive 300+ sq ft sunroom that extends your living space, ideal for a playroom, home office, media room, or additional entertaining area. The kitchen provides abundant storage, double convection ovens, and a built-in microwave, perfectly suited for everyday living and hosting gatherings. Each of the three generously sized bedrooms offers ample closet space, while the oversized laundry room includes a convenient utility sink and storage closets. Step outside to a backyard designed for both comfort and function. Extended covered patio creates the perfect setting for outdoor dining and relaxation. Two additional storage rooms/craft spaces offer flexibility for hobbies or workspace needs. Custom stone accents for firepit area and brick fencing add warmth and character, while dual side-yard access and extra parking accommodate recreational vehicles or boats with ease. Additional highlights include epoxy flooring in the two-car garage and a prime location tucked into the neighborhood, just minutes from popular restaurants, shopping, and everyday conveniences. A rare opportunity to own a well-cared-for home with space, versatility, and timeless appeal.
Property Details
Price:
$595,000
MLS #:
240503
Status:
Active
Beds:
3
Baths:
1.75
Type:
Single Family
Subtype:
Single Family Residence
Listed Date:
Mar 21, 2026
Total Sq Ft:
2,459
Lot Size:
14,098 sqft / 0.32 acres (approx)
Year Built:
1979
Schools
Interior
Appliances
Disposal, Microwave, Oven
Bathrooms
1 Full Bathroom, 1 Three Quarter Bathroom
Cooling
Ceiling Fan(s), Central Air
Flooring
Carpet, Combination
Heating
Central, Natural Gas
Interior Features
Crown Molding, Kitchen Open to Family Room, Sunken Living Room, Tile Counters, Wet Bar
Laundry Features
Inside
Exterior
Common Walls
No Common Walls
Direction Faces
South
Garage Spaces
2
Lot Features
Back Yard, Irregular Lot, Near Public Transit
Other Structures
Shed(s)
Patio And Porch Features
Enclosed
Roof
Composition
Stories
1
View
Neighborhood
Financial
Get Out There, A Simply Outgoing Approach to Life. James Outland Jr. is one of those rare people who simply has an outgoing approach to life. No matter the activity… from dune buggy riding to skydiving to motorcycling to riding the local Pismo Beach waves… James Outland Jr. approaches life with a “just get out there and do it” kind of attitude. A zest for Life. James’ zest for life is obviously apparent in his many exciting hobbies. In his spare time, he loves riding dune buggies or hi…
More About JamesMortgage Calculator
Map
Current real estate data for Single Family in Fresno as of Apr 09, 2026
42
Single Family Listed
73
Avg DOM
$441,355
Avg List Price
Community
- Address1572 W Millbrae Avenue Fresno CA
- CityFresno
- CountyFresno
- Zip Code93711
Similar Listings Nearby
Property Summary
- 1572 W Millbrae Avenue Fresno CA is a Single Family for sale in Fresno, CA, 93711. It is listed for $595,000 and features 3 beds, 2 baths, and has approximately 0 square feet of living space, and was originally constructed in 1979. The average listing price for Single Family in Fresno is $441,355. To schedule a showing of MLS#240503 at 1572 W Millbrae Avenue in Fresno, CA, contact your James Outland agent at 8057482262.

1572 W Millbrae Avenue
Fresno, CA











































































