$659,000
5216 Yarmouth #107
Encino, CA, 91316
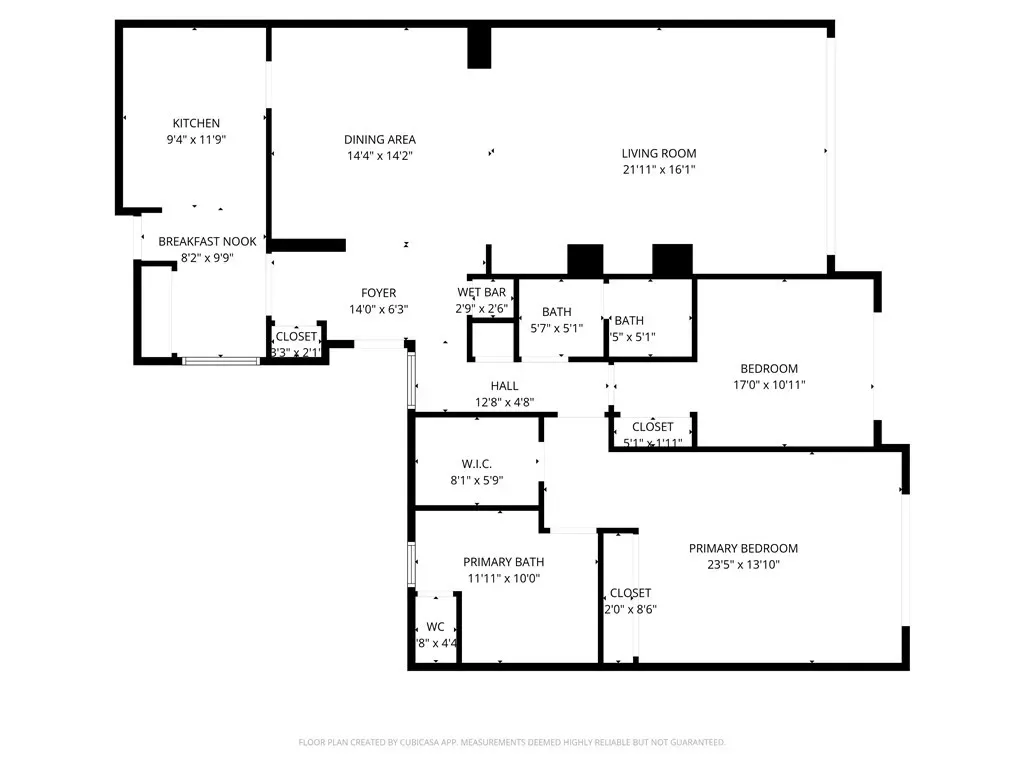
Welcome to Encino Spa South – This beautiful 2 bedroom 2 bath updated condominium is turnkey, generously sized, west facing, single-story and has only one shared wall. Features include a fabulous granite kitchen with Kitchen-Aid stainless steel appliances, breakfast area, coffee bar or desk area, and a newer stackable washer and dryer unit. Adjacent to the kitchen is a formal dining area that overlooks the living room and opens to the main balcony. The oversized primary suite with balcony is complete with plantation shutters, walk-in closet, large bypass closet, and both closets are equipped with organizers. There is also a floor to ceiling custom cabinet with adjustable shelves. The luxurious primary resort-style bathroom has a deep soaking tub, separate shower, and a custom-made vanity with a quartz counter. The guest bedroom (currently being used as an office) has a large built-in desk area and bookcase.
Other special highlights include, LED recessed lighting, rich looking luxury vinyl flooring, custom window treatments in the living room, kitchen, hall and primary bathroom, interior doors that were replaced using precision-measured technology, and all windows and sliding doors were also replaced.
The complex has secured parking, meandering walkways, community pool, spas, gym, sauna, rec room and guest parking. The HOA fee covers the maintenance for the amenities, water, reduced internet/cable/phone service and earthquake insurance. The unit has two tandem parking spots in the most convenient location and a private lockable storage cage.
The property is conveniently located near major shopping, restaurants, medical and community facilities, public transportation, and freeways.
Other special highlights include, LED recessed lighting, rich looking luxury vinyl flooring, custom window treatments in the living room, kitchen, hall and primary bathroom, interior doors that were replaced using precision-measured technology, and all windows and sliding doors were also replaced.
The complex has secured parking, meandering walkways, community pool, spas, gym, sauna, rec room and guest parking. The HOA fee covers the maintenance for the amenities, water, reduced internet/cable/phone service and earthquake insurance. The unit has two tandem parking spots in the most convenient location and a private lockable storage cage.
The property is conveniently located near major shopping, restaurants, medical and community facilities, public transportation, and freeways.
Property Details
Price:
$659,000
MLS #:
SR26066698
Status:
Active
Beds:
2
Baths:
2
Type:
Condo
Subtype:
Condominium
Neighborhood:
encencino
Listed Date:
Mar 27, 2026
Finished Sq Ft:
1,617
Lot Size:
222,344 sqft / 5.10 acres (approx)
Year Built:
1974
Schools
School District:
Los Angeles Unified
Elementary School:
Nestle
Middle School:
Portola
High School:
Reseda
Interior
Appliances
DW, GD, IM, MW, RF, TC, WLR, ESA, ES, EO, CO, SCO, VEF
Bathrooms
2 Full Bathrooms
Cooling
CA, ELC, HP
Flooring
TILE, VINY
Heating
HP, CF
Interior Features
BI, CF, WB, BAR, TND, GRNC, STNC, LRBA, PTRY, BL
Laundry Features
ELC, IN, STK, DINC, WINC
Levels
A
Main Level Bathrooms
2
Main Level Bedrooms
2
Exterior
Accessibility Features
NIS
Architectural Style
TRD
Common Walls
NOB, _1CW
Community Features
SDW, SL, CRB
Construction Materials
STC, WOD
Direction Faces
W
Garage Spaces
2
Parking Spots
2
Parking Total
2
Patio And Porch Features
SEE
Roof
FLTR
Security Features
SD, AG, COD, CRD, GC
Spa Features
COM
View
CY, NE
Window Features
PLS, SCR, DPW
Financial
HOA Fee
$655
HOA Fee Frequency
MO
Get Out There, A Simply Outgoing Approach to Life. James Outland Jr. is one of those rare people who simply has an outgoing approach to life. No matter the activity… from dune buggy riding to skydiving to motorcycling to riding the local Pismo Beach waves… James Outland Jr. approaches life with a “just get out there and do it” kind of attitude. A zest for Life. James’ zest for life is obviously apparent in his many exciting hobbies. In his spare time, he loves riding dune buggies or hi…
More About JamesMortgage Calculator
Map
Community
- Address5216 Yarmouth #107 Encino CA
- CityEncino
- CountyLos Angeles
- Zip Code91316
Similar Listings Nearby
Property Summary
- 5216 Yarmouth #107 Encino CA is a Condo for sale in Encino, CA, 91316. It is listed for $659,000 and features 2 beds, 2 baths, and has approximately 1,617 square feet of living space, and was originally constructed in 1974. The current price per square foot is $408. The average price per square foot for Condo listings in Encino is $425. The average listing price for Condo in Encino is $559,518. To schedule a showing of MLS#sr26066698 at 5216 Yarmouth #107 in Encino, CA, contact your James Outland agent at 8057482262.
Courtesy of Rodeo Realty. Disclaimer: All data relating to real estate for sale on this page comes from the Broker Reciprocity (BR) of the California Regional Multiple Listing Service. Detailed information about real estate listings held by brokerage firms other than James Outland include the name of the listing broker. Neither the listing company nor James Outland shall be responsible for any typographical errors, misinformation, misprints and shall be held totally harmless. The Broker providing this data believes it to be correct, but advises interested parties to confirm any item before relying on it in a purchase decision. Copyright 2026. California Regional Multiple Listing Service. All rights reserved. 5216 Yarmouth #107
Encino, CA




































