$2,500
11418 Garvey AV
El Monte, CA, 91732
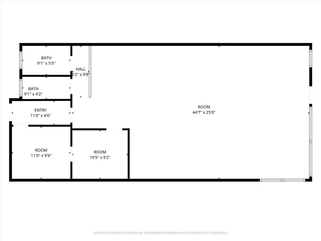
This is an incredible opportunity to lease a free-standing building in a high-visibility location in El Monte. With 1,462 sq. ft. of gross leasable area, this versatile space is ideal for retail businesses or any company looking for an open floor plan. There is an electric sign that is included, upgraded electrical throughout. The property features two office spaces in the back that provide privacy for administrative tasks or operations. It also includes two restrooms for convenience, making it suitable for both staff and customer use. It has a new HVAC system and new windows will be installed. Located in a high-traffic area, this building offers excellent visibility for your business, ensuring plenty of foot traffic and exposure. Additionally, trash service is included in the lease, making it even more convenient. This space is perfect for a retail store, boutique, salon, tax peparer or small office. Don’t miss out on this fantastic opportunity to secure a prime location in El Monte!
Property Details
Price:
$2,500
MLS #:
CV25251975
Status:
Active
Beds:
0
Baths:
0
Type:
Single Family
Subtype:
Business
Neighborhood:
619elmonte
Listed Date:
Nov 1, 2025
Total Sq Ft:
1,462
Lot Size:
5,000 sqft / 0.11 acres (approx)
Year Built:
1973
Schools
Interior
Cooling
CA
Heating
WL, CF
Exterior
Parking Spots
5
Parking Total
5
Security Features
SD, WB
Financial
Get Out There, A Simply Outgoing Approach to Life. James Outland Jr. is one of those rare people who simply has an outgoing approach to life. No matter the activity… from dune buggy riding to skydiving to motorcycling to riding the local Pismo Beach waves… James Outland Jr. approaches life with a “just get out there and do it” kind of attitude. A zest for Life. James’ zest for life is obviously apparent in his many exciting hobbies. In his spare time, he loves riding dune buggies or hi…
More About JamesMortgage Calculator
Map
Current real estate data for Single Family in El Monte as of Apr 07, 2026
164
Single Family Listed
131
Avg DOM
320
Avg $ / SqFt
$675,252
Avg List Price
Community
- Address11418 Garvey AV El Monte CA
- CityEl Monte
- CountyLos Angeles
- Zip Code91732
Similar Listings Nearby
Property Summary
- 11418 Garvey AV El Monte CA is a Single Family for sale in El Monte, CA, 91732. It is listed for $2,500 and features 0 beds, 0 baths, and has approximately 0 square feet of living space, and was originally constructed in 1973. The average price per square foot for Single Family listings in El Monte is $320. The average listing price for Single Family in El Monte is $675,252. To schedule a showing of MLS#cv25251975 at 11418 Garvey AV in El Monte, CA, contact your James Outland agent at 8057482262.
Courtesy of KELLER WILLIAMS PREMIER PROPER. Disclaimer: All data relating to real estate for sale on this page comes from the Broker Reciprocity (BR) of the California Regional Multiple Listing Service. Detailed information about real estate listings held by brokerage firms other than James Outland include the name of the listing broker. Neither the listing company nor James Outland shall be responsible for any typographical errors, misinformation, misprints and shall be held totally harmless. The Broker providing this data believes it to be correct, but advises interested parties to confirm any item before relying on it in a purchase decision. Copyright 2026. California Regional Multiple Listing Service. All rights reserved. 11418 Garvey AV
El Monte, CA



























