$699,998
186 Minnesota AV
El Cajon, CA, 92020
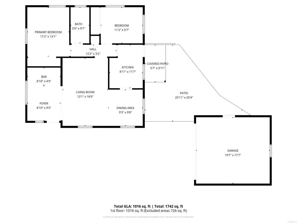
Fully Remodeled and Upgraded in 2015 Single-Level Home at 186 Minnesota Ave, El Cajon, CA Move-in ready and thoughtfully updated, this 2-bedroom, 1-bathroom home offers 983 sq ft of comfortable living space on a generous 7,000 sq ft level lot. *The Home* Completely remodeled in 2015, this single-level residence features real hardwood floors, central heat and AC, and a tankless water heater for endless hot water. All appliances stay, making your move effortless. *The Lot & Potential* The spacious lot provides excellent expansion/addition opportunities, including potential for an ADU. A detached 2-car garage includes laundry hookups, while the long driveway and garage orientation and separation from the home allows for easy backyard access. Additional covered concrete pad offers extra parking options. *The Highlights* Fully remodeled (2015) Real hardwood floors throughout Tankless water heater Central heat & AC All appliances included 7,000 sq ft lot with ADU potential Detached 2-car garage with laundry Additional covered flex use or parking area Ready to move in, room to grow.
Property Details
Price:
$699,998
MLS #:
PTP2600017
Status:
Active Under Contract
Beds:
2
Baths:
1
Type:
Single Family
Subtype:
Single Family Residence
Neighborhood:
92020elcajon
Listed Date:
Jan 9, 2026
Finished Sq Ft:
983
Lot Size:
6,970 sqft / 0.16 acres (approx)
Year Built:
1951
Schools
School District:
Cajon Valley Union
Interior
Bathrooms
1 Full Bathroom
Cooling
CA
Flooring
TILE, VINY, WOOD
Heating
CF
Laundry Features
IG
Exterior
Architectural Style
TRD
Community Features
SUB, URB
Other Structures
SBL, OB, SH
Parking Spots
5
Roof
ASP
Financial
Get Out There, A Simply Outgoing Approach to Life. James Outland Jr. is one of those rare people who simply has an outgoing approach to life. No matter the activity… from dune buggy riding to skydiving to motorcycling to riding the local Pismo Beach waves… James Outland Jr. approaches life with a “just get out there and do it” kind of attitude. A zest for Life. James’ zest for life is obviously apparent in his many exciting hobbies. In his spare time, he loves riding dune buggies or hi…
More About JamesMortgage Calculator
Map
Current real estate data for Single Family in El Cajon as of Feb 13, 2026
238
Single Family Listed
66
Avg DOM
377
Avg $ / SqFt
$734,110
Avg List Price
Community
- Address186 Minnesota AV El Cajon CA
- CityEl Cajon
- CountySan Diego
- Zip Code92020
Similar Listings Nearby
Property Summary
- 186 Minnesota AV El Cajon CA is a Single Family for sale in El Cajon, CA, 92020. It is listed for $699,998 and features 2 beds, 1 baths, and has approximately 983 square feet of living space, and was originally constructed in 1951. The current price per square foot is $712. The average price per square foot for Single Family listings in El Cajon is $377. The average listing price for Single Family in El Cajon is $734,110. To schedule a showing of MLS#ptp2600017 at 186 Minnesota AV in El Cajon, CA, contact your James Outland agent at 8057482262.
Courtesy of Compass. Disclaimer: All data relating to real estate for sale on this page comes from the Broker Reciprocity (BR) of the California Regional Multiple Listing Service. Detailed information about real estate listings held by brokerage firms other than James Outland include the name of the listing broker. Neither the listing company nor James Outland shall be responsible for any typographical errors, misinformation, misprints and shall be held totally harmless. The Broker providing this data believes it to be correct, but advises interested parties to confirm any item before relying on it in a purchase decision. Copyright 2026. California Regional Multiple Listing Service. All rights reserved. 186 Minnesota AV
El Cajon, CA

















































