$12,500,000
23502 Seaward Isle
Dana Point, CA, 92629
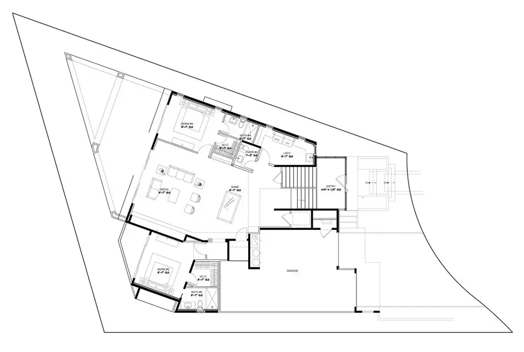
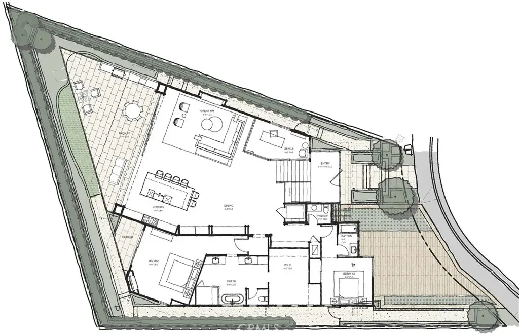
*NEW CONSTRUCTION* (TO BE COMPLETED FEBRUARY 2026) This shall be an exquisite custom “White Water, Sand, Ocean View” home located in the exclusive 24-hour guard gated Oceanfront Community of Niguel Shores. This custom residence to be built by “Nicholson Companies” of Newport Beach contains approximately 4624 sqft, 4 bedroom, 4 full bath & 2 “1/2 baths”, in addition, this custom-built home contains an approximate 500sqft “California Room”. This residence is designed to maximize Southern California lifestyle with “indoor/outdoor“ living & stunning ocean views! This open & spacious floorplan will feature a “great room“ with uninterrupted views through a wall of multi panel, sliding glass doors!… The “main floor master suite “possesses outstanding, ocean views, contemporary fireplace, generously sized walk-in closet, spa-like bath, freestanding soaking tub, Kohler faucets and toilets, and a “frameless clear glass shower enclosure”. The Gourmet “center island kitchen” will feature “Miele” appliances inclusive of refrigerator & freezer, 48” 8-burner gas range with integrated microwave and warming drawer, dishwasher as well as “quartz “counters, undercabinet lighting, and custom cabinetry with selected pulls from Emtek! Additional interior features will include soffit & elevated ceilings, wire-brushed white oak engineered hardwood flooring throughout, hardwood stair treads & risers with custom steel or wood rail system, 8-foot solid core interior doors, 6-inch baseboards… Custom elevator, a second contemporary linear fireplace in the living/dining area, interior sprinkler system, Epoxy covered coating & prep for “e-charger” in 3-car garage, CAT7 ethernet wire, professionally designed DCS security system with touchscreen panels & security sensors throughout, energy efficient HVAC air conditioning system, HEPA air filtration system, air quality sensor technology, smartphone app technology, reverse osmosis drinking water & whole home water filtration system. Exterior features will include a smooth stucco exterior, custom oversize front door system, with complimenting garage doors. Exterior landscaping will be inclusive of professional planting of all yard areas, automatic irrigation & drainage system, custom landscape lighting package, and a 36-inch built-in barbecue. This custom built residence will share a cul-de-sac location with only 3 additional homes. Walking distance to the Pacific Ocean & surfing breaks are minutes away! Truly an incredible opportunity!!
Property Details
Price:
$12,500,000
MLS #:
OC25247092
Status:
Active
Beds:
4
Baths:
6
Type:
Single Family
Subtype:
Single Family Residence
Subdivision:
Niguel Shores Custom NSC
Neighborhood:
mbmonarchbeach
Listed Date:
Jan 13, 2026
Finished Sq Ft:
4,624
Lot Size:
5,270 sqft / 0.12 acres (approx)
Year Built:
2025
Schools
School District:
Capistrano Unified
Interior
Appliances
DW, FZ, MW, GR, EO, WOD
Bathrooms
4 Full Bathrooms, 2 Half Bathrooms
Cooling
CA, ES
Flooring
WOOD
Heating
CF
Laundry Features
GE, IR, IN, WH
Exterior
Architectural Style
MOD, CB
Community Features
SDW, SL, CRB, CW
Construction Materials
STC
Parking Spots
3
Roof
FLTR
Security Features
EXL, SD, _24HR, COD, FSDS, GC, GG, GA
Financial
HOA Fee
$373
HOA Frequency
MO
Get Out There, A Simply Outgoing Approach to Life. James Outland Jr. is one of those rare people who simply has an outgoing approach to life. No matter the activity… from dune buggy riding to skydiving to motorcycling to riding the local Pismo Beach waves… James Outland Jr. approaches life with a “just get out there and do it” kind of attitude. A zest for Life. James’ zest for life is obviously apparent in his many exciting hobbies. In his spare time, he loves riding dune buggies or hi…
More About JamesMortgage Calculator
Map
Current real estate data for Single Family in Dana Point as of Feb 13, 2026
255
Single Family Listed
101
Avg DOM
477
Avg $ / SqFt
$1,822,864
Avg List Price
Community
- Address23502 Seaward Isle Dana Point CA
- SubdivisionNiguel Shores Custom (NSC)
- CityDana Point
- CountyOrange
- Zip Code92629
Similar Listings Nearby
Property Summary
- Located in the Niguel Shores Custom (NSC) subdivision, 23502 Seaward Isle Dana Point CA is a Single Family for sale in Dana Point, CA, 92629. It is listed for $12,500,000 and features 4 beds, 6 baths, and has approximately 4,624 square feet of living space, and was originally constructed in 2025. The current price per square foot is $2,703. The average price per square foot for Single Family listings in Dana Point is $477. The average listing price for Single Family in Dana Point is $1,822,864. To schedule a showing of MLS#oc25247092 at 23502 Seaward Isle in Dana Point, CA, contact your James Outland agent at 8057482262.
Courtesy of Harcourts Prime Properties. Disclaimer: All data relating to real estate for sale on this page comes from the Broker Reciprocity (BR) of the California Regional Multiple Listing Service. Detailed information about real estate listings held by brokerage firms other than James Outland include the name of the listing broker. Neither the listing company nor James Outland shall be responsible for any typographical errors, misinformation, misprints and shall be held totally harmless. The Broker providing this data believes it to be correct, but advises interested parties to confirm any item before relying on it in a purchase decision. Copyright 2026. California Regional Multiple Listing Service. All rights reserved. 23502 Seaward Isle
Dana Point, CA























