$1,845,000
12 Coastal Oak
Coto de Caza, CA, 92679
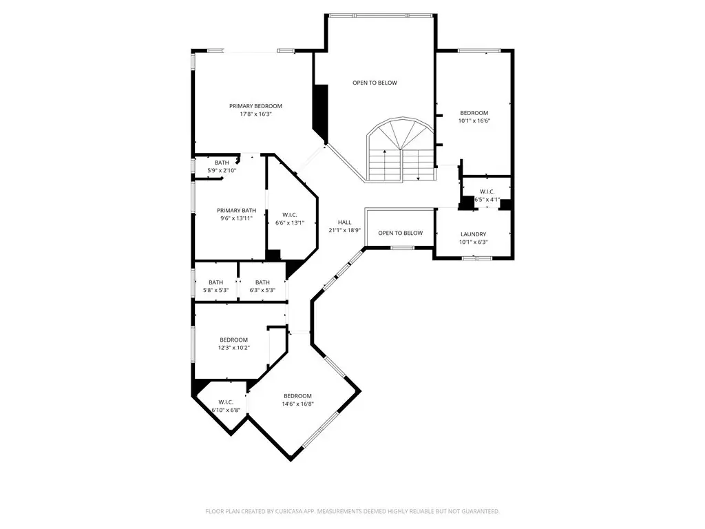
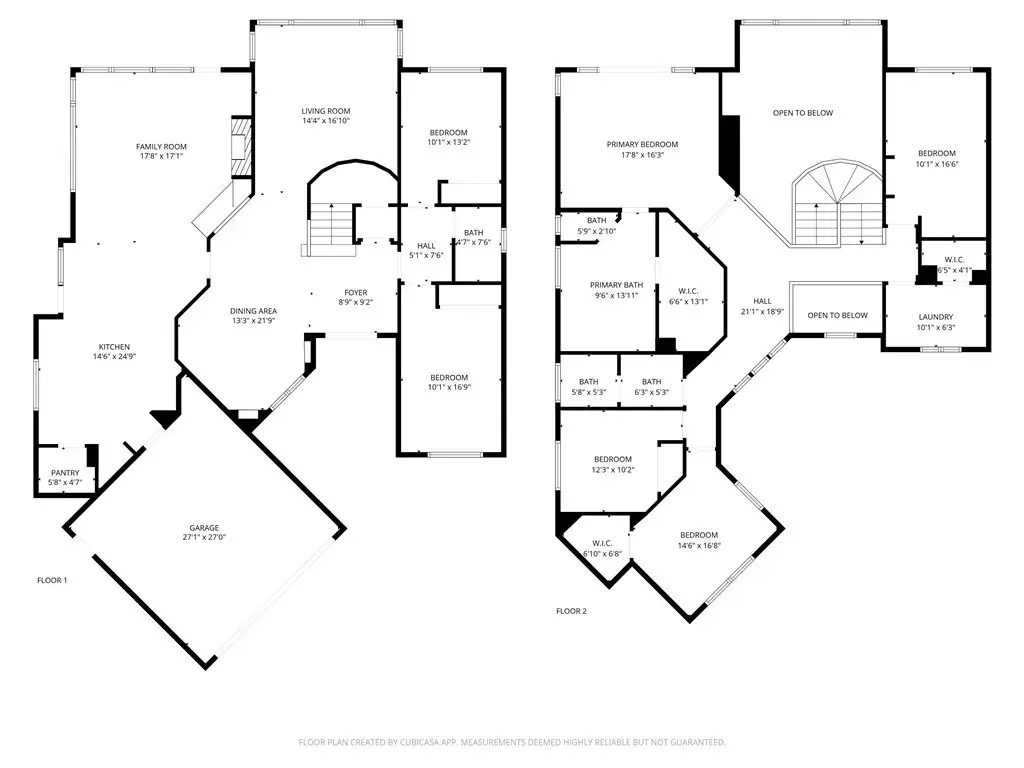
Located on a quiet cul-de-sac within the guard-gated community of Coto de Caza, this turnkey home offers privacy, resort-style outdoor living, and close access to trails, golf, and equestrian amenities. Ideal for buyers seeking a peaceful street in one of Orange County’s premier master-planned communities. The home features 5 bedrooms with an option for a sixth, 3 full bathrooms, and a functional layout with two bedrooms and a full bath downstairs. Two living rooms provide versatile spaces — one beneath the spiral staircase and another open to the kitchen with a fireplace, perfect for gatherings. The open-concept kitchen includes a center island, newer GE stainless steel appliances (refrigerator, double oven, and four-burner cooktop), totaling three ovens—ideal for hosting and holidays. Upstairs are four additional bedrooms and a laundry room with gas and electric hookups, a utility sink, and a large linen closet. The primary suite offers a private deck, soaking tub, separate shower, dual sinks, and a walk-in closet. The backyard is designed for entertaining with a pool, spa, firepit, BBQ island, and outdoor dining area. Additional highlights include built-ins, newer luxury vinyl flooring, recessed lighting, and custom crown molding and baseboards. Residents enjoy proximity to the Coto de Caza Golf & Racquet Club, offering two 18-hole championship courses, tennis courts, fitness facilities, and fine dining. Conveniently located near top-rated schools, shopping, and dining, the property backs to a private lot.
Property Details
Price:
$1,845,000
MLS #:
OC25238133
Status:
Active
Beds:
6
Baths:
3
Type:
Single Family
Subtype:
Single Family Residence
Neighborhood:
cccotodecaza
Listed Date:
Jan 15, 2026
Finished Sq Ft:
3,053
Lot Size:
7,400 sqft / 0.17 acres (approx)
Year Built:
1997
Schools
School District:
Capistrano Unified
Middle School:
Las Flores
High School:
Tesoro
Interior
Appliances
DW, MW, RF, GER, HOD, VEF
Bathrooms
3 Full Bathrooms
Cooling
CA
Flooring
VINY, CARP
Heating
FA
Laundry Features
ELC, GE, IR, UL
Exterior
Community Features
SDW, SL, CRB, CW, GOLF
Construction Materials
STC
Exterior Features
BQ
Other Structures
SBL
Parking Spots
2
Roof
CMP
Security Features
SD, COD, GA
Financial
HOA Fee
$351
HOA Frequency
MO
Get Out There, A Simply Outgoing Approach to Life. James Outland Jr. is one of those rare people who simply has an outgoing approach to life. No matter the activity… from dune buggy riding to skydiving to motorcycling to riding the local Pismo Beach waves… James Outland Jr. approaches life with a “just get out there and do it” kind of attitude. A zest for Life. James’ zest for life is obviously apparent in his many exciting hobbies. In his spare time, he loves riding dune buggies or hi…
More About JamesMortgage Calculator
Map
Current real estate data for Single Family in Coto de Caza as of Feb 13, 2026
59
Single Family Listed
47
Avg DOM
601
Avg $ / SqFt
$3,629,908
Avg List Price
Community
- Address12 Coastal Oak Coto de Caza CA
- SubdivisionOther (OTHR)
- CityCoto de Caza
- CountyOrange
- Zip Code92679
Similar Listings Nearby
Property Summary
- Located in the Other (OTHR) subdivision, 12 Coastal Oak Coto de Caza CA is a Single Family for sale in Coto de Caza, CA, 92679. It is listed for $1,845,000 and features 6 beds, 3 baths, and has approximately 3,053 square feet of living space, and was originally constructed in 1997. The current price per square foot is $604. The average price per square foot for Single Family listings in Coto de Caza is $601. The average listing price for Single Family in Coto de Caza is $3,629,908. To schedule a showing of MLS#oc25238133 at 12 Coastal Oak in Coto de Caza, CA, contact your James Outland agent at 8057482262.
Courtesy of Coldwell Banker Realty. Disclaimer: All data relating to real estate for sale on this page comes from the Broker Reciprocity (BR) of the California Regional Multiple Listing Service. Detailed information about real estate listings held by brokerage firms other than James Outland include the name of the listing broker. Neither the listing company nor James Outland shall be responsible for any typographical errors, misinformation, misprints and shall be held totally harmless. The Broker providing this data believes it to be correct, but advises interested parties to confirm any item before relying on it in a purchase decision. Copyright 2026. California Regional Multiple Listing Service. All rights reserved. 12 Coastal Oak
Coto de Caza, CA


































































