$1,799,000
627 Cardiff Reef
Costa Mesa, CA, 92627
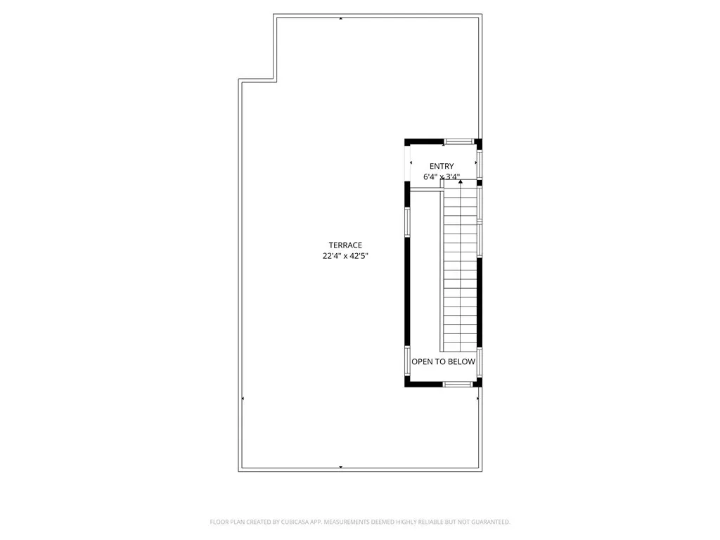
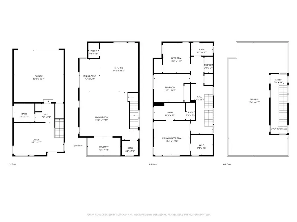
Welcome to this exclusive live/work DETACHED contemporary residence, perfectly positioned on a prime corner lot. This stunning home offers the best of urban convenience with coastal charm, close to premier shopping, dining, and major freeways. Designed for versatility, this home features 3 bedrooms, 4 bathrooms, and a flexible first-level space ideal for a private office or den—perfect for working from home or hosting clients. A 2-car attached garage with epoxy flooring, and a side yard with storage for bikes and trash cans add both function and convenience. The second level showcases an open-concept living space filled with natural light. The spacious living and dining areas flow seamlessly into a beautifully appointed kitchen featuring a large center island for entertaining, stone countertops, stainless steel appliances, and a walk-in pantry. On the third level, you’ll find three well-sized bedrooms, two bathrooms, a convenient laundry area, and abundant storage. The primary suite offers a generous walk-in closet and an ensuite bathroom complete with dual sinks, and a large walk-in shower. One of the standout features of this home is the expansive covered rooftop deck, which offers additional outdoor living space, complete with a built-in outdoor kitchen, and mounted TV. It’s the ideal setting to relax and enjoy city lights and breathtaking sunset views year-round. Enjoy low HOA dues and close proximity to restaurants and shopping, John Wayne Airport, Newport Beach, top-rated Newport schools, and the 55 and 405 freeways. This is coastal contemporary living at its finest—where style, flexibility, and location come together seamlessly.
Property Details
Price:
$1,799,000
MLS #:
OC26046289
Status:
Active
Beds:
3
Baths:
4
Type:
Condo
Subtype:
Condominium
Neighborhood:
c2southwestcostamesa
Listed Date:
Mar 24, 2026
Finished Sq Ft:
2,303
Lot Size:
87,687 sqft / 2.01 acres (approx)
Year Built:
2019
Schools
School District:
Newport Mesa Unified
Elementary School:
Newport Heights
Middle School:
Horace Ensign
High School:
Newport Harbor
Interior
Appliances
DW, GD, MW, RF, GS, EO, TW
Bathrooms
2 Full Bathrooms, 2 Half Bathrooms
Cooling
CA
Flooring
TILE, VINY
Heating
CF
Interior Features
CF, HA, STNC, LRBA, OFP, HCEL
Laundry Features
ICL, UL, DINC, WINC
Levels
C
Main Level Bathrooms
1
Exterior
Architectural Style
MOD
Attached Garage YN
1
Common Walls
NCW
Community Features
URB
Construction Materials
STC
Exterior Features
BQ
Garage Spaces
2
Parking Spots
2
Parking Total
2
Patio And Porch Features
CO, DK, RT
Roof
FLTR
Security Features
SD, COD, FS
Spa Features
NO
View
CI, MT, PA, PE
Window Features
CWC, DPC
Financial
HOA Fee
$114
HOA Fee Frequency
MO
Get Out There, A Simply Outgoing Approach to Life. James Outland Jr. is one of those rare people who simply has an outgoing approach to life. No matter the activity… from dune buggy riding to skydiving to motorcycling to riding the local Pismo Beach waves… James Outland Jr. approaches life with a “just get out there and do it” kind of attitude. A zest for Life. James’ zest for life is obviously apparent in his many exciting hobbies. In his spare time, he loves riding dune buggies or hi…
More About JamesMortgage Calculator
Map
Current real estate data for Condo in Costa Mesa as of Apr 06, 2026
26
Condo Listed
45
Avg DOM
723
Avg $ / SqFt
$1,068,788
Avg List Price
Community
- Address627 Cardiff Reef Costa Mesa CA
- SubdivisionOther (OTHR)
- CityCosta Mesa
- CountyOrange
- Zip Code92627
Similar Listings Nearby
Property Summary
- Located in the Other (OTHR) subdivision, 627 Cardiff Reef Costa Mesa CA is a Condo for sale in Costa Mesa, CA, 92627. It is listed for $1,799,000 and features 3 beds, 4 baths, and has approximately 2,303 square feet of living space, and was originally constructed in 2019. The current price per square foot is $781. The average price per square foot for Condo listings in Costa Mesa is $723. The average listing price for Condo in Costa Mesa is $1,068,788. To schedule a showing of MLS#oc26046289 at 627 Cardiff Reef in Costa Mesa, CA, contact your James Outland agent at 8057482262.
Courtesy of Compass. Disclaimer: All data relating to real estate for sale on this page comes from the Broker Reciprocity (BR) of the California Regional Multiple Listing Service. Detailed information about real estate listings held by brokerage firms other than James Outland include the name of the listing broker. Neither the listing company nor James Outland shall be responsible for any typographical errors, misinformation, misprints and shall be held totally harmless. The Broker providing this data believes it to be correct, but advises interested parties to confirm any item before relying on it in a purchase decision. Copyright 2026. California Regional Multiple Listing Service. All rights reserved. 627 Cardiff Reef
Costa Mesa, CA
























































