$1,468,000
14400 Belhaven
Chino, CA, 91710
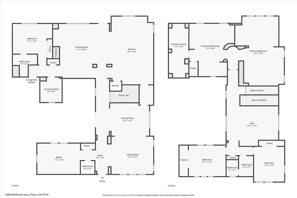
Welcome to this exquisite Craftsman style estate in the well desired College park Community of Chino. Boasting over 4200 square feet of living space. This 5 bedroom, 3 full bath and 1 1/2 bath residence is a harmonious blend of classic charm and modern luxury. The living area downstairs features gorgeous coffered ceilings for an elegant finish. There is a library area downstairs making it perfect to conduct business as a home office. The large and open chefs kitchen area is another inviting feature for those who want to entertain with an oversized island and a breakfast bar that can be fit for large gatherings. The butler’s pantry is a wonderful addition! Discover timeless elegance in every detail, from the handcrafted woodwork to the gourmet kitchen. There is one bedroom downstairs with a full bathroom suite, and three upstairs with one primary bedroom suite. The primary bedroom suite has a sizable walk-in closet with a full size bath tub and shower area along with double sink counters. The loft area upstairs can be used for a home theater or a multipurpose area. Nestled on a sprawling lot exceeding 10,000 sq ft, the home features meticulous craftsmanship, spacious interiors, and a seamless fusion of indoor and outdoor living. Backyard, which is ideal for fruit trees and various plants, should you desire, is accessible with a patio door from the living room. The patio area makes it perfect as a serving point to host gatherings for family and friends with its mature trees offering privacy. Beyond its elegant confines, residents enjoy access to several community amenities that enhance the overall lifestyle.HOA amenities include a full size Club House, professionally equipped 24 hour gym, tennis courts, two swimming pools, ping pong and pool tables and walking trails. This location is prime and offers easy access to the 60 and 71 freeways and not to mention only minutes away from Chino Spectrum and the Shoppes at Chino Hills! Surrounded by several great eateries and shopping selections, Welcome to a home where exclusivity meets community, creating an unparalleled living experience the charm of a Craftsman lifestyle in this truly exceptional property.
Property Details
Price:
$1,468,000
MLS #:
CV25125965
Status:
Active
Beds:
4
Baths:
3
Type:
Single Family
Subtype:
Single Family Residence
Neighborhood:
681chino
Listed Date:
Dec 20, 2025
Finished Sq Ft:
4,278
Lot Size:
10,095 sqft / 0.23 acres (approx)
Year Built:
2008
Schools
School District:
Chino Valley Unified
Elementary School:
Rhodes
Middle School:
Canyon Hills
High School:
Ayala
Interior
Appliances
DW, GS
Bathrooms
3 Full Bathrooms
Cooling
CA
Flooring
LAM
Heating
CF
Laundry Features
GAS, IN
Exterior
Architectural Style
CRF
Community Features
SDW, BIKI
Other Structures
SEGAD
Parking Spots
4
Roof
TLE
Security Features
COD
Financial
HOA Fee
$215
HOA Frequency
MO
Get Out There, A Simply Outgoing Approach to Life. James Outland Jr. is one of those rare people who simply has an outgoing approach to life. No matter the activity… from dune buggy riding to skydiving to motorcycling to riding the local Pismo Beach waves… James Outland Jr. approaches life with a “just get out there and do it” kind of attitude. A zest for Life. James’ zest for life is obviously apparent in his many exciting hobbies. In his spare time, he loves riding dune buggies or hi…
More About JamesMortgage Calculator
Map
Current real estate data for Single Family in Chino as of Feb 13, 2026
149
Single Family Listed
58
Avg DOM
327
Avg $ / SqFt
$640,634
Avg List Price
Community
- Address14400 Belhaven Chino CA
- CityChino
- CountySan Bernardino
- Zip Code91710
Similar Listings Nearby
Property Summary
- 14400 Belhaven Chino CA is a Single Family for sale in Chino, CA, 91710. It is listed for $1,468,000 and features 4 beds, 3 baths, and has approximately 4,278 square feet of living space, and was originally constructed in 2008. The current price per square foot is $343. The average price per square foot for Single Family listings in Chino is $327. The average listing price for Single Family in Chino is $640,634. To schedule a showing of MLS#cv25125965 at 14400 Belhaven in Chino, CA, contact your James Outland agent at 8057482262.
Courtesy of The Real Estate Resource Group. Disclaimer: All data relating to real estate for sale on this page comes from the Broker Reciprocity (BR) of the California Regional Multiple Listing Service. Detailed information about real estate listings held by brokerage firms other than James Outland include the name of the listing broker. Neither the listing company nor James Outland shall be responsible for any typographical errors, misinformation, misprints and shall be held totally harmless. The Broker providing this data believes it to be correct, but advises interested parties to confirm any item before relying on it in a purchase decision. Copyright 2026. California Regional Multiple Listing Service. All rights reserved. 14400 Belhaven
Chino, CA



















































