$3,300
2068 Talbert DR #100
Chico, CA, 95928
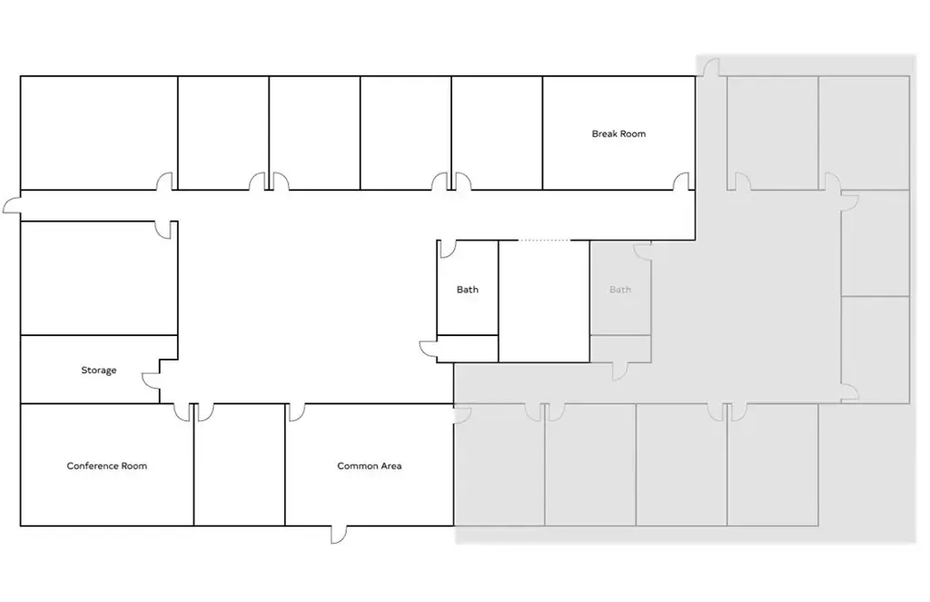
This office suite Built in 2001 is fabulously remodeled with a modern look, this office includes 8 private offices, a conference room, a breakroom, a copy room, a large work area, storage closets, and a private restroom. Forest Ave Office Park across from Wittmeier Auto Center. Plenty of parking, professional office, convenient locate in South Chico. next to AAA office. Other features, Security System, Signage, Kitchen Storage Space, Central Heating, Fully Carpeted, Natural Light, Air Conditioned. Near Walmart and easy access to highway 99. ADA accessible, exterior lighting, has back gate lock. This office has a large waiting area, 8 private offices, a conference room, a breakroom, 2 storage closet and a private bathroom, executive style tables and chairs. The office can come furnished with executive-style tables, chairs, and desks if desired. For information give us a call!
Property Details
Price:
$3,300
MLS #:
SN25055329
Status:
Active
Beds:
0
Baths:
0
Type:
Single Family
Subtype:
Office
Listed Date:
Mar 16, 2025
Total Sq Ft:
2,792
Lot Size:
20,909 sqft / 0.48 acres (approx)
Year Built:
2001
Schools
Interior
Cooling
CA
Heating
CF
Exterior
Security Features
COD
Financial
Get Out There, A Simply Outgoing Approach to Life. James Outland Jr. is one of those rare people who simply has an outgoing approach to life. No matter the activity… from dune buggy riding to skydiving to motorcycling to riding the local Pismo Beach waves… James Outland Jr. approaches life with a “just get out there and do it” kind of attitude. A zest for Life. James’ zest for life is obviously apparent in his many exciting hobbies. In his spare time, he loves riding dune buggies or hi…
More About JamesMortgage Calculator
Map
Current real estate data for Single Family in Chico as of Feb 14, 2026
317
Single Family Listed
83
Avg DOM
281
Avg $ / SqFt
$383,336
Avg List Price
Community
- Address2068 Talbert DR #100 Chico CA
- CityChico
- CountyButte
- Zip Code95928
Similar Listings Nearby
Property Summary
- 2068 Talbert DR #100 Chico CA is a Single Family for sale in Chico, CA, 95928. It is listed for $3,300 and features 0 beds, 0 baths, and has approximately 0 square feet of living space, and was originally constructed in 2001. The average price per square foot for Single Family listings in Chico is $281. The average listing price for Single Family in Chico is $383,336. To schedule a showing of MLS#sn25055329 at 2068 Talbert DR #100 in Chico, CA, contact your James Outland agent at 8057482262.
Courtesy of Century 21 Select Real Estate, Inc.. Disclaimer: All data relating to real estate for sale on this page comes from the Broker Reciprocity (BR) of the California Regional Multiple Listing Service. Detailed information about real estate listings held by brokerage firms other than James Outland include the name of the listing broker. Neither the listing company nor James Outland shall be responsible for any typographical errors, misinformation, misprints and shall be held totally harmless. The Broker providing this data believes it to be correct, but advises interested parties to confirm any item before relying on it in a purchase decision. Copyright 2026. California Regional Multiple Listing Service. All rights reserved. 2068 Talbert DR #100
Chico, CA



















