$599,000
2 Canterbury CR
Chico, CA, 95926
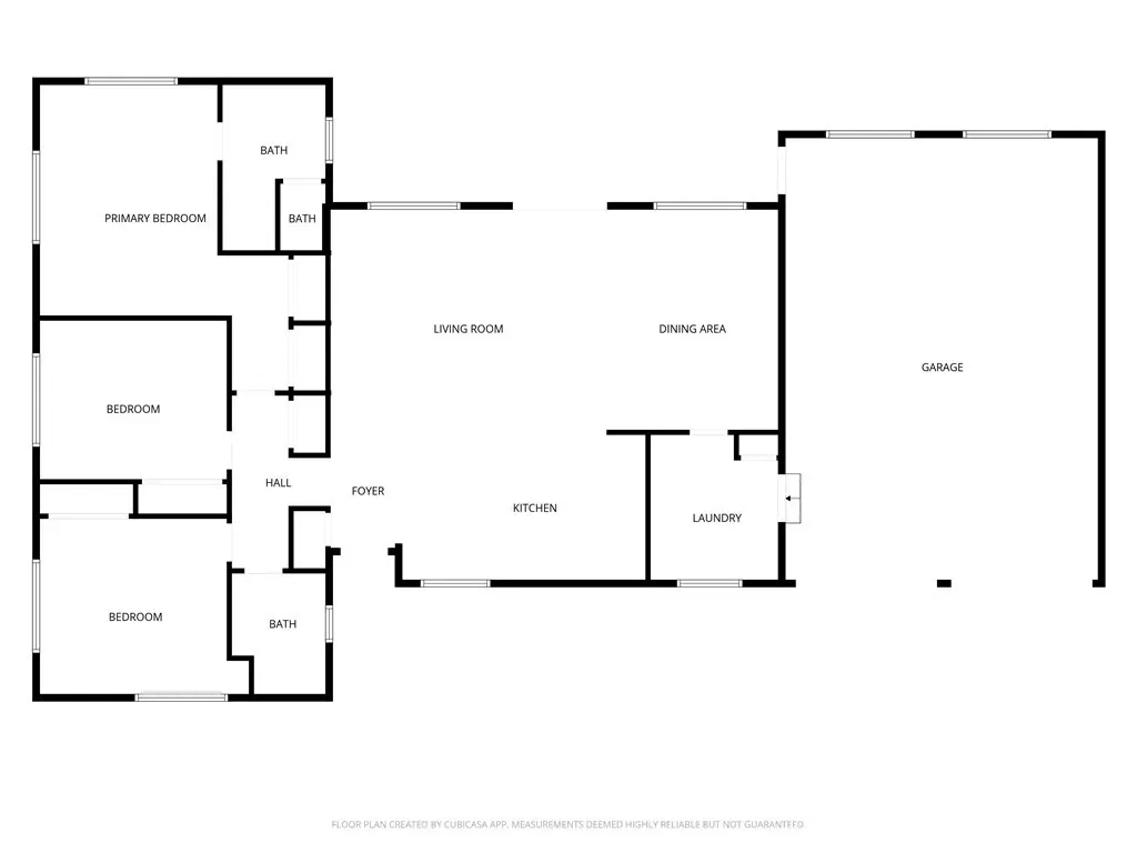
99% new! This brand new home is tucked away in an established neighborhood and has been taken down to the studs and floor plan has been reimagined for a modern look and feel. From the moment you step inside, you’re welcomed by a desirable open-concept layout, freshly painted walls, brand-new laminate flooring, and new windows that fill the space with warm, natural light. The spacious living room offers the perfect setting for cozy movie nights or gathering with friends and family. The fully renovated kitchen is a true showstopper. Thoughtfully designed with all-new stainless steel appliances, sleek quartz countertops, elegant white cabinetry, and a distinctive tile backsplash, it effortlessly blends style and function. An electric cooktop with a modern range hood and a large center island with breakfast bar seating make this space ideal for everything from quick morning bites to entertaining guests. Retreat to the expansive primary suite, where comfort meets luxury. This serene space features a generously sized closet and a spa-inspired ensuite bathroom complete with a new dual-sink vanity, ample linen storage, and a beautifully tiled walk-in shower. Additional highlights include ceiling fans throughout, updated fixtures, a new water heater, brand-new HVAC system, two spacious guest bedrooms, a fully remodeled guest bath, an indoor laundry room, and a large 30ft deep two-car garage. Step outside to enjoy a backyard designed for relaxation and fun, offering a patio area perfect for barbecues and plenty of lawn space for outdoor games or pets to roam freely. Conveniently located near everyday amenities, this home has been taken down to the studs and rebuilt better than ever. Don’t miss your opportunity to make this turnkey gem your own!
Property Details
Price:
$599,000
MLS #:
SN26031413
Status:
Active
Beds:
3
Baths:
2
Type:
Single Family
Subtype:
Single Family Residence
Listed Date:
Mar 12, 2026
Finished Sq Ft:
1,728
Lot Size:
10,019 sqft / 0.23 acres (approx)
Year Built:
1958
Schools
School District:
Chico Unified
Interior
Appliances
DW, ER, HOD
Bathrooms
2 Full Bathrooms
Cooling
CA
Flooring
LAM, CARP
Heating
CF
Interior Features
CF, OFP, HCEL, QTZC
Laundry Features
IR, IN
Levels
A
Main Level Bathrooms
2
Main Level Bedrooms
3
Exterior
Attached Garage YN
1
Common Walls
NCW
Community Features
SUB
Garage Spaces
2
Parking Spots
2
Parking Total
2
Roof
CMP
View
NE
Financial
Get Out There, A Simply Outgoing Approach to Life. James Outland Jr. is one of those rare people who simply has an outgoing approach to life. No matter the activity… from dune buggy riding to skydiving to motorcycling to riding the local Pismo Beach waves… James Outland Jr. approaches life with a “just get out there and do it” kind of attitude. A zest for Life. James’ zest for life is obviously apparent in his many exciting hobbies. In his spare time, he loves riding dune buggies or hi…
More About JamesMortgage Calculator
Map
Current real estate data for Single Family in Chico as of Apr 12, 2026
421
Single Family Listed
86
Avg DOM
286
Avg $ / SqFt
$417,313
Avg List Price
Community
- Address2 Canterbury CR Chico CA
- CityChico
- CountyButte
- Zip Code95926
Similar Listings Nearby
Property Summary
- 2 Canterbury CR Chico CA is a Single Family for sale in Chico, CA, 95926. It is listed for $599,000 and features 3 beds, 2 baths, and has approximately 1,728 square feet of living space, and was originally constructed in 1958. The current price per square foot is $347. The average price per square foot for Single Family listings in Chico is $286. The average listing price for Single Family in Chico is $417,313. To schedule a showing of MLS#sn26031413 at 2 Canterbury CR in Chico, CA, contact your James Outland agent at 8057482262.
Courtesy of DoorTru. Disclaimer: All data relating to real estate for sale on this page comes from the Broker Reciprocity (BR) of the California Regional Multiple Listing Service. Detailed information about real estate listings held by brokerage firms other than James Outland include the name of the listing broker. Neither the listing company nor James Outland shall be responsible for any typographical errors, misinformation, misprints and shall be held totally harmless. The Broker providing this data believes it to be correct, but advises interested parties to confirm any item before relying on it in a purchase decision. Copyright 2026. California Regional Multiple Listing Service. All rights reserved. 2 Canterbury CR
Chico, CA












































