$5,454
194 Cohasset RD #A
Chico, CA, 95926
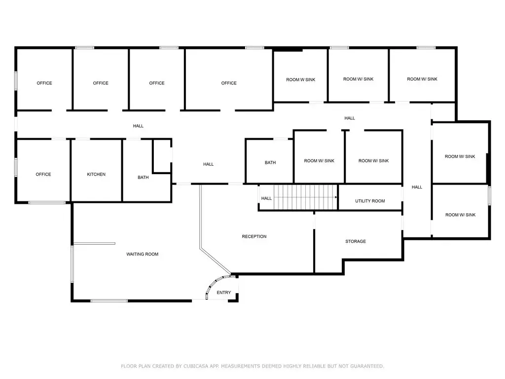
Prime medical office space located in a highly desirable Garden Villa complex. This former pediatric primary care office offers an ideal setup for healthcare providers. The 3,452 sq. ft. suite features a spacious waiting and reception area, seven exam rooms with sinks, five private offices, a kitchenette for staff, and two private restrooms. Additionally, there is a dedicated storage room to accommodate operational needs. The flexible floor plan can easily be adapted to suit a variety of medical or professional uses. With ample parking and a convenient location, this is an excellent opportunity for medical practitioners or businesses seeking a turnkey space in a professional, well maintained professional park.
Property Details
Price:
$5,454
MLS #:
SN25061505
Status:
Active
Beds:
0
Baths:
0
Type:
Single Family
Subtype:
Office
Listed Date:
Nov 14, 2025
Total Sq Ft:
3,452
Lot Size:
209,524 sqft / 4.81 acres (approx)
Year Built:
2005
Schools
Interior
Cooling
CA
Heating
CF
Exterior
Financial
Get Out There, A Simply Outgoing Approach to Life. James Outland Jr. is one of those rare people who simply has an outgoing approach to life. No matter the activity… from dune buggy riding to skydiving to motorcycling to riding the local Pismo Beach waves… James Outland Jr. approaches life with a “just get out there and do it” kind of attitude. A zest for Life. James’ zest for life is obviously apparent in his many exciting hobbies. In his spare time, he loves riding dune buggies or hi…
More About JamesMortgage Calculator
Map
Current real estate data for Single Family in Chico as of Feb 14, 2026
344
Single Family Listed
80
Avg DOM
282
Avg $ / SqFt
$390,763
Avg List Price
Community
- Address194 Cohasset RD #A Chico CA
- CityChico
- CountyButte
- Zip Code95926
Similar Listings Nearby
Property Summary
- 194 Cohasset RD #A Chico CA is a Single Family for sale in Chico, CA, 95926. It is listed for $5,454 and features 0 beds, 0 baths, and has approximately 0 square feet of living space, and was originally constructed in 2005. The average price per square foot for Single Family listings in Chico is $282. The average listing price for Single Family in Chico is $390,763. To schedule a showing of MLS#sn25061505 at 194 Cohasset RD #A in Chico, CA, contact your James Outland agent at 8057482262.
Courtesy of Capital Rivers Commercial Inc. Disclaimer: All data relating to real estate for sale on this page comes from the Broker Reciprocity (BR) of the California Regional Multiple Listing Service. Detailed information about real estate listings held by brokerage firms other than James Outland include the name of the listing broker. Neither the listing company nor James Outland shall be responsible for any typographical errors, misinformation, misprints and shall be held totally harmless. The Broker providing this data believes it to be correct, but advises interested parties to confirm any item before relying on it in a purchase decision. Copyright 2026. California Regional Multiple Listing Service. All rights reserved. 194 Cohasset RD #A
Chico, CA







