$3,800
10 Governors LN
Chico, CA, 95926
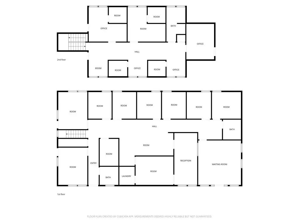
Medical or professional office located within a well-established professional complex at 10 Governors Lane. The building offers a functional, two-level layout designed to accommodate a variety of medical or office users. The ground floor includes six exam rooms equipped with sinks, three private offices, a reception area, waiting room, open work area, storage space, and two private restrooms. The second floor provides additional flexibility with two private offices, one with a sink, three open workstations, a restroom, and ample storage. The efficient layout supports clinical operations, administrative functions, and future adaptability, making the property well suited for medical practices or professional service users seeking a turnkey office environment.
Property Details
Price:
$3,800
MLS #:
SN26004295
Status:
Active
Beds:
0
Baths:
0
Type:
Single Family
Subtype:
Office
Listed Date:
Jan 9, 2026
Total Sq Ft:
3,577
Lot Size:
11,761 sqft / 0.27 acres (approx)
Year Built:
1989
Schools
Interior
Cooling
CA
Heating
CF
Exterior
Financial
Get Out There, A Simply Outgoing Approach to Life. James Outland Jr. is one of those rare people who simply has an outgoing approach to life. No matter the activity… from dune buggy riding to skydiving to motorcycling to riding the local Pismo Beach waves… James Outland Jr. approaches life with a “just get out there and do it” kind of attitude. A zest for Life. James’ zest for life is obviously apparent in his many exciting hobbies. In his spare time, he loves riding dune buggies or hi…
More About JamesMortgage Calculator
Map
Current real estate data for Single Family in Chico as of Feb 14, 2026
344
Single Family Listed
80
Avg DOM
282
Avg $ / SqFt
$390,763
Avg List Price
Community
- Address10 Governors LN Chico CA
- CityChico
- CountyButte
- Zip Code95926
Similar Listings Nearby
Property Summary
- 10 Governors LN Chico CA is a Single Family for sale in Chico, CA, 95926. It is listed for $3,800 and features 0 beds, 0 baths, and has approximately 0 square feet of living space, and was originally constructed in 1989. The average price per square foot for Single Family listings in Chico is $282. The average listing price for Single Family in Chico is $390,763. To schedule a showing of MLS#sn26004295 at 10 Governors LN in Chico, CA, contact your James Outland agent at 8057482262.
Courtesy of Capital Rivers Commercial Inc. Disclaimer: All data relating to real estate for sale on this page comes from the Broker Reciprocity (BR) of the California Regional Multiple Listing Service. Detailed information about real estate listings held by brokerage firms other than James Outland include the name of the listing broker. Neither the listing company nor James Outland shall be responsible for any typographical errors, misinformation, misprints and shall be held totally harmless. The Broker providing this data believes it to be correct, but advises interested parties to confirm any item before relying on it in a purchase decision. Copyright 2026. California Regional Multiple Listing Service. All rights reserved. 10 Governors LN
Chico, CA









