$1,397,000
191 J ST
Cayucos, CA, 93430
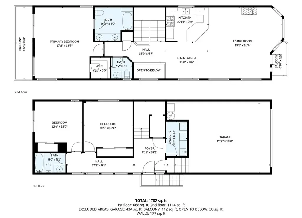
Location, location, location. Welcome to 1,805± square feet of bright Central Coast living, where ocean views, vaulted ceilings, and seamless indoor-outdoor flow come together at a desirable address, with a cool ocean breeze.
Built in 2000 and designed for today’s lifestyle, this 3-bedroom, 3-bath home captures what’s to love about Cayucos. This home offers unforgettable bay views and is just a short distance from everything Cayucos has to offer.
Step inside and experience soaring ceilings and expansive windows that fill the main living areas with sunlight. The open floor plan connects the living and dining spaces, creating an inviting setting for entertaining or relaxing at home.
Just off the main living area, the upper deck offers beautiful ocean views and glowing evening skies. It is the perfect place for morning coffee or winding down at sunset.
The primary suite serves as a peaceful retreat with its own private deck and en-suite bath. Enjoy fresh coastal air and quiet privacy at the start and end of each day.
Two additional bedrooms and bathrooms provide flexible space for guests, a home office, or extended stays. Whether you are seeking a full-time residence or a second home, the layout adapts with ease.
“Central air conditioning” adds comfort on warmer days, while natural ocean breezes keep the home feeling crisp. An oversized laundry room, generous storage, and a spacious two-car garage add everyday convenience.
Property highlights:
• Ocean views from main living areas and upper deck
• Primary suite with private deck and en-suite bath
• Open floor plan with vaulted ceilings and abundant light
• Central air conditioning
• Oversized laundry room and ample storage
• Two-car garage
• Very close to downtown Cayucos, beaches, shops, and dining
Cayucos Facing South is located between Cambria and Morro Bay, offering this home near quiet beaches and close to town. Enjoy coffee, restaurants, and coastal walks just minutes away.
Cayucos is known for its welcoming community, relaxed shoreline, and cool classic beach-town charm. Homes with ocean views and walkable access are limited. 191 J Street is your opportunity to live the Central Coast lifestyle you have been waiting for. It’s worth a peek
Built in 2000 and designed for today’s lifestyle, this 3-bedroom, 3-bath home captures what’s to love about Cayucos. This home offers unforgettable bay views and is just a short distance from everything Cayucos has to offer.
Step inside and experience soaring ceilings and expansive windows that fill the main living areas with sunlight. The open floor plan connects the living and dining spaces, creating an inviting setting for entertaining or relaxing at home.
Just off the main living area, the upper deck offers beautiful ocean views and glowing evening skies. It is the perfect place for morning coffee or winding down at sunset.
The primary suite serves as a peaceful retreat with its own private deck and en-suite bath. Enjoy fresh coastal air and quiet privacy at the start and end of each day.
Two additional bedrooms and bathrooms provide flexible space for guests, a home office, or extended stays. Whether you are seeking a full-time residence or a second home, the layout adapts with ease.
“Central air conditioning” adds comfort on warmer days, while natural ocean breezes keep the home feeling crisp. An oversized laundry room, generous storage, and a spacious two-car garage add everyday convenience.
Property highlights:
• Ocean views from main living areas and upper deck
• Primary suite with private deck and en-suite bath
• Open floor plan with vaulted ceilings and abundant light
• Central air conditioning
• Oversized laundry room and ample storage
• Two-car garage
• Very close to downtown Cayucos, beaches, shops, and dining
Cayucos Facing South is located between Cambria and Morro Bay, offering this home near quiet beaches and close to town. Enjoy coffee, restaurants, and coastal walks just minutes away.
Cayucos is known for its welcoming community, relaxed shoreline, and cool classic beach-town charm. Homes with ocean views and walkable access are limited. 191 J Street is your opportunity to live the Central Coast lifestyle you have been waiting for. It’s worth a peek
Property Details
Price:
$1,397,000
MLS #:
PI25172264
Status:
Active
Beds:
3
Baths:
3
Type:
Single Family
Subtype:
Single Family Residence
Neighborhood:
cayucayucos
Listed Date:
Aug 29, 2025
Finished Sq Ft:
1,805
Lot Size:
1,846 sqft / 0.04 acres (approx)
Year Built:
2000
Schools
School District:
San Luis Coastal Unified
Interior
Appliances
DW, GS
Bathrooms
2 Full Bathrooms, 1 Three Quarter Bathroom
Cooling
CA
Heating
FA
Laundry Features
IN
Levels
U
Main Level Bathrooms
2
Main Level Bedrooms
2
Exterior
Attached Garage YN
1
Common Walls
NCW
Community Features
FISH, BIKI
Garage Spaces
2
Parking Spots
2
Parking Total
2
View
OC
Financial
Get Out There, A Simply Outgoing Approach to Life. James Outland Jr. is one of those rare people who simply has an outgoing approach to life. No matter the activity… from dune buggy riding to skydiving to motorcycling to riding the local Pismo Beach waves… James Outland Jr. approaches life with a “just get out there and do it” kind of attitude. A zest for Life. James’ zest for life is obviously apparent in his many exciting hobbies. In his spare time, he loves riding dune buggies or hi…
More About JamesMortgage Calculator
Map
Current real estate data for Single Family in Cayucos as of Apr 06, 2026
32
Single Family Listed
111
Avg DOM
848
Avg $ / SqFt
$1,798,520
Avg List Price
Community
- Address191 J ST Cayucos CA
- CityCayucos
- CountySan Luis Obispo
- Zip Code93430
Similar Listings Nearby
Property Summary
- 191 J ST Cayucos CA is a Single Family for sale in Cayucos, CA, 93430. It is listed for $1,397,000 and features 3 beds, 3 baths, and has approximately 1,805 square feet of living space, and was originally constructed in 2000. The current price per square foot is $774. The average price per square foot for Single Family listings in Cayucos is $848. The average listing price for Single Family in Cayucos is $1,798,520. To schedule a showing of MLS#pi25172264 at 191 J ST in Cayucos, CA, contact your James Outland agent at 8057482262.
Courtesy of Mid Coast Realty. Disclaimer: All data relating to real estate for sale on this page comes from the Broker Reciprocity (BR) of the California Regional Multiple Listing Service. Detailed information about real estate listings held by brokerage firms other than James Outland include the name of the listing broker. Neither the listing company nor James Outland shall be responsible for any typographical errors, misinformation, misprints and shall be held totally harmless. The Broker providing this data believes it to be correct, but advises interested parties to confirm any item before relying on it in a purchase decision. Copyright 2026. California Regional Multiple Listing Service. All rights reserved. 191 J ST
Cayucos, CA

















































