$1,575,000
30900 Date Palm Dr
Cathedral City, CA, 92234
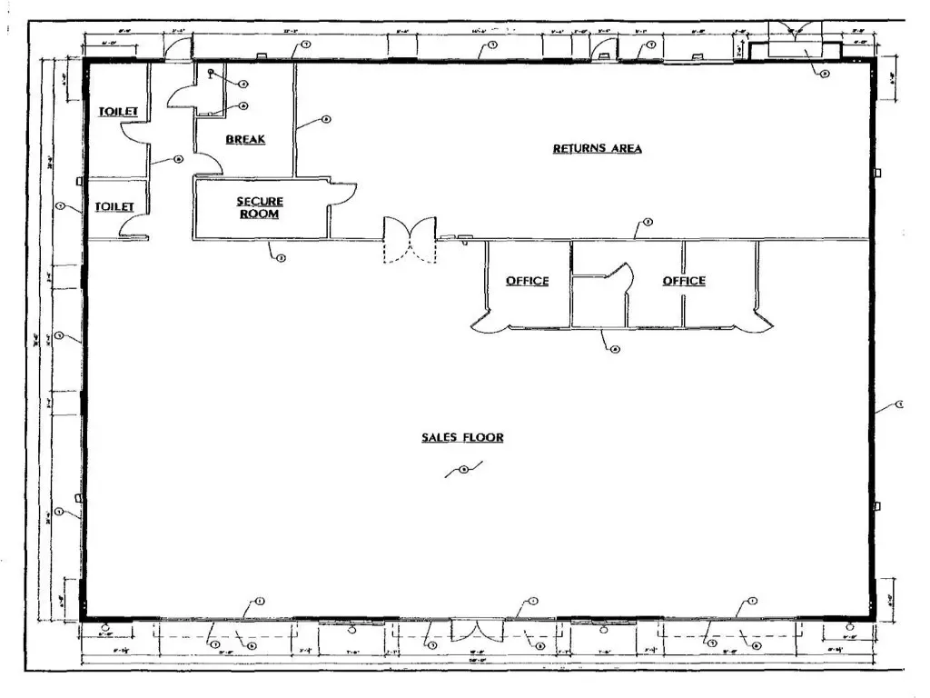
7,000 SF retail/commercial building on .91 acre lot. Impressive traffic counts with 96′ of frontage on Date Palm Dr. Large showroom and one roll-up door. Located at the signalized intersection of Date Palm Dr and McCallum Way. Easy access to Interstate 10 and major arterial roads. Excellent building signage including freestanding pylon signs. Adjacent to Dollar Tree and Rosemount Self Storage and retail center coming soon. In an area of explosive growth, with a 204-unit apartment complex coming soon and a proposed retail center just north of the subject property.
Property Details
Price:
$1,575,000
MLS #:
219139400DA
Status:
Pending
Beds:
0
Baths:
0
Type:
Commercial
Neighborhood:
335cathedralcitynorth
Listed Date:
Dec 1, 2025
Lot Size:
39,640 sqft / 0.91 acres (approx)
Year Built:
1776
Schools
Interior
Heating
CF
Exterior
Security Features
_24HR
Financial
Get Out There, A Simply Outgoing Approach to Life. James Outland Jr. is one of those rare people who simply has an outgoing approach to life. No matter the activity… from dune buggy riding to skydiving to motorcycling to riding the local Pismo Beach waves… James Outland Jr. approaches life with a “just get out there and do it” kind of attitude. A zest for Life. James’ zest for life is obviously apparent in his many exciting hobbies. In his spare time, he loves riding dune buggies or hi…
More About JamesMortgage Calculator
Map
Current real estate data for Commercial in Cathedral City as of Apr 08, 2026
11
Commercial Listed
201
Avg DOM
$2,473,345
Avg List Price
Community
- Address30900 Date Palm Dr Cathedral City CA
- CityCathedral City
- CountyRiverside
- Zip Code92234
Similar Listings Nearby
Property Summary
- 30900 Date Palm Dr Cathedral City CA is a Commercial for sale in Cathedral City, CA, 92234. It is listed for $1,575,000 To schedule a showing of MLS#219139400da at 30900 Date Palm Dr in Cathedral City, CA, contact your James Outland agent at 8057482262.
Courtesy of Desert Pacific Properties. Disclaimer: All data relating to real estate for sale on this page comes from the Broker Reciprocity (BR) of the California Regional Multiple Listing Service. Detailed information about real estate listings held by brokerage firms other than James Outland include the name of the listing broker. Neither the listing company nor James Outland shall be responsible for any typographical errors, misinformation, misprints and shall be held totally harmless. The Broker providing this data believes it to be correct, but advises interested parties to confirm any item before relying on it in a purchase decision. Copyright 2026. California Regional Multiple Listing Service. All rights reserved. 30900 Date Palm Dr
Cathedral City, CA













