$585,000
849 E Victoria ST #811
Carson, CA, 90746
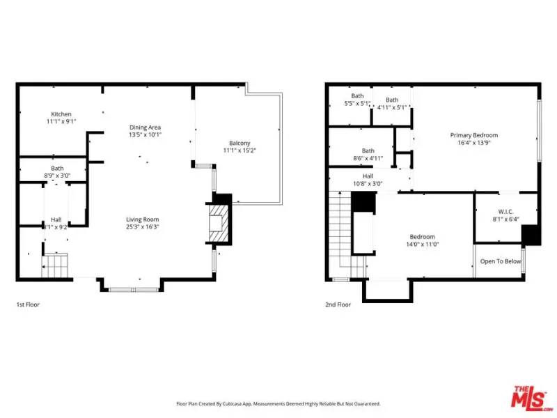
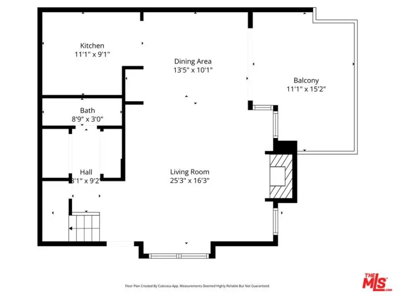
Welcome to 849 E Victoria St #811, a beautifully maintained garden-style condo nestled in the heart of Carson, just moments from California State University, Dominguez Hills. Offering 1,313 square feet of thoughtfully designed living space, this 2-bedroom, 2.5-bath residence presents an exceptional opportunity for first-time buyers, students, administrators, or those seeking a low-maintenance lifestyle without sacrificing comfort.Lovingly cared for by its long-time owner, this home is now ready to begin its next chapter. Upon entry, you’re welcomed into a spacious living room featuring a partial two-story ceilingcreating volume, light, and an airy sense of openness that elevates the entire space. The adjacent dining area flows effortlessly to a large covered patio, where indoor and outdoor living blend seamlessly. From this private retreat, enjoy tranquil views of the community pool and, on a clear day, a subtle glimpse of the ocean in the distancelike a quiet horizon reminding you how close you are to the coast.Upstairs, the home offers two generously sized bedrooms. The primary suite features vaulted ceilings, a large walk-in closet, and a private en-suite bath. The second bedroom showcases an open-loft feel, inviting natural light to pour inideal for a guest room, home office, or creative space.Set within a well-maintained community of just 96 units, this residence offers a peaceful and intimate environment. Its location provides easy access to the I-110 Harbor Freeway and I-405 San Diego Freeway, making commuting throughout the South Bay and greater Los Angeles area both convenient and efficient. Nearby amenities include shopping and dining at SouthBay Pavilion, as well as recreation and events at Dignity Health Sports Park.Whether you’re studying after midterms, working from home, or unwinding on your patio after a long day, this home offers a harmonious blend of comfort, convenience, and understated coastal proximity.
Property Details
Price:
$585,000
MLS #:
26667603
Status:
Active
Beds:
2
Baths:
3
Type:
Condo
Subtype:
Condominium
Neighborhood:
137northcarson
Listed Date:
Apr 9, 2026
Finished Sq Ft:
1,313
Total Sq Ft:
1,313
Lot Size:
169,394 sqft / 3.89 acres (approx)
Year Built:
1981
Schools
School District:
Compton Unified
Interior
Appliances
DW, OV, RA, HOD
Bathrooms
3 Full Bathrooms
Cooling
CA
Flooring
CARP
Heating
ELC, CF
Interior Features
WB, HCEL
Levels
U, S
Exterior
Common Walls
_1CW
Construction Materials
STC
Direction Faces
N
Fencing
WI
Garage Spaces
2
Parking Spots
2
Parking Total
2
Patio And Porch Features
CO
Security Features
SD, COD, FRW, GC
View
PL
Financial
HOA Fee
$450
HOA Fee Frequency
MO
Get Out There, A Simply Outgoing Approach to Life. James Outland Jr. is one of those rare people who simply has an outgoing approach to life. No matter the activity… from dune buggy riding to skydiving to motorcycling to riding the local Pismo Beach waves… James Outland Jr. approaches life with a “just get out there and do it” kind of attitude. A zest for Life. James’ zest for life is obviously apparent in his many exciting hobbies. In his spare time, he loves riding dune buggies or hi…
More About JamesMortgage Calculator
Map
Community
- Address849 E Victoria ST #811 Carson CA
- CityCarson
- CountyLos Angeles
- Zip Code90746
Similar Listings Nearby
Property Summary
- 849 E Victoria ST #811 Carson CA is a Condo for sale in Carson, CA, 90746. It is listed for $585,000 and features 2 beds, 3 baths, and has approximately 1,313 square feet of living space, and was originally constructed in 1981. The current price per square foot is $446. The average price per square foot for Condo listings in Carson is $441. The average listing price for Condo in Carson is $612,483. To schedule a showing of MLS#26667603 at 849 E Victoria ST #811 in Carson, CA, contact your James Outland agent at 8057482262.
Courtesy of Pacific Playa Realty. Disclaimer: All data relating to real estate for sale on this page comes from the Broker Reciprocity (BR) of the California Regional Multiple Listing Service. Detailed information about real estate listings held by brokerage firms other than James Outland include the name of the listing broker. Neither the listing company nor James Outland shall be responsible for any typographical errors, misinformation, misprints and shall be held totally harmless. The Broker providing this data believes it to be correct, but advises interested parties to confirm any item before relying on it in a purchase decision. Copyright 2026. California Regional Multiple Listing Service. All rights reserved. 849 E Victoria ST #811
Carson, CA




















































