$4,500,000
385 Juniper
Carlsbad, CA, 92008
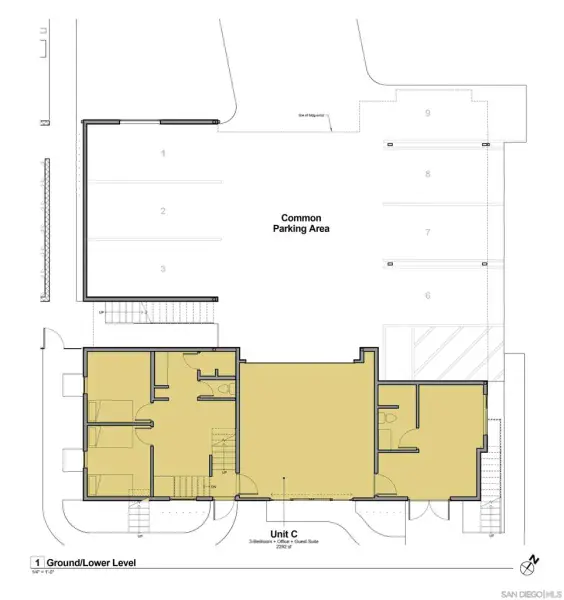
Significant Price Reduction. Motivated Sellers. Bring All Offers CP Juniper is an artfully designed, 2016 construction, four-plex plus junior studio property set on a 7,500 sq ft lot just two blocks from Tamarack Surf Beach. The development was thoughtfully crafted from the ground up by the architect/developer owner as both a personal residence for himself and his family and a prized coastal multifamily investment asset. The property boasts rare ground level, covered parking and enclosed two car garage for the owner’s unit for a total of 9 parking spaces. The four large, main level residences surround an open communal courtyard patio for increased light, coastal breezes, and architectural interest. Unit interiors feature cathedral ceilings, modern design finishes, floor to ceiling windows, hard surface flooring throughout, in-unit washer dryers, premium bathroom finishes, and enclosed outdoor yards for select units, and mini-split HVAC systems. Water submeters are installed and can be utilized to bill back tenants and increase NOI. The 4-bedroom owner’s unit features and owned solar.
Property Details
Price:
$4,500,000
MLS #:
250044629SD
Status:
Active
Beds:
0
Baths:
0
Type:
Single Family
Subdivision:
Carlsbad West
Neighborhood:
92008carlsbad
Listed Date:
Nov 24, 2025
Year Built:
2016
Schools
Interior
Cooling
HP
Heating
ELC, ZN
Exterior
Roof
CMP
Financial
Get Out There, A Simply Outgoing Approach to Life. James Outland Jr. is one of those rare people who simply has an outgoing approach to life. No matter the activity… from dune buggy riding to skydiving to motorcycling to riding the local Pismo Beach waves… James Outland Jr. approaches life with a “just get out there and do it” kind of attitude. A zest for Life. James’ zest for life is obviously apparent in his many exciting hobbies. In his spare time, he loves riding dune buggies or hi…
More About JamesMortgage Calculator
Map
Current real estate data for Single Family in Carlsbad as of Feb 13, 2026
272
Single Family Listed
71
Avg DOM
545
Avg $ / SqFt
$1,447,218
Avg List Price
Community
- Address385 Juniper Carlsbad CA
- SubdivisionCarlsbad West
- CityCarlsbad
- CountySan Diego
- Zip Code92008
Similar Listings Nearby
Property Summary
- Located in the Carlsbad West subdivision, 385 Juniper Carlsbad CA is a Single Family for sale in Carlsbad, CA, 92008. It is listed for $4,500,000 and features 0 beds, 0 baths, and has approximately 0 square feet of living space, and was originally constructed in 2016. The average price per square foot for Single Family listings in Carlsbad is $545. The average listing price for Single Family in Carlsbad is $1,447,218. To schedule a showing of MLS#250044629sd at 385 Juniper in Carlsbad, CA, contact your James Outland agent at 8057482262.
Courtesy of VRE Multifamily. Disclaimer: All data relating to real estate for sale on this page comes from the Broker Reciprocity (BR) of the California Regional Multiple Listing Service. Detailed information about real estate listings held by brokerage firms other than James Outland include the name of the listing broker. Neither the listing company nor James Outland shall be responsible for any typographical errors, misinformation, misprints and shall be held totally harmless. The Broker providing this data believes it to be correct, but advises interested parties to confirm any item before relying on it in a purchase decision. Copyright 2026. California Regional Multiple Listing Service. All rights reserved. 385 Juniper
Carlsbad, CA






















